ちいきぼオフィス賃貸事務所・賃貸オフィス一覧東京都の賃貸事務所・賃貸オフィス一覧港区の賃貸事務所・賃貸オフィス一覧ライオンズマンション赤坂

物件No.12510-0064

ライオンズマンション赤坂 2階 208号室 (22.70坪)

最終更新日:2026年3月19日

  • 賃料
    385,900 円(税抜)
  • 東京都 港区 赤坂7丁目 5-6 地図で確認する
  • 赤坂駅(東京メトロ千代田線) 徒歩8分青山一丁目駅(東京メトロ半蔵門線) 徒歩11分、青山一丁目駅(東京メトロ銀座線) 徒歩11分、青山一丁目駅(都営大江戸線) 徒歩11分
  • 8階建(地下1階建)(1969年4月(築57年))
  • 即入居可能

この物件の特徴・魅力

  • 営業おすすめ
  • 即入居可能
  • 写真が豊富
  • エレベーターあり
  • 20坪台オフィス
  • 11~15人向けオフィス

担当者コメント

担当者

ライオンズマンション赤坂208号室は、東京メトロ千代田線「赤坂」から徒歩8分の小規模オフィス・貸事務所です。 初期費用を抑えられる礼金1ヶ月の物件です。 約22.7坪のコンパクトオフィスで、創業期のスタートアップ企業様にもおすすめです。 エレベーター、トイレが完備されております。

平面図準備中

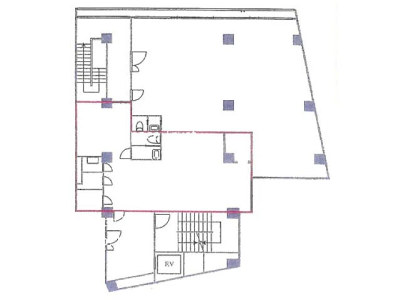
平面図

地図

画像をクリックすると上部の画像が切り替わります

お問い合わせいただいた後は、
経験豊富なスタッフが全力でご支援いたします!

お電話でのお問い合わせ

0120-66-7102

受付時間 10:00~18:00(土日祝日を除く)

物件については[物件No.12510-0064]とお伝えください。

メールフォームでのお問い合わせ

ログインして問い合わせる

ライオンズマンション赤坂 2階 208号室 (22.70坪) の基本情報

物件No 12510-0064
建物名 ライオンズマンション赤坂 2階 208号室 (22.70坪)
所在地
東京都港区赤坂7丁目5-6  地図を見る 港区で他の物件を探す
募集階層/階建 地上2階 / 8階建(地下1階建)
坪数(平米) 22.70 坪(75.04 ㎡)
築年月(竣工) 1969年4月(築57年)
耐震
構造 鉄筋コンクリート(RC)
最寄駅
用途 貸事務所・オフィス
最終更新日 2026年3月19日

契約条件

※表示価格はすべて税抜表示です
賃料
385,900 円(税抜)
坪単価 17,000円/坪
共益費/管理費等 無し
保証金/敷金 4ヶ月
保証金償却 1ヶ月
礼金 1ヶ月
更新料 1ヶ月
再契約
再契約可
更新事務手数料 確認中
仲介手数料 1ヶ月
造作価格
その他費用 解約予告:6ヵ月前
建物賃貸借区分 定期借家契約
契約期間 3年
指定保証会社必須 要加入 (株式会社セーフティーイノベーション)※月額固定費の1ヶ月
引渡時期 即入居可能
引渡状態
諸条件・相談 事務所可

設備詳細・その他

設備 トイレ、エレベーター
エレベーター 有り
トイレ 有り
床仕様
空調
駐車場
特徴・魅力 2沿線以上利用可
事務所内装の備考
ビル設備の備考
担当者コメント ライオンズマンション赤坂208号室は、東京メトロ千代田線「赤坂」から徒歩8分の小規模オフィス・貸事務所です。 初期費用を抑えられる礼金1ヶ月の物件です。 約22.7坪のコンパクトオフィスで、創業期のスタートアップ企業様にもおすすめです。 エレベーター、トイレが完備されております。

お問い合わせいただいた後は、
経験豊富なスタッフが全力でご支援いたします!

お電話でのお問い合わせ

0120-66-7102

受付時間 10:00~18:00(土日祝日を除く)

物件については[物件No.12510-0064]とお伝えください。

メールフォームでのお問い合わせ

ログインして問い合わせる

周辺環境

  • 【コンビニ】周辺のコンビニ  

  • 【周辺の街並み】周辺の街並み  

  • 【駅】赤坂駅  

  • 【駅】青山一丁目駅(1番出口)  

  • 【駅】青山一丁目駅(1番出口)  

  • 【駅】赤坂見附駅 10番出口  

  • 【駅】溜池山王駅(10番出口)  

  • 【駅】溜池山王駅(10番出口)  

  • 【駅】乃木坂駅(出口5)  

マップで見る周辺の類似物件

「人型アイコン」を地図上にドラッグすることで『Google ストリートビュー』に切り替わります。

※地図上の「対象地」は実際の場所ではない場合がございます。詳しくはお問い合わせください。

お問い合わせフォームはこちら

お問い合わせいただいた後は、
経験豊富なスタッフが全力でご支援いたします!

お電話でのお問い合わせ

0120-66-7102

受付時間 10:00~18:00(土日祝日を除く)

物件については[物件No.12510-0064]とお伝えください。

メールフォームでのお問い合わせ

ログインして問い合わせる
この物件をご覧頂くには、会員登録(無料)が必要です。【無料会員登録】
No.{{ index + 1 }}
営業おすすめ NEW

非公開 掲載終了 商談中 物件写真
{{ estate.price_pending_type_name }} 価格未定

お探しのエリアで今注目の物件

この物件をご覧頂くには、会員登録(無料)が必要です。【無料会員登録】
No.{{ index + 1 }}
営業おすすめ NEW

非公開 掲載終了 商談中 物件写真
{{ estate.price_pending_type_name }} 価格未定

近隣のよく似た物件リスト

この物件をご覧頂くには、会員登録(無料)が必要です。【無料会員登録】
No.{{ index + 1 }}
営業おすすめ NEW

非公開 掲載終了 商談中 物件写真
{{ estate.price_pending_type_name }} 価格未定

この物件と同じ特徴から探す

近隣の路線・駅から物件を探す

東京メトロ千代田線 / 霞ヶ関 / 国会議事堂前 / 乃木坂 / 表参道 / 明治神宮前

近隣のエリアから物件を探す

中央区 / 千代田区 / 渋谷区 / 目黒区 / 文京区

関東エリアエリアから物件を探す

東京都 / 神奈川県 / 埼玉県 / 千葉県