ちいきぼオフィス賃貸事務所・賃貸オフィス一覧東京都の賃貸事務所・賃貸オフィス一覧港区の賃貸事務所・賃貸オフィス一覧EM南麻布ビル

物件No.12604-0261

EM南麻布ビル 6階 601 (32.32坪)

最終更新日:2026年4月14日

  • 賃料
    479,950 円(税抜)
  • 東京都 港区 南麻布2丁目 13-12 地図で確認する
  • 白金高輪駅(東京メトロ南北線) 徒歩7分白金高輪駅(都営三田線) 徒歩7分、麻布十番駅(東京メトロ南北線) 徒歩13分、麻布十番駅(都営大江戸線) 徒歩13分、泉岳寺駅(京急本線) 徒歩18分
  • 6階建(地下2階建)(1998年1月(築28年))
  • 引渡時期はお問い合わせください

この物件の特徴・魅力

  • 24時間利用可能
  • 営業おすすめ
  • エレベーターあり
  • コスパ重視
  • 30坪台オフィス
  • 16~20人向けオフィス
  • NEW!

担当者コメント

担当者

EM南麻布ビル 6階 601は、東京メトロ南北線「白金高輪」から徒歩7分の小規模オフィス・貸事務所です。
光ファイバー対応で、土日・祝日の利用も可能な利便性の高い環境です。トイレやエアコン、エレベーターを完備しており快適にご利用いただけます。オフィス以外に店舗利用の相談ができる点も魅力です。

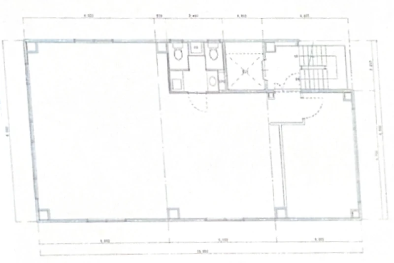
平面図

地図

画像をクリックすると上部の画像が切り替わります

お問い合わせいただいた後は、
経験豊富なスタッフが全力でご支援いたします!

お電話でのお問い合わせ

0120-66-7102

受付時間 10:00~18:00(土日祝日を除く)

物件については[物件No.12604-0261]とお伝えください。

メールフォームでのお問い合わせ

ログインして問い合わせる

EM南麻布ビル 6階 601 (32.32坪) の基本情報

物件No 12604-0261
建物名 EM南麻布ビル 6階 601 (32.32坪)
所在地
東京都港区南麻布2丁目13-12  地図を見る 港区で他の物件を探す
募集階層/階建 地上6階 / 6階建(地下2階建)
坪数(平米) 32.32 坪(106.83 ㎡)
築年月(竣工) 1998年1月(築28年)
耐震
構造 鉄骨鉄筋コンクリート(SRC)
最寄駅
用途 貸事務所・オフィス
店舗としてのご利用も可能です。詳細はお問い合わせください。
最終更新日 2026年4月14日

契約条件

※表示価格はすべて税抜表示です
賃料
479,950 円(税抜)
坪単価 14,849円/坪
共益費/管理費等 47,995円
保証金/敷金 3ヶ月
保証金償却 確認中
礼金 1ヶ月
更新料 無し
更新事務手数料 確認中
仲介手数料 確認中
造作価格
その他費用 保険等:要
建物賃貸借区分 定期借家契約
契約期間 2年
指定保証会社必須 要加入 (株式会社セーフティーイノベーション)※月額固定費の1ヶ月
引渡時期 お問い合わせください
5月中退去予定
引渡状態
諸条件・相談 事務所可

設備詳細・その他

設備 エレベーター、エアコン、トイレ、冷房、暖房、トイレ2箇所、給湯、火災警報器等設置済
エレベーター 有り
トイレ 室内
床仕様
空調 有り
駐車場
特徴・魅力 2沿線以上利用可
事務所内装の備考
ビル設備の備考 土日・祝日利用可/光ファイバー
担当者コメント EM南麻布ビル 6階 601は、東京メトロ南北線「白金高輪」から徒歩7分の小規模オフィス・貸事務所です。 光ファイバー対応で、土日・祝日の利用も可能な利便性の高い環境です。トイレやエアコン、エレベーターを完備しており快適にご利用いただけます。オフィス以外に店舗利用の相談ができる点も魅力です。

お問い合わせいただいた後は、
経験豊富なスタッフが全力でご支援いたします!

お電話でのお問い合わせ

0120-66-7102

受付時間 10:00~18:00(土日祝日を除く)

物件については[物件No.12604-0261]とお伝えください。

メールフォームでのお問い合わせ

ログインして問い合わせる

ビルやお部屋の雰囲気

外観

周辺環境

  • 【駅】白金高輪駅  

  • 【病院】周辺の病院  

  • 【銀行】周辺の銀行  

  • 【コンビニ】周辺のコンビニ  

  • 【銀行】周辺の銀行  

  • 【駅】麻布十番駅  

  • 【駅】麻布十番駅  

マップで見る周辺の類似物件

「人型アイコン」を地図上にドラッグすることで『Google ストリートビュー』に切り替わります。

※地図上の「対象地」は実際の場所ではない場合がございます。詳しくはお問い合わせください。

お問い合わせフォームはこちら

お問い合わせいただいた後は、
経験豊富なスタッフが全力でご支援いたします!

お電話でのお問い合わせ

0120-66-7102

受付時間 10:00~18:00(土日祝日を除く)

物件については[物件No.12604-0261]とお伝えください。

メールフォームでのお問い合わせ

ログインして問い合わせる
この物件をご覧頂くには、会員登録(無料)が必要です。【無料会員登録】
No.{{ index + 1 }}
営業おすすめ NEW

非公開 掲載終了 商談中 物件写真
{{ estate.price_pending_type_name }} 価格未定

お探しのエリアで今注目の物件

この物件をご覧頂くには、会員登録(無料)が必要です。【無料会員登録】
No.{{ index + 1 }}
営業おすすめ NEW

非公開 掲載終了 商談中 物件写真
{{ estate.price_pending_type_name }} 価格未定

近隣のよく似た物件リスト

この物件をご覧頂くには、会員登録(無料)が必要です。【無料会員登録】
No.{{ index + 1 }}
営業おすすめ NEW

非公開 掲載終了 商談中 物件写真
{{ estate.price_pending_type_name }} 価格未定

この物件と同じ特徴から探す

近隣の路線・駅から物件を探す

東京メトロ南北線 / 目黒 / 白金台 / 麻布十番 / 六本木一丁目 / 溜池山王

近隣のエリアから物件を探す

中央区 / 千代田区 / 渋谷区 / 目黒区 / 文京区

関東エリアエリアから物件を探す

東京都 / 神奈川県 / 埼玉県 / 千葉県