ちいきぼオフィス賃貸事務所・賃貸オフィス一覧東京都の賃貸事務所・賃貸オフィス一覧千代田区の賃貸事務所・賃貸オフィス一覧Gaia Force Building

物件No.12604-0248

Gaia Force Building 4階 (30.20坪)

最終更新日:2026年4月14日

  • 賃料
    785,200 円(税抜)
  • 東京都 千代田区 神田三崎町2丁目 21-6 地図で確認する
  • 水道橋駅(JR総武・中央緩行線) 徒歩1分水道橋駅(都営三田線) 徒歩3分、九段下駅(東京メトロ東西線) 徒歩12分、神保町駅(都営三田線) 徒歩12分、後楽園駅(東京メトロ丸ノ内線) 徒歩14分
  • 6階建(2023年1月(築3年))
  • 2026年7月上旬より入居可能

この物件の特徴・魅力

  • 機械警備
  • 駅徒歩5分以内
  • OAフロア
  • 写真が豊富
  • 男女別トイレ
  • エレベーターあり
  • セットアップ
  • 30坪台オフィス
  • 16~20人向けオフィス
  • NEW!

担当者コメント

担当者

Gaia Force Building 4階は、JR総武・中央緩行線「水道橋」から徒歩1分の小規模オフィス・貸事務所です。
2023年築の築浅物件で、内装付きのセットアップオフィスとなっています。専用テラスがあり、開放的な空間で仕事ができます。男女別トイレやエレベーターを完備しています。共益費・管理費が0円という点も、コストを抑えたい企業には大きな魅力です。

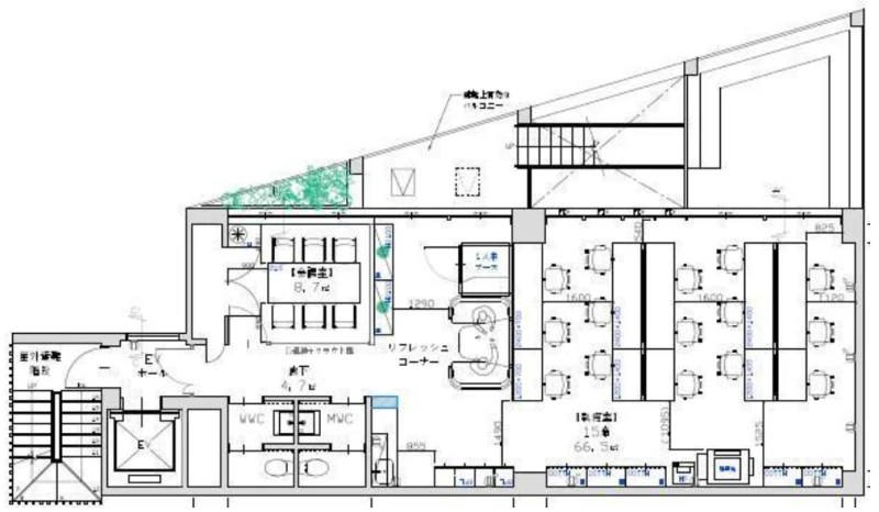
平面図

地図

お問い合わせいただいた後は、
経験豊富なスタッフが全力でご支援いたします!

お電話でのお問い合わせ

0120-66-7102

受付時間 10:00~18:00(土日祝日を除く)

物件については[物件No.12604-0248]とお伝えください。

メールフォームでのお問い合わせ

ログインして問い合わせる

Gaia Force Building 4階 (30.20坪) の基本情報

物件No 12604-0248
建物名 Gaia Force Building 4階 (30.20坪)
所在地
東京都千代田区神田三崎町2丁目21-6  地図を見る 千代田区で他の物件を探す
募集階層/階建 地上4階 / 6階建
坪数(平米) 30.20 坪(99.83 ㎡)
築年月(竣工) 2023年1月(築3年)
耐震
構造 鉄筋コンクリート(RC)
最寄駅
用途 貸事務所・オフィス
最終更新日 2026年4月14日

契約条件

※表示価格はすべて税抜表示です
賃料
785,200 円(税抜)
坪単価 26,000円/坪
共益費/管理費等 無し
保証金/敷金 3ヶ月
保証金償却 無し
礼金 無し
更新料 1ヶ月
更新
新賃料
更新事務手数料
仲介手数料 確認中
造作価格
その他費用 共用部使用料:5000円/月
建物賃貸借区分 普通借家契約
契約期間 2年
指定保証会社必須 要加入
引渡時期 2026年7月上旬より入居可能
引渡状態 セットアップオフィス
諸条件・相談 事務所可

設備詳細・その他

設備 エレベーター、トイレ
エレベーター 有り
トイレ 室内、男女別
床仕様 OAフロア
空調
駐車場 無 
特徴・魅力 2沿線以上利用可
事務所内装の備考 内装付きセットアップオフィス/専用テラス付き
ビル設備の備考
担当者コメント Gaia Force Building 4階は、JR総武・中央緩行線「水道橋」から徒歩1分の小規模オフィス・貸事務所です。 2023年築の築浅物件で、内装付きのセットアップオフィスとなっています。専用テラスがあり、開放的な空間で仕事ができます。男女別トイレやエレベーターを完備しています。共益費・管理費が0円という点も、コストを抑えたい企業には大きな魅力です。

お問い合わせいただいた後は、
経験豊富なスタッフが全力でご支援いたします!

お電話でのお問い合わせ

0120-66-7102

受付時間 10:00~18:00(土日祝日を除く)

物件については[物件No.12604-0248]とお伝えください。

メールフォームでのお問い合わせ

ログインして問い合わせる

ビルやお部屋の雰囲気

内観・その他

周辺環境

  • 【駅】水道橋駅  

  • 【駅】水道橋駅  

  • 【駅】都営三田線 神保町駅  

  • 【駅】神保町駅  

  • 【駅】東京メトロ半蔵門線 神保町駅  

  • 【駅】都営新宿線 神保町駅  

  • 【駅】九段下駅  

  • 【駅】春日駅  

  • 【駅】飯田橋駅  

マップで見る周辺の類似物件

「人型アイコン」を地図上にドラッグすることで『Google ストリートビュー』に切り替わります。

※地図上の「対象地」は実際の場所ではない場合がございます。詳しくはお問い合わせください。

お問い合わせフォームはこちら

お問い合わせいただいた後は、
経験豊富なスタッフが全力でご支援いたします!

お電話でのお問い合わせ

0120-66-7102

受付時間 10:00~18:00(土日祝日を除く)

物件については[物件No.12604-0248]とお伝えください。

メールフォームでのお問い合わせ

ログインして問い合わせる
この物件をご覧頂くには、会員登録(無料)が必要です。【無料会員登録】
No.{{ index + 1 }}
営業おすすめ NEW

非公開 掲載終了 商談中 物件写真
{{ estate.price_pending_type_name }} 価格未定

お探しのエリアで今注目の物件

この物件をご覧頂くには、会員登録(無料)が必要です。【無料会員登録】
No.{{ index + 1 }}
営業おすすめ NEW

非公開 掲載終了 商談中 物件写真
{{ estate.price_pending_type_name }} 価格未定

近隣のよく似た物件リスト

この物件をご覧頂くには、会員登録(無料)が必要です。【無料会員登録】
No.{{ index + 1 }}
営業おすすめ NEW

非公開 掲載終了 商談中 物件写真
{{ estate.price_pending_type_name }} 価格未定

この物件と同じ特徴から探す

近隣の路線・駅から物件を探す

JR総武・中央緩行線 / 秋葉原 / 御茶ノ水 / 飯田橋 / 市ヶ谷 / 四ツ谷

近隣のエリアから物件を探す

文京区 / 中央区 / 台東区 / 港区 / 新宿区

関東エリアエリアから物件を探す

東京都 / 神奈川県 / 埼玉県 / 千葉県