ちいきぼオフィス賃貸事務所・賃貸オフィス一覧東京都の賃貸事務所・賃貸オフィス一覧千代田区の賃貸事務所・賃貸オフィス一覧第3東ビル

物件No.12604-0233

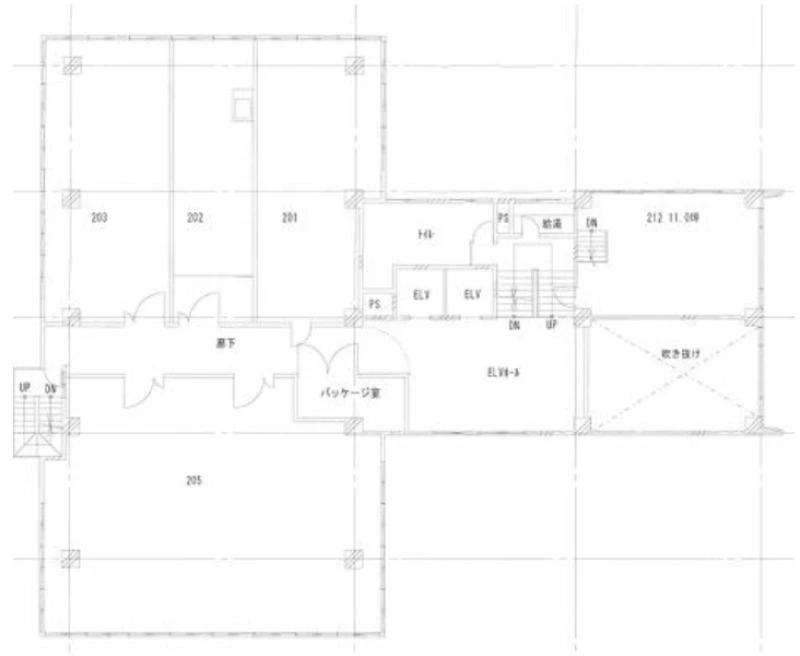
第3東ビル 2階 212 (16.00坪)

最終更新日:2026年4月14日

  • 賃料
    208,000 円(税抜)
  • 東京都 千代田区 神田平河町 1 地図で確認する
  • 秋葉原駅(JR山手線) 徒歩1分秋葉原駅(東京メトロ日比谷線) 徒歩1分、秋葉原駅(JR京浜東北・根岸線) 徒歩1分、秋葉原駅(JR総武・中央緩行線) 徒歩1分、岩本町駅(都営新宿線) 徒歩3分
  • 11階建(地下1階建)(1969年11月(築56年))
  • 2026年10月より入居可能

この物件の特徴・魅力

  • 駅徒歩5分以内
  • 個別空調
  • エレベーターあり
  • コスパ重視
  • 10坪台オフィス
  • 6~10人向けオフィス
  • NEW!

担当者コメント

担当者

第3東ビル 2階 212は、JR山手線「秋葉原」から徒歩1分のコンパクトオフィス・貸事務所です。駅至近の好立地で、通勤や来客時の利便性に非常に優れています。個別空調やエレベーターを完備しています。16坪のコンパクトなサイズ感は、少人数での運営や新規拠点に最適でしょう。

平面図

地図

画像をクリックすると上部の画像が切り替わります

お問い合わせいただいた後は、
経験豊富なスタッフが全力でご支援いたします!

お電話でのお問い合わせ

0120-66-7102

受付時間 10:00~18:00(土日祝日を除く)

物件については[物件No.12604-0233]とお伝えください。

メールフォームでのお問い合わせ

ログインして問い合わせる

第3東ビル 2階 212 (16.00坪) の基本情報

物件No 12604-0233
建物名 第3東ビル 2階 212 (16.00坪)
所在地
東京都千代田区神田平河町1  地図を見る 千代田区で他の物件を探す
募集階層/階建 地上2階 / 11階建(地下1階建)
坪数(平米) 16.00 坪(52.89 ㎡)
築年月(竣工) 1969年11月(築56年)
耐震
構造 鉄骨鉄筋コンクリート(SRC)
最寄駅
用途 貸事務所・オフィス
最終更新日 2026年4月14日

契約条件

※表示価格はすべて税抜表示です
賃料
208,000 円(税抜)
坪単価 13,000円/坪
共益費/管理費等 48,000円
保証金/敷金 8ヶ月
保証金償却 確認中
礼金 確認中
更新料 確認中
更新事務手数料 確認中
仲介手数料 確認中
造作価格
その他費用 解約予告:4ヶ月
建物賃貸借区分 定期借家契約
契約期間 2年
指定保証会社必須 要加入
引渡時期 2026年10月より入居可能
引渡状態
諸条件・相談 事務所可

設備詳細・その他

設備 エレベーター、エアコン、トイレ、給湯
エレベーター 有り
トイレ 有り
床仕様
空調 個別空調
駐車場
特徴・魅力 2沿線以上利用可
事務所内装の備考
ビル設備の備考 光ケーブル(MDFまで)
担当者コメント 第3東ビル 2階 212は、JR山手線「秋葉原」から徒歩1分のコンパクトオフィス・貸事務所です。駅至近の好立地で、通勤や来客時の利便性に非常に優れています。個別空調やエレベーターを完備しています。16坪のコンパクトなサイズ感は、少人数での運営や新規拠点に最適でしょう。

お問い合わせいただいた後は、
経験豊富なスタッフが全力でご支援いたします!

お電話でのお問い合わせ

0120-66-7102

受付時間 10:00~18:00(土日祝日を除く)

物件については[物件No.12604-0233]とお伝えください。

メールフォームでのお問い合わせ

ログインして問い合わせる

ビルやお部屋の雰囲気

外観

周辺環境

  • 【駅】秋葉原駅  

  • 【駅】秋葉原駅  

  • 【駅】秋葉原駅  

  • 【駅】秋葉原駅  

  • 【駅】秋葉原駅  

  • 【駅】末広町駅  

  • 【駅】末広町駅  

  • 【駅】神田駅  

  • 【駅】神田駅  

  • 【駅】末広町駅  

マップで見る周辺の類似物件

「人型アイコン」を地図上にドラッグすることで『Google ストリートビュー』に切り替わります。

※地図上の「対象地」は実際の場所ではない場合がございます。詳しくはお問い合わせください。

お問い合わせフォームはこちら

お問い合わせいただいた後は、
経験豊富なスタッフが全力でご支援いたします!

お電話でのお問い合わせ

0120-66-7102

受付時間 10:00~18:00(土日祝日を除く)

物件については[物件No.12604-0233]とお伝えください。

メールフォームでのお問い合わせ

ログインして問い合わせる
この物件をご覧頂くには、会員登録(無料)が必要です。【無料会員登録】
No.{{ index + 1 }}
営業おすすめ NEW

非公開 掲載終了 商談中 物件写真
{{ estate.price_pending_type_name }} 価格未定

お探しのエリアで今注目の物件

この物件をご覧頂くには、会員登録(無料)が必要です。【無料会員登録】
No.{{ index + 1 }}
営業おすすめ NEW

非公開 掲載終了 商談中 物件写真
{{ estate.price_pending_type_name }} 価格未定

近隣のよく似た物件リスト

この物件をご覧頂くには、会員登録(無料)が必要です。【無料会員登録】
No.{{ index + 1 }}
営業おすすめ NEW

非公開 掲載終了 商談中 物件写真
{{ estate.price_pending_type_name }} 価格未定

この物件と同じ特徴から探す

近隣の路線・駅から物件を探す

JR山手線 / 日暮里 / 鶯谷 / 上野 / 御徒町 / 神田

近隣のエリアから物件を探す

文京区 / 中央区 / 台東区 / 港区 / 新宿区

関東エリアエリアから物件を探す

東京都 / 神奈川県 / 埼玉県 / 千葉県