ちいきぼオフィス賃貸事務所・賃貸オフィス一覧大阪府の賃貸事務所・賃貸オフィス一覧大阪市城東区の賃貸事務所・賃貸オフィス一覧第1坂本ビル

物件No.12604-0157

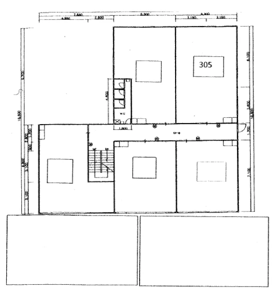
第1坂本ビル 3階 305号室 (18.40坪)

最終更新日:2026年5月15日

  • 賃料
    138,000 円(税抜)
  • 大阪府 大阪市城東区 中央1丁目 12-17 地図で確認する
  • 蒲生四丁目駅(大阪メトロ長堀鶴見線) 徒歩1分蒲生四丁目駅(大阪メトロ今里筋線) 徒歩1分、野江駅(京阪電鉄本線) 徒歩12分
  • 4階建(1970年12月(築55年))
  • 引渡時期はお問い合わせください

この物件の特徴・魅力

  • 営業おすすめ
  • 駅徒歩5分以内
  • VR内見あり
  • コスパ重視
  • 10坪台オフィス
  • 6~10人向けオフィス

担当者コメント

担当者

第1坂本ビル 3階 305号室は、大阪メトロ長堀鶴見線「蒲生四丁目」から徒歩1分のコンパクトオフィス・貸事務所です 。
駅から徒歩1分という利便性の高さが魅力の物件です 。面積は約18坪で、スタートアップや少人数の事務所に適したサイズ感となっています 。落ち着いた環境で業務に集中したい方におすすめです 。

平面図

地図

画像をクリックすると上部の画像が切り替わります

お問い合わせいただいた後は、
経験豊富なスタッフが全力でご支援いたします!

お電話でのお問い合わせ

0120-66-7102

受付時間 10:00~18:00(土日祝日を除く)

物件については[物件No.12604-0157]とお伝えください。

メールフォームでのお問い合わせ

ログインして問い合わせる

第1坂本ビル 3階 305号室 (18.40坪) の基本情報

物件No 12604-0157
建物名 第1坂本ビル 3階 305号室 (18.40坪)
所在地
大阪府大阪市城東区中央1丁目12-17  地図を見る 大阪市城東区で他の物件を探す
募集階層/階建 地上3階 / 4階建
坪数(平米) 18.40 坪(60.82 ㎡)
築年月(竣工) 1970年12月(築55年)
耐震
構造 鉄骨造
最寄駅
用途 貸事務所・オフィス
最終更新日 2026年5月15日

契約条件

※表示価格はすべて税抜表示です
賃料
138,000 円(税抜)
坪単価 7,500円/坪
共益費/管理費等 8,000円
保証金/敷金 確認中
保証金償却 確認中
礼金 500,000円
更新料 自動更新
更新事務手数料 確認中
仲介手数料 確認中
造作価格
その他費用 火災保険加入要/電気・水道:個メーター検針
建物賃貸借区分 普通借家契約
契約期間 2年
指定保証会社必須 要加入 (株式会社セーフティーイノベーション)※月額固定費の1ヶ月
引渡時期 お問い合わせください
引渡状態
諸条件・相談 事務所可

設備詳細・その他

設備
エレベーター
トイレ
床仕様
空調
駐車場 無 
特徴・魅力 2沿線以上利用可
事務所内装の備考
ビル設備の備考
担当者コメント 第1坂本ビル 3階 305号室は、大阪メトロ長堀鶴見線「蒲生四丁目」から徒歩1分のコンパクトオフィス・貸事務所です 。 駅から徒歩1分という利便性の高さが魅力の物件です 。面積は約18坪で、スタートアップや少人数の事務所に適したサイズ感となっています 。落ち着いた環境で業務に集中したい方におすすめです 。

動画/VR

お問い合わせいただいた後は、
経験豊富なスタッフが全力でご支援いたします!

お電話でのお問い合わせ

0120-66-7102

受付時間 10:00~18:00(土日祝日を除く)

物件については[物件No.12604-0157]とお伝えください。

メールフォームでのお問い合わせ

ログインして問い合わせる

ビルやお部屋の雰囲気

外観

マップで見る周辺の類似物件

「人型アイコン」を地図上にドラッグすることで『Google ストリートビュー』に切り替わります。

※地図上の「対象地」は実際の場所ではない場合がございます。詳しくはお問い合わせください。

お問い合わせフォームはこちら

お問い合わせいただいた後は、
経験豊富なスタッフが全力でご支援いたします!

お電話でのお問い合わせ

0120-66-7102

受付時間 10:00~18:00(土日祝日を除く)

物件については[物件No.12604-0157]とお伝えください。

メールフォームでのお問い合わせ

ログインして問い合わせる
この物件をご覧頂くには、会員登録(無料)が必要です。【無料会員登録】
No.{{ index + 1 }}
営業おすすめ NEW

非公開 掲載終了 商談中 物件写真
{{ estate.price_pending_type_name }} 価格未定

お探しのエリアで今注目の物件

この物件をご覧頂くには、会員登録(無料)が必要です。【無料会員登録】
No.{{ index + 1 }}
営業おすすめ NEW

非公開 掲載終了 商談中 物件写真
{{ estate.price_pending_type_name }} 価格未定

近隣のよく似た物件リスト

この物件をご覧頂くには、会員登録(無料)が必要です。【無料会員登録】
No.{{ index + 1 }}
営業おすすめ NEW

非公開 掲載終了 商談中 物件写真
{{ estate.price_pending_type_name }} 価格未定

この物件と同じ特徴から探す

近隣のエリアから物件を探す

大阪市都島区 / 大阪市東成区 / 大阪市鶴見区 / 大阪市旭区 / 大阪市北区

近畿エリアエリアから物件を探す

大阪府 / 兵庫県 / 京都府