ちいきぼオフィス賃貸事務所・賃貸オフィス一覧東京都の賃貸事務所・賃貸オフィス一覧千代田区の賃貸事務所・賃貸オフィス一覧早川トナカイビル

物件No.12604-0119

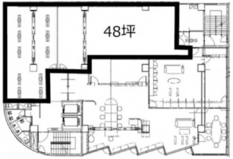
早川トナカイビル 2階 (48.04坪)

最終更新日:2026年4月7日

  • 賃料
    624,520 円(税抜)
  • 東京都 千代田区 岩本町2丁目 12-5 地図で確認する
  • 岩本町駅(都営新宿線) 徒歩3分秋葉原駅(東京メトロ日比谷線) 徒歩6分、秋葉原駅(JR山手線) 徒歩6分、小伝馬町駅(東京メトロ日比谷線) 徒歩6分、馬喰町駅(JR総武本線) 徒歩10分
  • 9階建(1973年6月(築52年))
  • 即入居可能

この物件の特徴・魅力

  • 24時間利用可能
  • 機械警備
  • 駅徒歩5分以内
  • 即入居可能
  • 個別空調
  • OAフロア
  • 写真が豊富
  • エレベーターあり
  • コスパ重視
  • 40坪台オフィス
  • 21~30人向けオフィス

担当者コメント

担当者

早川トナカイビル 2階は、都営新宿線「岩本町」から徒歩3分の中規模オフィス・貸事務所です。駅から徒歩圏内の好立地で、通勤に大変便利です。天井高2,750mmの開放的な室内は、OAフロア仕様で配線もスムーズに行えます。耐震補強工事済みのため、BCP対策を重視する企業様にも安心です。男女別トイレや個別空調、エレベーターを完備しており快適にご利用いただけます。

平面図

地図

お問い合わせいただいた後は、
経験豊富なスタッフが全力でご支援いたします!

お電話でのお問い合わせ

0120-66-7102

受付時間 10:00~18:00(土日祝日を除く)

物件については[物件No.12604-0119]とお伝えください。

メールフォームでのお問い合わせ

ログインして問い合わせる

早川トナカイビル 2階 (48.04坪) の基本情報

物件No 12604-0119
建物名 早川トナカイビル 2階 (48.04坪)
所在地
東京都千代田区岩本町2丁目12-5  地図を見る 千代田区で他の物件を探す
募集階層/階建 地上2階 / 9階建
坪数(平米) 48.04 坪(158.80 ㎡)
築年月(竣工) 1973年6月(築52年)
耐震
構造 鉄骨鉄筋コンクリート(SRC)
最寄駅
用途 貸事務所・オフィス
最終更新日 2026年4月7日

契約条件

※表示価格はすべて税抜表示です
賃料
624,520 円(税抜)
坪単価 13,000円/坪
共益費/管理費等 無し
保証金/敷金 6ヶ月
保証金償却 無し
礼金 無し
更新料 無し
更新事務手数料 確認中
仲介手数料 確認中
造作価格
その他費用 日常清掃費:33000円/月
水道代は賃料に含む
建物賃貸借区分 定期借家契約
契約期間 5年
指定保証会社必須 要加入
引渡時期 即入居可能
引渡状態
諸条件・相談 事務所可

設備詳細・その他

設備 エレベーター、エアコン、トイレ
エレベーター 有り
トイレ 共用部
床仕様 OAフロア
空調 個別空調
駐車場 無 
特徴・魅力 2沿線以上利用可
事務所内装の備考 天高:2,750mm/床仕様 OAフロアタイルカーペット
ビル設備の備考 耐震補強工事済み/エントランス開放時間 平日5:30~21:30
担当者コメント 早川トナカイビル 2階は、都営新宿線「岩本町」から徒歩3分の中規模オフィス・貸事務所です。駅から徒歩圏内の好立地で、通勤に大変便利です。天井高2,750mmの開放的な室内は、OAフロア仕様で配線もスムーズに行えます。耐震補強工事済みのため、BCP対策を重視する企業様にも安心です。男女別トイレや個別空調、エレベーターを完備しており快適にご利用いただけます。

お問い合わせいただいた後は、
経験豊富なスタッフが全力でご支援いたします!

お電話でのお問い合わせ

0120-66-7102

受付時間 10:00~18:00(土日祝日を除く)

物件については[物件No.12604-0119]とお伝えください。

メールフォームでのお問い合わせ

ログインして問い合わせる

ビルやお部屋の雰囲気

外観

内観・その他

周辺環境

  • 【駅】秋葉原駅  

  • 【駅】秋葉原駅  

  • 【駅】小伝馬町駅  

  • 【駅】小伝馬町駅  

  • 【駅】小伝馬町駅 3番出口  

  • 【駅】神田駅  

  • 【駅】神田駅  

  • 【駅】秋葉原駅  

  • 【駅】秋葉原駅  

  • 【駅】秋葉原駅  

マップで見る周辺の類似物件

「人型アイコン」を地図上にドラッグすることで『Google ストリートビュー』に切り替わります。

※地図上の「対象地」は実際の場所ではない場合がございます。詳しくはお問い合わせください。

お問い合わせフォームはこちら

お問い合わせいただいた後は、
経験豊富なスタッフが全力でご支援いたします!

お電話でのお問い合わせ

0120-66-7102

受付時間 10:00~18:00(土日祝日を除く)

物件については[物件No.12604-0119]とお伝えください。

メールフォームでのお問い合わせ

ログインして問い合わせる
この物件をご覧頂くには、会員登録(無料)が必要です。【無料会員登録】
No.{{ index + 1 }}
営業おすすめ NEW

非公開 掲載終了 商談中 物件写真
{{ estate.price_pending_type_name }} 価格未定

お探しのエリアで今注目の物件

この物件をご覧頂くには、会員登録(無料)が必要です。【無料会員登録】
No.{{ index + 1 }}
営業おすすめ NEW

非公開 掲載終了 商談中 物件写真
{{ estate.price_pending_type_name }} 価格未定

近隣のよく似た物件リスト

この物件をご覧頂くには、会員登録(無料)が必要です。【無料会員登録】
No.{{ index + 1 }}
営業おすすめ NEW

非公開 掲載終了 商談中 物件写真
{{ estate.price_pending_type_name }} 価格未定

この物件と同じ特徴から探す

近隣の路線・駅から物件を探す

都営新宿線 / 神保町 / 小川町 / 馬喰横山 / 浜町 / 菊川

近隣のエリアから物件を探す

文京区 / 中央区 / 台東区 / 港区 / 新宿区

関東エリアエリアから物件を探す

東京都 / 神奈川県 / 埼玉県 / 千葉県