ちいきぼオフィス賃貸事務所・賃貸オフィス一覧東京都の賃貸事務所・賃貸オフィス一覧中央区の賃貸事務所・賃貸オフィス一覧依田忠ビル

物件No.12604-0104

依田忠ビル 6階 (53.01坪)

最終更新日:2026年4月7日

  • 賃料
    742,140 円(税抜)
  • 東京都 中央区 京橋1丁目 14-9 地図で確認する
  • 宝町駅(都営浅草線) 徒歩3分京橋駅(東京メトロ銀座線) 徒歩4分、日本橋駅(東京メトロ東西線) 徒歩8分、東京駅(JR山手線) 徒歩8分、八丁堀駅(東京メトロ日比谷線) 徒歩10分
  • 1965年7月(築60年)
  • 即入居可能

この物件の特徴・魅力

  • 機械警備
  • 営業おすすめ
  • 駅徒歩5分以内
  • 即入居可能
  • 個別空調
  • 男女別トイレ
  • エレベーターあり
  • コスパ重視
  • 50坪台オフィス
  • 21~30人向けオフィス

担当者コメント

担当者

依田忠ビル 6階は、都営浅草線「宝町」から徒歩3分のオフィス・貸事務所です。
53.01坪の広々とした室内は、レイアウトしやすいフロアダクト仕様。LED照明や100Aの電気容量、光ケーブル完備など、ビジネスに欠かせない設備が整っています。トイレや個別空調、エレベーターを完備しており快適にご利用いただけます。複数路線が利用可能な京橋エリアで、利便性も抜群です。

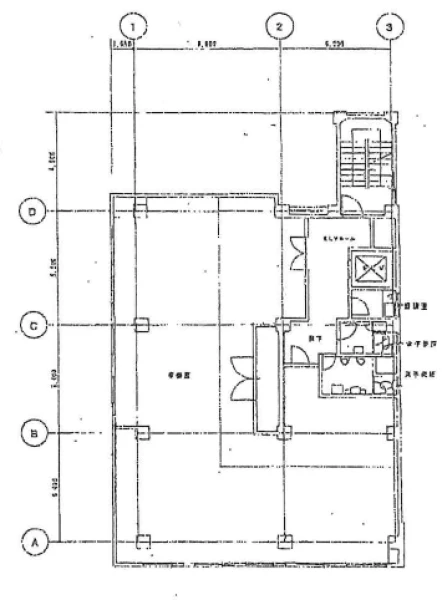
平面図

地図

画像をクリックすると上部の画像が切り替わります

お問い合わせいただいた後は、
経験豊富なスタッフが全力でご支援いたします!

お電話でのお問い合わせ

0120-66-7102

受付時間 10:00~18:00(土日祝日を除く)

物件については[物件No.12604-0104]とお伝えください。

メールフォームでのお問い合わせ

ログインして問い合わせる

依田忠ビル 6階 (53.01坪) の基本情報

物件No 12604-0104
建物名 依田忠ビル 6階 (53.01坪)
所在地
東京都中央区京橋1丁目14-9  地図を見る 中央区で他の物件を探す
募集階層/階建 地上6階
坪数(平米) 53.01 坪(175.23 ㎡)
築年月(竣工) 1965年7月(築60年)
耐震
構造 鉄骨鉄筋コンクリート(SRC)
最寄駅
用途 貸事務所・オフィス
最終更新日 2026年4月7日

契約条件

※表示価格はすべて税抜表示です
賃料
742,140 円(税抜)
坪単価 14,000円/坪
共益費/管理費等 159,030円
保証金/敷金 8ヶ月
保証金償却 1ヶ月
解約時
礼金 確認中
更新料 1ヶ月
更新
新賃料
更新事務手数料 確認中
仲介手数料 確認中
造作価格
その他費用
建物賃貸借区分 普通借家契約
契約期間 2年
指定保証会社必須 要加入 (株式会社セーフティーイノベーション)※月額固定費の1ヶ月
引渡時期 即入居可能
引渡状態
諸条件・相談 事務所可

設備詳細・その他

設備 エレベーター、エアコン、トイレ、給湯、電気
エレベーター 有り
トイレ 男女別
床仕様
空調 個別空調
駐車場
特徴・魅力 2沿線以上利用可
事務所内装の備考 床:フロアダクト/電気容量:100A/LED照明
ビル設備の備考 光ケーブル:ビルまで引込み済
担当者コメント 依田忠ビル 6階は、都営浅草線「宝町」から徒歩3分のオフィス・貸事務所です。 53.01坪の広々とした室内は、レイアウトしやすいフロアダクト仕様。LED照明や100Aの電気容量、光ケーブル完備など、ビジネスに欠かせない設備が整っています。トイレや個別空調、エレベーターを完備しており快適にご利用いただけます。複数路線が利用可能な京橋エリアで、利便性も抜群です。

お問い合わせいただいた後は、
経験豊富なスタッフが全力でご支援いたします!

お電話でのお問い合わせ

0120-66-7102

受付時間 10:00~18:00(土日祝日を除く)

物件については[物件No.12604-0104]とお伝えください。

メールフォームでのお問い合わせ

ログインして問い合わせる

ビルやお部屋の雰囲気

外観

周辺環境

  • 【駅】京橋駅(6番出口付近)  

  • 【駅】八丁堀駅  

  • 【駅】八丁堀駅(出口付近)  

  • 【駅】八丁堀駅  

  • 【銀行】周辺の銀行  

  • 【駅】銀座一丁目駅  

  • 【周辺の街並み】周辺の街並み  

  • 【病院】周辺の病院  

  • 【病院】周辺の病院  

  • 【コンビニ】周辺のコンビニ  

マップで見る周辺の類似物件

「人型アイコン」を地図上にドラッグすることで『Google ストリートビュー』に切り替わります。

※地図上の「対象地」は実際の場所ではない場合がございます。詳しくはお問い合わせください。

お問い合わせフォームはこちら

お問い合わせいただいた後は、
経験豊富なスタッフが全力でご支援いたします!

お電話でのお問い合わせ

0120-66-7102

受付時間 10:00~18:00(土日祝日を除く)

物件については[物件No.12604-0104]とお伝えください。

メールフォームでのお問い合わせ

ログインして問い合わせる
この物件をご覧頂くには、会員登録(無料)が必要です。【無料会員登録】
No.{{ index + 1 }}
営業おすすめ NEW

非公開 掲載終了 商談中 物件写真
{{ estate.price_pending_type_name }} 価格未定

お探しのエリアで今注目の物件

この物件をご覧頂くには、会員登録(無料)が必要です。【無料会員登録】
No.{{ index + 1 }}
営業おすすめ NEW

非公開 掲載終了 商談中 物件写真
{{ estate.price_pending_type_name }} 価格未定

近隣のよく似た物件リスト

この物件をご覧頂くには、会員登録(無料)が必要です。【無料会員登録】
No.{{ index + 1 }}
営業おすすめ NEW

非公開 掲載終了 商談中 物件写真
{{ estate.price_pending_type_name }} 価格未定

この物件と同じ特徴から探す

近隣の路線・駅から物件を探す

都営浅草線 / 人形町 / 日本橋 / 東銀座 / 新橋 / 大門

近隣のエリアから物件を探す

港区 / 千代田区 / 江東区 / 文京区 / 台東区

関東エリアエリアから物件を探す

東京都 / 神奈川県 / 埼玉県 / 千葉県