ちいきぼオフィス賃貸事務所・賃貸オフィス一覧東京都の賃貸事務所・賃貸オフィス一覧豊島区の賃貸事務所・賃貸オフィス一覧日本綜合地所大塚ビル

物件No.12604-0067

日本綜合地所大塚ビル 4階 403 (47.57坪)

最終更新日:2026年4月6日

  • 賃料
    618,410 円(税抜)
  • 東京都 豊島区 北大塚1丁目 13-17 地図で確認する
  • 大塚駅(JR山手線) 徒歩4分大塚駅前駅(都電荒川線) 徒歩4分、巣鴨新田駅(都電荒川線) 徒歩9分、向原駅(都電荒川線) 徒歩11分、新大塚駅(東京メトロ丸ノ内線) 徒歩13分
  • 5階建(地下1階建)(新耐震基準/1993年3月(築33年))
  • 引渡時期はお問い合わせください

この物件の特徴・魅力

  • 機械警備
  • 駅徒歩5分以内
  • 個別空調
  • OAフロア
  • エレベーターあり
  • コスパ重視
  • 40坪台オフィス
  • 21~30人向けオフィス

担当者コメント

担当者

日本綜合地所大塚ビル 4階 403は、JR山手線「大塚」から徒歩4分の中規模オフィス・貸事務所です。駅から徒歩圏内の好立地で、通勤の利便性が高い物件です。室内は天井高2,600mm、50mmのOAフロアを備え、効率的なレイアウトが可能です。トイレや個別空調、エレベーターを完備しており快適にご利用いただけます。

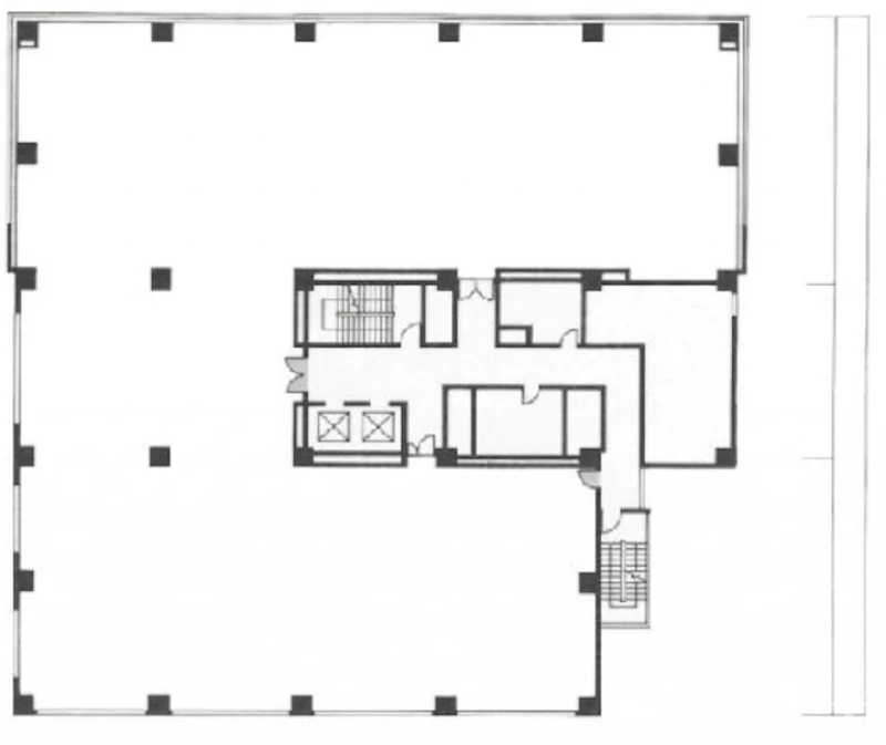
平面図

地図

画像をクリックすると上部の画像が切り替わります

お問い合わせいただいた後は、
経験豊富なスタッフが全力でご支援いたします!

お電話でのお問い合わせ

0120-66-7102

受付時間 10:00~18:00(土日祝日を除く)

物件については[物件No.12604-0067]とお伝えください。

メールフォームでのお問い合わせ

ログインして問い合わせる

日本綜合地所大塚ビル 4階 403 (47.57坪) の基本情報

物件No 12604-0067
建物名 日本綜合地所大塚ビル 4階 403 (47.57坪)
所在地
東京都豊島区北大塚1丁目13-17  地図を見る 豊島区で他の物件を探す
募集階層/階建 地上4階 / 5階建(地下1階建)
坪数(平米) 47.57 坪(157.25 ㎡)
築年月(竣工) 1993年3月(築33年)
耐震 新耐震基準
構造 鉄骨鉄筋コンクリート(SRC)
最寄駅
用途 貸事務所・オフィス
最終更新日 2026年4月6日

契約条件

※表示価格はすべて税抜表示です
賃料
618,410 円(税抜)
坪単価 13,000円/坪
共益費/管理費等 142,710円
保証金/敷金 8ヶ月
保証金償却 1ヶ月
礼金 1ヶ月
更新料 1ヶ月
更新
新賃料
更新事務手数料 確認中
仲介手数料 確認中
造作価格
その他費用
建物賃貸借区分 普通借家契約
契約期間 2年
指定保証会社必須 要加入
引渡時期 お問い合わせください
引渡状態
諸条件・相談 事務所可

設備詳細・その他

設備 エレベーター、エアコン、トイレ
エレベーター 有り
トイレ 共用部
床仕様 OAフロア
空調 個別空調
駐車場 空無 
特徴・魅力 2沿線以上利用可
事務所内装の備考 天井高:2,600mm/OAフロア:50mm
ビル設備の備考 地下自走式駐車場あり 空無し/全館LEDに交換予定
担当者コメント 日本綜合地所大塚ビル 4階 403は、JR山手線「大塚」から徒歩4分の中規模オフィス・貸事務所です。駅から徒歩圏内の好立地で、通勤の利便性が高い物件です。室内は天井高2,600mm、50mmのOAフロアを備え、効率的なレイアウトが可能です。トイレや個別空調、エレベーターを完備しており快適にご利用いただけます。

お問い合わせいただいた後は、
経験豊富なスタッフが全力でご支援いたします!

お電話でのお問い合わせ

0120-66-7102

受付時間 10:00~18:00(土日祝日を除く)

物件については[物件No.12604-0067]とお伝えください。

メールフォームでのお問い合わせ

ログインして問い合わせる

ビルやお部屋の雰囲気

外観

周辺環境

  • 【駅】JR大塚駅  

  • 【駅】大塚駅  

  • 【駅】JR大塚駅  

  • 【駅】巣鴨新田駅  

  • 【駅】巣鴨駅  

マップで見る周辺の類似物件

「人型アイコン」を地図上にドラッグすることで『Google ストリートビュー』に切り替わります。

※地図上の「対象地」は実際の場所ではない場合がございます。詳しくはお問い合わせください。

お問い合わせフォームはこちら

お問い合わせいただいた後は、
経験豊富なスタッフが全力でご支援いたします!

お電話でのお問い合わせ

0120-66-7102

受付時間 10:00~18:00(土日祝日を除く)

物件については[物件No.12604-0067]とお伝えください。

メールフォームでのお問い合わせ

ログインして問い合わせる
この物件をご覧頂くには、会員登録(無料)が必要です。【無料会員登録】
No.{{ index + 1 }}
営業おすすめ NEW

非公開 掲載終了 商談中 物件写真
{{ estate.price_pending_type_name }} 価格未定

お探しのエリアで今注目の物件

この物件をご覧頂くには、会員登録(無料)が必要です。【無料会員登録】
No.{{ index + 1 }}
営業おすすめ NEW

非公開 掲載終了 商談中 物件写真
{{ estate.price_pending_type_name }} 価格未定

近隣のよく似た物件リスト

この物件をご覧頂くには、会員登録(無料)が必要です。【無料会員登録】
No.{{ index + 1 }}
営業おすすめ NEW

非公開 掲載終了 商談中 物件写真
{{ estate.price_pending_type_name }} 価格未定

この物件と同じ特徴から探す

近隣の路線・駅から物件を探す

JR山手線 / 目白 / 池袋 / 巣鴨 / 駒込 / 田端

近隣のエリアから物件を探す

板橋区 / 北区 / 新宿区 / 文京区 / 千代田区

関東エリアエリアから物件を探す

東京都 / 神奈川県 / 埼玉県 / 千葉県