ちいきぼオフィス賃貸事務所・賃貸オフィス一覧大阪府の賃貸事務所・賃貸オフィス一覧大阪市北区の賃貸事務所・賃貸オフィス一覧GUILD Lab

物件No.12604-0008

GUILD Lab 2階 (21.50坪)

最終更新日:2026年4月1日

  • 賃料
    215,000 円(税抜)
  • 大阪府 大阪市北区 大淀中1丁目 6-13 地図で確認する
  • 中津駅(阪急電鉄宝塚線) 徒歩6分中津駅(阪急電鉄神戸線) 徒歩6分、中津駅(大阪メトロ御堂筋線) 徒歩6分
  • 6階建(1992年4月(築34年))
  • 引渡時期はお問い合わせください

この物件の特徴・魅力

  • 個別空調
  • 写真が豊富
  • 男女別トイレ
  • エレベーターあり
  • 20坪台オフィス
  • 11~15人向けオフィス

担当者コメント

担当者

GUILD Lab 2階は、阪急電鉄宝塚線「中津」から徒歩6分のオフィス・貸事務所です。天井高が2.5m確保されており、約21.5坪の開放的な空間が広がります。管理費が不要で、ランニングコストを明確に把握できる点が魅力です。広さと機能性を兼ね備えた快適なビジネス拠点として活用いただけます。トイレや個別空調、エレベーターを完備しており快適にご利用いただけます。

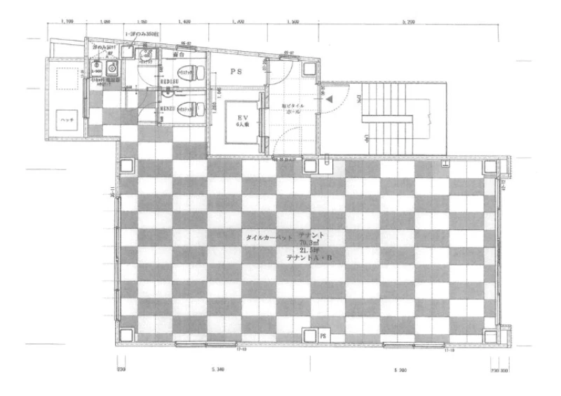
平面図

地図

お問い合わせいただいた後は、
経験豊富なスタッフが全力でご支援いたします!

お電話でのお問い合わせ

0120-66-7102

受付時間 10:00~18:00(土日祝日を除く)

物件については[物件No.12604-0008]とお伝えください。

メールフォームでのお問い合わせ

ログインして問い合わせる

GUILD Lab 2階 (21.50坪) の基本情報

物件No 12604-0008
建物名 GUILD Lab 2階 (21.50坪)
所在地
大阪府大阪市北区大淀中1丁目6-13  地図を見る 大阪市北区で他の物件を探す
募集階層/階建 地上2階 / 6階建
坪数(平米) 21.50 坪(71.07 ㎡)
築年月(竣工) 1992年4月(築34年)
耐震
構造 鉄骨造
最寄駅
用途 貸事務所・オフィス
最終更新日 2026年4月1日

契約条件

※表示価格はすべて税抜表示です
賃料
215,000 円(税抜)
坪単価 10,000円/坪
共益費/管理費等 無し
保証金/敷金 6ヶ月
保証金償却 3ヶ月
礼金 確認中
更新料 確認中
更新事務手数料 確認中
仲介手数料 1ヶ月
造作価格
その他費用
建物賃貸借区分
契約期間 確認中
指定保証会社必須 要加入
引渡時期 お問い合わせください
2026年10月以降相談
引渡状態
諸条件・相談 事務所可

設備詳細・その他

設備 トイレ、エレベーター、エアコン
エレベーター 有り
トイレ 男女別
床仕様
空調 個別空調
駐車場 無 
特徴・魅力 2沿線以上利用可
事務所内装の備考 天井高:2.5m
ビル設備の備考
担当者コメント GUILD Lab 2階は、阪急電鉄宝塚線「中津」から徒歩6分のオフィス・貸事務所です。天井高が2.5m確保されており、約21.5坪の開放的な空間が広がります。管理費が不要で、ランニングコストを明確に把握できる点が魅力です。広さと機能性を兼ね備えた快適なビジネス拠点として活用いただけます。トイレや個別空調、エレベーターを完備しており快適にご利用いただけます。

お問い合わせいただいた後は、
経験豊富なスタッフが全力でご支援いたします!

お電話でのお問い合わせ

0120-66-7102

受付時間 10:00~18:00(土日祝日を除く)

物件については[物件No.12604-0008]とお伝えください。

メールフォームでのお問い合わせ

ログインして問い合わせる

ビルやお部屋の雰囲気

外観

内観・その他

周辺環境

  • 【駅】中津駅  

マップで見る周辺の類似物件

「人型アイコン」を地図上にドラッグすることで『Google ストリートビュー』に切り替わります。

※地図上の「対象地」は実際の場所ではない場合がございます。詳しくはお問い合わせください。

お問い合わせフォームはこちら

お問い合わせいただいた後は、
経験豊富なスタッフが全力でご支援いたします!

お電話でのお問い合わせ

0120-66-7102

受付時間 10:00~18:00(土日祝日を除く)

物件については[物件No.12604-0008]とお伝えください。

メールフォームでのお問い合わせ

ログインして問い合わせる
この物件をご覧頂くには、会員登録(無料)が必要です。【無料会員登録】
No.{{ index + 1 }}
営業おすすめ NEW

非公開 掲載終了 商談中 物件写真
{{ estate.price_pending_type_name }} 価格未定

お探しのエリアで今注目の物件

この物件をご覧頂くには、会員登録(無料)が必要です。【無料会員登録】
No.{{ index + 1 }}
営業おすすめ NEW

非公開 掲載終了 商談中 物件写真
{{ estate.price_pending_type_name }} 価格未定

近隣のよく似た物件リスト

この物件をご覧頂くには、会員登録(無料)が必要です。【無料会員登録】
No.{{ index + 1 }}
営業おすすめ NEW

非公開 掲載終了 商談中 物件写真
{{ estate.price_pending_type_name }} 価格未定

この物件と同じ特徴から探す

近隣の路線・駅から物件を探す

阪急電鉄宝塚線 / 大阪梅田 / 十三 / 庄内 / 蛍池

近隣のエリアから物件を探す

大阪市都島区 / 大阪市淀川区 / 大阪市城東区 / 大阪市東淀川区 / 大阪市旭区

近畿エリアエリアから物件を探す

大阪府 / 兵庫県 / 京都府