ちいきぼオフィス賃貸事務所・賃貸オフィス一覧東京都の賃貸事務所・賃貸オフィス一覧新宿区の賃貸事務所・賃貸オフィス一覧DeLCCS新宿御苑

物件No.12603-0580

DeLCCS新宿御苑 6階 (21.70坪)

最終更新日:2026年3月30日

  • 賃料
    477,400 円(税抜)
  • 東京都 新宿区 四谷4丁目 25 地図で確認する
  • 新宿御苑前駅(東京メトロ丸ノ内線) 徒歩6分四谷三丁目駅(東京メトロ丸ノ内線) 徒歩7分、曙橋駅(都営新宿線) 徒歩10分、新宿三丁目駅(東京メトロ丸ノ内線) 徒歩15分、新宿三丁目駅(都営新宿線) 徒歩15分
  • 6階建(地下1階建)(1986年12月(築39年))
  • 2026年6月中旬より入居可能

この物件の特徴・魅力

  • 24時間利用可能
  • セットアップ
  • 20坪台オフィス
  • 11~15人向けオフィス

担当者コメント

担当者

DeLCCS新宿御苑 6階は、東京メトロ丸ノ内線「新宿御苑前」から徒歩6分の小規模オフィス・貸事務所です。
内装付きのセットアップ物件で、初期費用を抑えてスムーズに業務を開始できます。トイレを完備しており、エントランスはオートロック完備でリニューアル済みのため、来客時も安心です。什器は付属しませんが、自由なレイアウトを楽しめます。

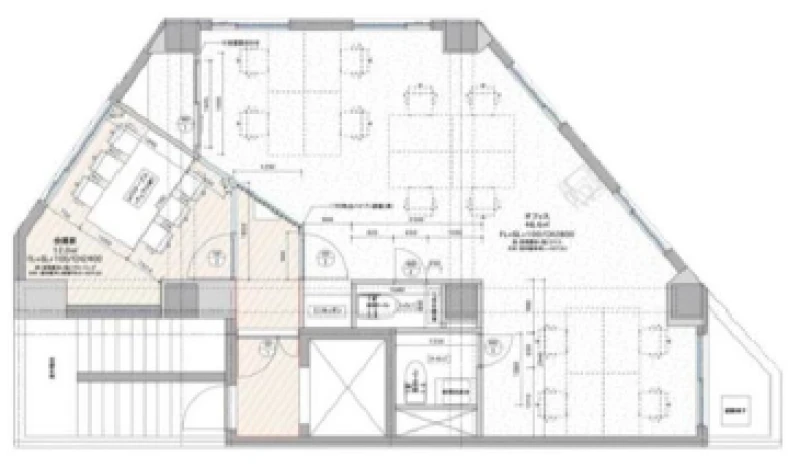
平面図

地図

画像をクリックすると上部の画像が切り替わります

お問い合わせいただいた後は、
経験豊富なスタッフが全力でご支援いたします!

お電話でのお問い合わせ

0120-66-7102

受付時間 10:00~18:00(土日祝日を除く)

物件については[物件No.12603-0580]とお伝えください。

メールフォームでのお問い合わせ

ログインして問い合わせる

DeLCCS新宿御苑 6階 (21.70坪) の基本情報

物件No 12603-0580
建物名 DeLCCS新宿御苑 6階 (21.70坪)
所在地
東京都新宿区四谷4丁目25  地図を見る 新宿区で他の物件を探す
募集階層/階建 地上6階 / 6階建(地下1階建)
坪数(平米) 21.70 坪(71.73 ㎡)
築年月(竣工) 1986年12月(築39年)
耐震
構造 鉄筋コンクリート(RC)
最寄駅
用途 貸事務所・オフィス
最終更新日 2026年3月30日

契約条件

※表示価格はすべて税抜表示です
賃料
477,400 円(税抜)
坪単価 22,000円/坪
共益費/管理費等 無し
保証金/敷金 無し
保証金償却 無し
礼金 無し
更新料 1ヶ月
更新
新賃料
更新事務手数料
仲介手数料
造作価格
その他費用 別途ゴミ回収業者との契約必須
建物賃貸借区分 普通借家契約
契約期間 2年
指定保証会社必須 要加入
引渡時期 2026年6月中旬より入居可能
引渡状態 セットアップオフィス
諸条件・相談 事務所可

設備詳細・その他

設備 トイレ、オートロック
エレベーター
トイレ 有り
床仕様
空調
駐車場
特徴・魅力 2沿線以上利用可
事務所内装の備考 内装付きセットアップ物件(執務室什器は無)
ビル設備の備考 エントランスリニューアル済み/エントランスオートロック
担当者コメント DeLCCS新宿御苑 6階は、東京メトロ丸ノ内線「新宿御苑前」から徒歩6分の小規模オフィス・貸事務所です。 内装付きのセットアップ物件で、初期費用を抑えてスムーズに業務を開始できます。トイレを完備しており、エントランスはオートロック完備でリニューアル済みのため、来客時も安心です。什器は付属しませんが、自由なレイアウトを楽しめます。

お問い合わせいただいた後は、
経験豊富なスタッフが全力でご支援いたします!

お電話でのお問い合わせ

0120-66-7102

受付時間 10:00~18:00(土日祝日を除く)

物件については[物件No.12603-0580]とお伝えください。

メールフォームでのお問い合わせ

ログインして問い合わせる

ビルやお部屋の雰囲気

外観

周辺環境

  • 【駅】新宿御苑前駅 2番出口  

  • 【駅】新宿御苑前駅  

  • 【駅】四谷三丁目駅  

  • 【駅】新宿御苑前駅  

  • 【駅】東京メトロ丸の内線 四谷三丁目駅  

  • 【駅】新宿三丁目駅  

  • 【駅】新宿三丁目駅  

  • 【駅】新宿三丁目駅  

マップで見る周辺の類似物件

「人型アイコン」を地図上にドラッグすることで『Google ストリートビュー』に切り替わります。

※地図上の「対象地」は実際の場所ではない場合がございます。詳しくはお問い合わせください。

お問い合わせフォームはこちら

お問い合わせいただいた後は、
経験豊富なスタッフが全力でご支援いたします!

お電話でのお問い合わせ

0120-66-7102

受付時間 10:00~18:00(土日祝日を除く)

物件については[物件No.12603-0580]とお伝えください。

メールフォームでのお問い合わせ

ログインして問い合わせる
この物件をご覧頂くには、会員登録(無料)が必要です。【無料会員登録】
No.{{ index + 1 }}
営業おすすめ NEW

非公開 掲載終了 商談中 物件写真
{{ estate.price_pending_type_name }} 価格未定

お探しのエリアで今注目の物件

この物件をご覧頂くには、会員登録(無料)が必要です。【無料会員登録】
No.{{ index + 1 }}
営業おすすめ NEW

非公開 掲載終了 商談中 物件写真
{{ estate.price_pending_type_name }} 価格未定

近隣のよく似た物件リスト

この物件をご覧頂くには、会員登録(無料)が必要です。【無料会員登録】
No.{{ index + 1 }}
営業おすすめ NEW

非公開 掲載終了 商談中 物件写真
{{ estate.price_pending_type_name }} 価格未定

この物件と同じ特徴から探す

近隣の路線・駅から物件を探す

東京メトロ丸ノ内線 / 四ツ谷 / 四谷三丁目 / 新宿三丁目 / 新宿 / 西新宿

近隣のエリアから物件を探す

渋谷区 / 豊島区 / 中野区 / 千代田区 / 文京区

関東エリアエリアから物件を探す

東京都 / 神奈川県 / 埼玉県 / 千葉県