ちいきぼオフィス賃貸事務所・賃貸オフィス一覧大阪府の賃貸事務所・賃貸オフィス一覧大阪市西区の賃貸事務所・賃貸オフィス一覧行成ビル

物件No.12603-0498

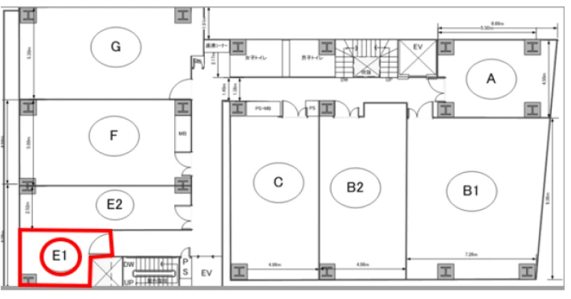
行成ビル 4階 E1号室 (5.62坪)

最終更新日:2026年3月25日

  • 賃料
    62,000 円(税抜)
  • 大阪府 大阪市西区 新町1丁目 8-1 地図で確認する
  • 四ツ橋駅(大阪メトロ四つ橋線) 徒歩2分西大橋駅(大阪メトロ長堀鶴見線) 徒歩6分、心斎橋駅(大阪メトロ長堀鶴見線) 徒歩9分、心斎橋駅(大阪メトロ御堂筋線) 徒歩9分、本町駅(大阪メトロ四つ橋線) 徒歩14分
  • 10階建(1974年)
  • 2026年7月中旬より入居可能

この物件の特徴・魅力

  • セキュリティ充実
  • 24時間利用可能
  • 駅徒歩5分以内
  • 写真が豊富
  • 男女別トイレ
  • エレベーターあり
  • 3~5人向けオフィス

担当者コメント

担当者

行成ビル 4階 E1号室は、大阪メトロ四つ橋線「四ツ橋」から徒歩2分のコンパクトオフィス・貸事務所です。
駅から徒歩2分と非常に近く、通勤や来客に便利な立地です。 5.62坪のコンパクトな室内で、設備としてエアコンやトイレ、エレベーターを完備しています。 セコム導入済みで、貸会議室や屋上の喫煙スペースも利用可能です。

平面図

地図

お問い合わせいただいた後は、
経験豊富なスタッフが全力でご支援いたします!

お電話でのお問い合わせ

0120-66-7102

受付時間 10:00~18:00(土日祝日を除く)

物件については[物件No.12603-0498]とお伝えください。

メールフォームでのお問い合わせ

ログインして問い合わせる

行成ビル 4階 E1号室 (5.62坪) の基本情報

物件No 12603-0498
建物名 行成ビル 4階 E1号室 (5.62坪)
所在地
大阪府大阪市西区新町1丁目8-1  地図を見る 大阪市西区で他の物件を探す
募集階層/階建 地上4階 / 10階建
坪数(平米) 5.62 坪(18.57 ㎡)
築年月(竣工) 1974年
耐震
構造 鉄骨鉄筋コンクリート(SRC)
最寄駅
用途 貸事務所・オフィス
最終更新日 2026年3月25日

契約条件

※表示価格はすべて税抜表示です
賃料
62,000 円(税抜)
坪単価 11,032円/坪
共益費/管理費等 8,500円
保証金/敷金 4.5ヶ月
保証金償却 確認中
礼金 無し
更新料 確認中
更新事務手数料 確認中
仲介手数料 確認中
造作価格
その他費用 水道代:2,000円/警備費:6,000円/電気料金貸主検針/火災保険加入
建物賃貸借区分
契約期間 確認中
指定保証会社必須 要加入
引渡時期 2026年7月中旬より入居可能
引渡状態
諸条件・相談 事務所可

設備詳細・その他

設備 エレベーター、冷蔵庫、エアコン、トイレ、給湯、電気
エレベーター 有り
トイレ 男女別
床仕様
空調 有り
駐車場
特徴・魅力 2沿線以上利用可
事務所内装の備考
ビル設備の備考 SECOMあり/2011年大規模改修/2016年エントランス、エレベーター改修済み/屋上喫煙スペース/時間貸しの貸会議室あり
担当者コメント 行成ビル 4階 E1号室は、大阪メトロ四つ橋線「四ツ橋」から徒歩2分のコンパクトオフィス・貸事務所です。 駅から徒歩2分と非常に近く、通勤や来客に便利な立地です。 5.62坪のコンパクトな室内で、設備としてエアコンやトイレ、エレベーターを完備しています。 セコム導入済みで、貸会議室や屋上の喫煙スペースも利用可能です。

お問い合わせいただいた後は、
経験豊富なスタッフが全力でご支援いたします!

お電話でのお問い合わせ

0120-66-7102

受付時間 10:00~18:00(土日祝日を除く)

物件については[物件No.12603-0498]とお伝えください。

メールフォームでのお問い合わせ

ログインして問い合わせる

ビルやお部屋の雰囲気

外観

内観・その他

周辺環境

  • 【駅】四ツ橋駅  

  • 【駅】心斎橋駅  

  • 【駅】心斎橋駅  

  • 【駅】本町駅  

  • 【駅】本町駅  

  • 【コンビニ】周辺のコンビニ  

  • 【コンビニ】周辺のコンビニ  

  • 【駅】長堀橋駅  

マップで見る周辺の類似物件

「人型アイコン」を地図上にドラッグすることで『Google ストリートビュー』に切り替わります。

※地図上の「対象地」は実際の場所ではない場合がございます。詳しくはお問い合わせください。

お問い合わせフォームはこちら

お問い合わせいただいた後は、
経験豊富なスタッフが全力でご支援いたします!

お電話でのお問い合わせ

0120-66-7102

受付時間 10:00~18:00(土日祝日を除く)

物件については[物件No.12603-0498]とお伝えください。

メールフォームでのお問い合わせ

ログインして問い合わせる
この物件をご覧頂くには、会員登録(無料)が必要です。【無料会員登録】
No.{{ index + 1 }}
営業おすすめ NEW

非公開 掲載終了 商談中 物件写真
{{ estate.price_pending_type_name }} 価格未定

お探しのエリアで今注目の物件

この物件をご覧頂くには、会員登録(無料)が必要です。【無料会員登録】
No.{{ index + 1 }}
営業おすすめ NEW

非公開 掲載終了 商談中 物件写真
{{ estate.price_pending_type_name }} 価格未定

近隣のよく似た物件リスト

この物件をご覧頂くには、会員登録(無料)が必要です。【無料会員登録】
No.{{ index + 1 }}
営業おすすめ NEW

非公開 掲載終了 商談中 物件写真
{{ estate.price_pending_type_name }} 価格未定

この物件と同じ特徴から探す

近隣の路線・駅から物件を探す

大阪メトロ四つ橋線 / 西梅田 / 肥後橋 / 本町

近隣のエリアから物件を探す

大阪市中央区 / 大阪市浪速区 / 大阪市福島区 / 大阪市大正区 / 大阪市天王寺区

近畿エリアエリアから物件を探す

大阪府 / 兵庫県 / 京都府