ちいきぼオフィス賃貸事務所・賃貸オフィス一覧東京都の賃貸事務所・賃貸オフィス一覧渋谷区の賃貸事務所・賃貸オフィス一覧オークハウス

物件No.12603-0371

オークハウス 4階 401 (34.20坪)

最終更新日:2026年3月18日

  • 賃料
    513,000 円(税抜)
  • 東京都 渋谷区 上原3丁目 6-6 地図で確認する
  • 代々木上原駅(小田急小田原線) 徒歩2分代々木上原駅(東京メトロ千代田線) 徒歩2分、東北沢駅(小田急小田原線) 徒歩9分、代々木八幡駅(小田急小田原線) 徒歩13分、代々木公園駅(東京メトロ千代田線) 徒歩15分
  • 6階建(1979年6月(築46年))
  • 2026年6月上旬より入居可能

この物件の特徴・魅力

  • 駅徒歩5分以内
  • 個別空調
  • エレベーターあり
  • コスパ重視
  • 30坪台オフィス
  • 16~20人向けオフィス

担当者コメント

担当者

オークハウス 4階 401は、小田急小田原線「代々木上原」から徒歩2分の小規模オフィス・貸事務所です。駅から近く、通勤や来客時の利便性に優れた立地が魅力です。室内は天井高2,560mmと開放感があり、個別空調やエレベーター、トイレなど設備も整っています。30坪台の程よい広さで、レイアウトもしやすい物件です。

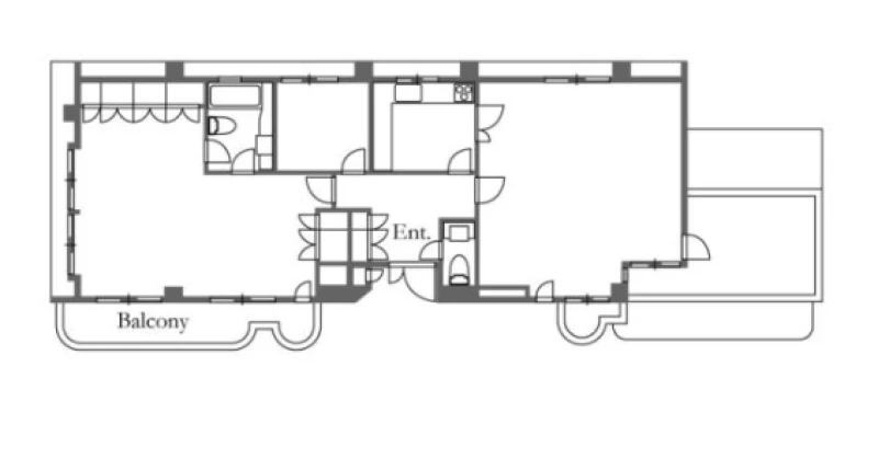
平面図

地図

画像をクリックすると上部の画像が切り替わります

お問い合わせいただいた後は、
経験豊富なスタッフが全力でご支援いたします!

お電話でのお問い合わせ

0120-66-7102

受付時間 10:00~18:00(土日祝日を除く)

物件については[物件No.12603-0371]とお伝えください。

メールフォームでのお問い合わせ

ログインして問い合わせる

オークハウス 4階 401 (34.20坪) の基本情報

物件No 12603-0371
建物名 オークハウス 4階 401 (34.20坪)
所在地
東京都渋谷区上原3丁目6-6  地図を見る 渋谷区で他の物件を探す
募集階層/階建 地上4階 / 6階建
坪数(平米) 34.20 坪(113.05 ㎡)
築年月(竣工) 1979年6月(築46年)
耐震
構造 鉄筋コンクリート(RC)
最寄駅
用途 貸事務所・オフィス
最終更新日 2026年3月18日

契約条件

※表示価格はすべて税抜表示です
賃料
513,000 円(税抜)
坪単価 14,999円/坪
共益費/管理費等 無し
保証金/敷金 3ヶ月
保証金償却 無し
礼金 1ヶ月
更新料 確認中
更新事務手数料 確認中
仲介手数料 確認中
造作価格
その他費用
建物賃貸借区分 普通借家契約
契約期間 2年
指定保証会社必須 要加入
引渡時期 2026年6月上旬より入居可能
引渡状態
諸条件・相談 事務所可

設備詳細・その他

設備 エレベーター、エアコン、トイレ、オートロック
エレベーター 有り
トイレ 有り
床仕様 タイルカーペット
空調 個別空調
駐車場 無 
特徴・魅力 2沿線以上利用可
事務所内装の備考 天井高:2,560mm
ビル設備の備考
担当者コメント オークハウス 4階 401は、小田急小田原線「代々木上原」から徒歩2分の小規模オフィス・貸事務所です。駅から近く、通勤や来客時の利便性に優れた立地が魅力です。室内は天井高2,560mmと開放感があり、個別空調やエレベーター、トイレなど設備も整っています。30坪台の程よい広さで、レイアウトもしやすい物件です。

お問い合わせいただいた後は、
経験豊富なスタッフが全力でご支援いたします!

お電話でのお問い合わせ

0120-66-7102

受付時間 10:00~18:00(土日祝日を除く)

物件については[物件No.12603-0371]とお伝えください。

メールフォームでのお問い合わせ

ログインして問い合わせる

ビルやお部屋の雰囲気

外観

周辺環境

  • 【駅】代々木上原駅  

  • 【駅】代々木公園駅  

  • 【駅】幡ヶ谷駅(駅前)  

  • 【駅】幡ヶ谷駅(駅前)  

  • 【駅】幡ヶ谷駅(出入口)  

マップで見る周辺の類似物件

「人型アイコン」を地図上にドラッグすることで『Google ストリートビュー』に切り替わります。

※地図上の「対象地」は実際の場所ではない場合がございます。詳しくはお問い合わせください。

お問い合わせフォームはこちら

お問い合わせいただいた後は、
経験豊富なスタッフが全力でご支援いたします!

お電話でのお問い合わせ

0120-66-7102

受付時間 10:00~18:00(土日祝日を除く)

物件については[物件No.12603-0371]とお伝えください。

メールフォームでのお問い合わせ

ログインして問い合わせる
この物件をご覧頂くには、会員登録(無料)が必要です。【無料会員登録】
No.{{ index + 1 }}
営業おすすめ NEW

非公開 掲載終了 商談中 物件写真
{{ estate.price_pending_type_name }} 価格未定

お探しのエリアで今注目の物件

この物件をご覧頂くには、会員登録(無料)が必要です。【無料会員登録】
No.{{ index + 1 }}
営業おすすめ NEW

非公開 掲載終了 商談中 物件写真
{{ estate.price_pending_type_name }} 価格未定

近隣のよく似た物件リスト

この物件をご覧頂くには、会員登録(無料)が必要です。【無料会員登録】
No.{{ index + 1 }}
営業おすすめ NEW

非公開 掲載終了 商談中 物件写真
{{ estate.price_pending_type_name }} 価格未定

この物件と同じ特徴から探す

近隣の路線・駅から物件を探す

小田急小田原線 / 参宮橋 / 代々木八幡 / 東北沢 / 下北沢 / 世田谷代田

近隣のエリアから物件を探す

目黒区 / 新宿区 / 港区 / 世田谷区 / 千代田区

関東エリアエリアから物件を探す

東京都 / 神奈川県 / 埼玉県 / 千葉県