ちいきぼオフィス賃貸事務所・賃貸オフィス一覧東京都の賃貸事務所・賃貸オフィス一覧中央区の賃貸事務所・賃貸オフィス一覧小野商ビル

物件No.12603-0304

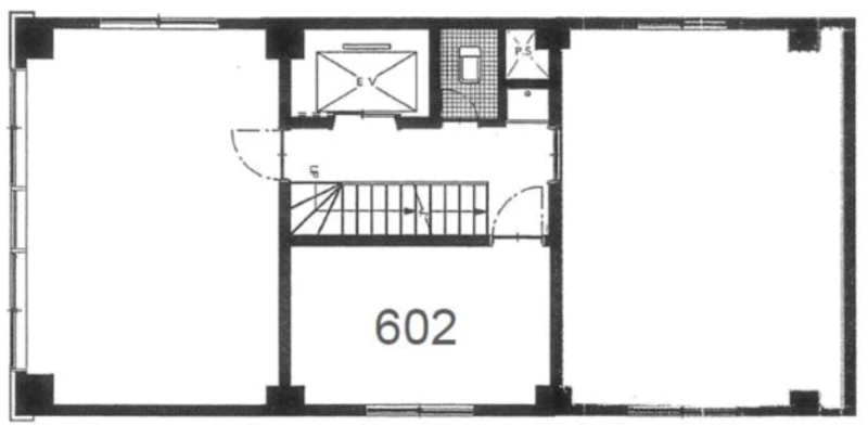
小野商ビル 6階 602 (4.00坪)

最終更新日:2026年3月19日

  • 賃料
    100,000 円(税抜)
  • 東京都 中央区 銀座8丁目 12-6 地図で確認する
  • 新橋駅(JR山手線) 徒歩4分新橋駅(JR東海道本線) 徒歩4分、銀座駅(東京メトロ銀座線) 徒歩5分、銀座駅(東京メトロ丸ノ内線) 徒歩5分、銀座駅(東京メトロ日比谷線) 徒歩5分
  • 8階建(地下1階建)(1961年10月(築64年))
  • 2026年4月上旬より入居可能

この物件の特徴・魅力

  • 24時間利用可能
  • 機械警備
  • 駅徒歩5分以内
  • 個別空調
  • 写真が豊富
  • エレベーターあり
  • 3~5人向けオフィス

担当者コメント

担当者

小野商ビル 6階 602は、JR山手線「新橋」から徒歩4分のコンパクトオフィス・貸事務所です。
銀座8丁目の好立地にあり、4坪というサイズ感は創業期のスタートアップや個人事業主の方に最適です。室内はタイルカーペット仕様です。オートロック時間外もカードキーで入退室が可能なため、セキュリティ面も安心です。トイレや個別空調、エレベーター(※7階まで)を完備しており快適にご利用いただけます。

平面図

地図

お問い合わせいただいた後は、
経験豊富なスタッフが全力でご支援いたします!

お電話でのお問い合わせ

0120-66-7102

受付時間 10:00~18:00(土日祝日を除く)

物件については[物件No.12603-0304]とお伝えください。

メールフォームでのお問い合わせ

ログインして問い合わせる

小野商ビル 6階 602 (4.00坪) の基本情報

物件No 12603-0304
建物名 小野商ビル 6階 602 (4.00坪)
所在地
東京都中央区銀座8丁目12-6  地図を見る 中央区で他の物件を探す
募集階層/階建 地上6階 / 8階建(地下1階建)
坪数(平米) 4.00 坪(13.22 ㎡)
築年月(竣工) 1961年10月(築64年)
耐震
構造 鉄筋コンクリート(RC)
最寄駅
用途 貸事務所・オフィス
最終更新日 2026年3月19日

契約条件

※表示価格はすべて税抜表示です
賃料
100,000 円(税抜)
坪単価 25,000円/坪
共益費/管理費等 20,000円
保証金/敷金 600,000円
保証金償却 1ヶ月
礼金 1ヶ月
更新料 1ヶ月
再契約
更新事務手数料 確認中
仲介手数料 確認中
造作価格
その他費用
建物賃貸借区分 定期借家契約
契約期間 2年
指定保証会社必須 要加入
引渡時期 2026年4月上旬より入居可能
引渡状態
諸条件・相談 事務所可

設備詳細・その他

設備 エレベーター、エアコン、トイレ
エレベーター 有り
トイレ 共用部
床仕様 タイルカーペット
空調 個別空調
駐車場 無 
特徴・魅力 2沿線以上利用可
事務所内装の備考
ビル設備の備考 エレベーターは7階まで/エントランス8:00~19:00(時間外はカードキーにて入退室可能)
担当者コメント 小野商ビル 6階 602は、JR山手線「新橋」から徒歩4分のコンパクトオフィス・貸事務所です。 銀座8丁目の好立地にあり、4坪というサイズ感は創業期のスタートアップや個人事業主の方に最適です。室内はタイルカーペット仕様です。オートロック時間外もカードキーで入退室が可能なため、セキュリティ面も安心です。トイレや個別空調、エレベーター(※7階まで)を完備しており快適にご利用いただけます。

お問い合わせいただいた後は、
経験豊富なスタッフが全力でご支援いたします!

お電話でのお問い合わせ

0120-66-7102

受付時間 10:00~18:00(土日祝日を除く)

物件については[物件No.12603-0304]とお伝えください。

メールフォームでのお問い合わせ

ログインして問い合わせる

ビルやお部屋の雰囲気

外観

内観・その他

周辺環境

  • 【駅】新橋駅  

  • 【駅】東京メトロ銀座駅  

  • 【駅】築地市場駅  

  • 【駅】東銀座駅  

  • 【駅】銀座駅  

  • 【駅】汐留駅  

  • 【駅】都営三田線 内幸町 A2出口  

マップで見る周辺の類似物件

「人型アイコン」を地図上にドラッグすることで『Google ストリートビュー』に切り替わります。

※地図上の「対象地」は実際の場所ではない場合がございます。詳しくはお問い合わせください。

お問い合わせフォームはこちら

お問い合わせいただいた後は、
経験豊富なスタッフが全力でご支援いたします!

お電話でのお問い合わせ

0120-66-7102

受付時間 10:00~18:00(土日祝日を除く)

物件については[物件No.12603-0304]とお伝えください。

メールフォームでのお問い合わせ

ログインして問い合わせる
この物件をご覧頂くには、会員登録(無料)が必要です。【無料会員登録】
No.{{ index + 1 }}
営業おすすめ NEW

非公開 掲載終了 商談中 物件写真
{{ estate.price_pending_type_name }} 価格未定

お探しのエリアで今注目の物件

この物件をご覧頂くには、会員登録(無料)が必要です。【無料会員登録】
No.{{ index + 1 }}
営業おすすめ NEW

非公開 掲載終了 商談中 物件写真
{{ estate.price_pending_type_name }} 価格未定

近隣のよく似た物件リスト

この物件をご覧頂くには、会員登録(無料)が必要です。【無料会員登録】
No.{{ index + 1 }}
営業おすすめ NEW

非公開 掲載終了 商談中 物件写真
{{ estate.price_pending_type_name }} 価格未定

この物件と同じ特徴から探す

近隣の路線・駅から物件を探す

JR山手線 / 東京 / 有楽町 / 浜松町 / 田町 / 高輪ゲートウェイ

近隣のエリアから物件を探す

港区 / 千代田区 / 江東区 / 文京区 / 台東区

関東エリアエリアから物件を探す

東京都 / 神奈川県 / 埼玉県 / 千葉県