ちいきぼオフィス賃貸事務所・賃貸オフィス一覧東京都の賃貸事務所・賃貸オフィス一覧中央区の賃貸事務所・賃貸オフィス一覧東宣ビル

物件No.12603-0303

東宣ビル 5階 (25.00坪)

最終更新日:2026年3月13日

  • 賃料
    300,000 円(税抜)
  • 東京都 中央区 京橋3丁目 7-10 地図で確認する
  • 宝町駅(都営浅草線) 徒歩1分京橋駅(東京メトロ銀座線) 徒歩3分、東京駅(JR山手線) 徒歩8分、東京駅(JR東海道本線) 徒歩8分、東京駅(東京メトロ丸ノ内線) 徒歩8分
  • 6階建(地下1階建)(1962年5月(築63年))
  • 2026年6月上旬より入居可能

この物件の特徴・魅力

  • 機械警備
  • 有人警備
  • 駅徒歩5分以内
  • 個別空調
  • OAフロア
  • 写真が豊富
  • エレベーターあり
  • コスパ重視
  • 20坪台オフィス
  • 11~15人向けオフィス

担当者コメント

担当者

東宣ビル 5階は、都営浅草線「宝町」から徒歩1分の小規模オフィス・貸事務所です。
天井高2,680mmの開放的な室内には、タイルカーペットが敷設されています。夜間オートロック完備でセキュリティ面も安心。個別空調やエレベーターも完備しています。5階のトイレは女性専用として利用できるため、女性スタッフの多い企業様にもおすすめです。

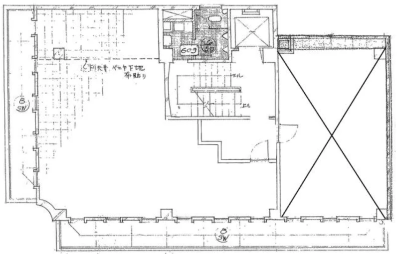
平面図

地図

お問い合わせいただいた後は、
経験豊富なスタッフが全力でご支援いたします!

お電話でのお問い合わせ

0120-66-7102

受付時間 10:00~18:00(土日祝日を除く)

物件については[物件No.12603-0303]とお伝えください。

メールフォームでのお問い合わせ

ログインして問い合わせる

東宣ビル 5階 (25.00坪) の基本情報

物件No 12603-0303
建物名 東宣ビル 5階 (25.00坪)
所在地
東京都中央区京橋3丁目7-10  地図を見る 中央区で他の物件を探す
募集階層/階建 地上5階 / 6階建(地下1階建)
坪数(平米) 25.00 坪(82.64 ㎡)
築年月(竣工) 1962年5月(築63年)
耐震
構造 鉄筋コンクリート(RC)
最寄駅
用途 貸事務所・オフィス
最終更新日 2026年3月13日

契約条件

※表示価格はすべて税抜表示です
賃料
300,000 円(税抜)
坪単価 12,000円/坪
共益費/管理費等 92,500円
保証金/敷金 6ヶ月
保証金償却 2ヶ月
礼金 無し
更新料 1ヶ月
更新
更新事務手数料 確認中
仲介手数料 確認中
造作価格
その他費用 エレベーター保守点検費:10000円/月
水廻り各種消耗品料:1000円/月
建物賃貸借区分 普通借家契約
契約期間 2年
指定保証会社必須 要加入
引渡時期 2026年6月上旬より入居可能
引渡状態
諸条件・相談 事務所可

設備詳細・その他

設備 エレベーター、エアコン、トイレ
エレベーター 有り
トイレ 共用部
床仕様 OAフロア
空調 個別空調
駐車場 無 
特徴・魅力 2沿線以上利用可
事務所内装の備考 タイルカーペット/天井高:2,680mm/光ケーブル:MDF迄
ビル設備の備考 夜間オートロック/室外男女共用トイレ(2~3階、4~5階共用部は女性専用)/エレベーターリニューアル予定/1階防犯カメラあり
担当者コメント 東宣ビル 5階は、都営浅草線「宝町」から徒歩1分の小規模オフィス・貸事務所です。 天井高2,680mmの開放的な室内には、タイルカーペットが敷設されています。夜間オートロック完備でセキュリティ面も安心。個別空調やエレベーターも完備しています。5階のトイレは女性専用として利用できるため、女性スタッフの多い企業様にもおすすめです。

お問い合わせいただいた後は、
経験豊富なスタッフが全力でご支援いたします!

お電話でのお問い合わせ

0120-66-7102

受付時間 10:00~18:00(土日祝日を除く)

物件については[物件No.12603-0303]とお伝えください。

メールフォームでのお問い合わせ

ログインして問い合わせる

ビルやお部屋の雰囲気

外観

内観・その他

周辺環境

  • 【駅】京橋駅(6番出口付近)  

  • 【駅】銀座一丁目駅  

  • 【駅】八丁堀駅  

  • 【駅】八丁堀駅(出口付近)  

  • 【駅】八丁堀駅  

  • 【駅】八丁堀駅  

  • 【駅】八丁堀駅  

  • 【駅】八丁堀駅  

  • 【コンビニ】周辺のコンビニ  

  • 【銀行】周辺の銀行  

マップで見る周辺の類似物件

「人型アイコン」を地図上にドラッグすることで『Google ストリートビュー』に切り替わります。

※地図上の「対象地」は実際の場所ではない場合がございます。詳しくはお問い合わせください。

お問い合わせフォームはこちら

お問い合わせいただいた後は、
経験豊富なスタッフが全力でご支援いたします!

お電話でのお問い合わせ

0120-66-7102

受付時間 10:00~18:00(土日祝日を除く)

物件については[物件No.12603-0303]とお伝えください。

メールフォームでのお問い合わせ

ログインして問い合わせる
この物件をご覧頂くには、会員登録(無料)が必要です。【無料会員登録】
No.{{ index + 1 }}
営業おすすめ NEW

非公開 掲載終了 商談中 物件写真
{{ estate.price_pending_type_name }} 価格未定

お探しのエリアで今注目の物件

この物件をご覧頂くには、会員登録(無料)が必要です。【無料会員登録】
No.{{ index + 1 }}
営業おすすめ NEW

非公開 掲載終了 商談中 物件写真
{{ estate.price_pending_type_name }} 価格未定

近隣のよく似た物件リスト

この物件をご覧頂くには、会員登録(無料)が必要です。【無料会員登録】
No.{{ index + 1 }}
営業おすすめ NEW

非公開 掲載終了 商談中 物件写真
{{ estate.price_pending_type_name }} 価格未定

この物件と同じ特徴から探す

近隣の路線・駅から物件を探す

都営浅草線 / 人形町 / 日本橋 / 東銀座 / 新橋 / 大門

近隣のエリアから物件を探す

港区 / 千代田区 / 江東区 / 文京区 / 台東区

関東エリアエリアから物件を探す

東京都 / 神奈川県 / 埼玉県 / 千葉県