ちいきぼオフィス賃貸事務所・賃貸オフィス一覧東京都の賃貸事務所・賃貸オフィス一覧北区の賃貸事務所・賃貸オフィス一覧銀座プロセスビル

物件No.12603-0279

銀座プロセスビル 2階 (44.17坪)

最終更新日:2026年4月2日

  • 賃料
    800,000 円(税抜)
  • 東京都 北区 中里2丁目 19-8 地図で確認する
  • 駒込駅(JR山手線) 徒歩5分駒込駅(東京メトロ南北線) 徒歩5分
  • 1991年2月(築35年)
  • 引渡時期はお問い合わせください

この物件の特徴・魅力

  • 営業おすすめ
  • 駅徒歩5分以内
  • 写真が豊富
  • VR内見あり
  • エレベーターあり
  • スケルトン
  • 40坪台オフィス
  • 21~30人向けオフィス

担当者コメント

担当者

銀座プロセスビル 2階は、JR山手線「駒込」駅から徒歩5分の中規模オフィス・貸事務所です。約44坪のゆとりある広さを持ち、事務所のほか店舗としての利用も相談可能です。エレベーターや業務用エアコン、トイレなどの基本設備も完備されています。山手線沿線という交通利便性を備えつつ、保証金3ヶ月・礼金1ヶ月と都心近接エリアの中では初期費用が抑えめな点も魅力です。

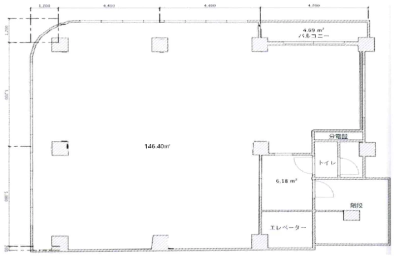
平面図

地図

お問い合わせいただいた後は、
経験豊富なスタッフが全力でご支援いたします!

お電話でのお問い合わせ

0120-66-7102

受付時間 10:00~18:00(土日祝日を除く)

物件については[物件No.12603-0279]とお伝えください。

メールフォームでのお問い合わせ

ログインして問い合わせる

銀座プロセスビル 2階 (44.17坪) の基本情報

物件No 12603-0279
建物名 銀座プロセスビル 2階 (44.17坪)
所在地
東京都北区中里2丁目19-8  地図を見る 北区で他の物件を探す
募集階層/階建 地上2階
坪数(平米) 44.17 坪(146.00 ㎡)
築年月(竣工) 1991年2月(築35年)
耐震
構造 鉄筋コンクリート(RC)
最寄駅
用途 貸事務所・オフィス
店舗としてのご利用も可能です。詳細はお問い合わせください。
最終更新日 2026年4月2日

契約条件

※表示価格はすべて税抜表示です
賃料
800,000 円(税抜)
坪単価 18,111円/坪
共益費/管理費等 確認中
保証金/敷金 3ヶ月
保証金償却 確認中
礼金 1ヶ月
更新料 1ヶ月
更新
新賃料
更新事務手数料 0.25ヶ月
新賃料の0.25ヵ月分
仲介手数料 確認中
造作価格
その他費用 火災保険加入必須/電気・水道代別/短期解約違約金有
建物賃貸借区分 普通借家契約
契約期間 2年
指定保証会社必須 要加入 (株式会社セーフティーイノベーション)※月額固定費の1ヶ月
引渡時期 お問い合わせください
引渡状態 スケルトン
諸条件・相談 事務所可

設備詳細・その他

設備 エレベーター、トイレ、エアコン
エレベーター 有り
トイレ 有り
床仕様
空調 有り
駐車場
特徴・魅力 2沿線以上利用可
事務所内装の備考
ビル設備の備考 駐車場:別契約/業務用エアコン
担当者コメント 銀座プロセスビル 2階は、JR山手線「駒込」駅から徒歩5分の中規模オフィス・貸事務所です。約44坪のゆとりある広さを持ち、事務所のほか店舗としての利用も相談可能です。エレベーターや業務用エアコン、トイレなどの基本設備も完備されています。山手線沿線という交通利便性を備えつつ、保証金3ヶ月・礼金1ヶ月と都心近接エリアの中では初期費用が抑えめな点も魅力です。

動画/VR

お問い合わせいただいた後は、
経験豊富なスタッフが全力でご支援いたします!

お電話でのお問い合わせ

0120-66-7102

受付時間 10:00~18:00(土日祝日を除く)

物件については[物件No.12603-0279]とお伝えください。

メールフォームでのお問い合わせ

ログインして問い合わせる

ビルやお部屋の雰囲気

外観

  • ポスト

  • トイレ

  • 洗面台

  • 男女共用トイレ

内観・その他

周辺環境

  • 【駅】駒込駅  

  • 【駅】駒込駅  

マップで見る周辺の類似物件

「人型アイコン」を地図上にドラッグすることで『Google ストリートビュー』に切り替わります。

※地図上の「対象地」は実際の場所ではない場合がございます。詳しくはお問い合わせください。

お問い合わせフォームはこちら

お問い合わせいただいた後は、
経験豊富なスタッフが全力でご支援いたします!

お電話でのお問い合わせ

0120-66-7102

受付時間 10:00~18:00(土日祝日を除く)

物件については[物件No.12603-0279]とお伝えください。

メールフォームでのお問い合わせ

ログインして問い合わせる
この物件をご覧頂くには、会員登録(無料)が必要です。【無料会員登録】
No.{{ index + 1 }}
営業おすすめ NEW

非公開 掲載終了 商談中 物件写真
{{ estate.price_pending_type_name }} 価格未定

お探しのエリアで今注目の物件

この物件をご覧頂くには、会員登録(無料)が必要です。【無料会員登録】
No.{{ index + 1 }}
営業おすすめ NEW

非公開 掲載終了 商談中 物件写真
{{ estate.price_pending_type_name }} 価格未定

近隣のよく似た物件リスト

この物件をご覧頂くには、会員登録(無料)が必要です。【無料会員登録】
No.{{ index + 1 }}
営業おすすめ NEW

非公開 掲載終了 商談中 物件写真
{{ estate.price_pending_type_name }} 価格未定

この物件と同じ特徴から探す

近隣の路線・駅から物件を探す

JR山手線 / 大塚 / 巣鴨 / 田端 / 西日暮里 / 日暮里

近隣のエリアから物件を探す

板橋区 / 豊島区 / 荒川区 / 文京区 / 台東区

関東エリアエリアから物件を探す

東京都 / 神奈川県 / 埼玉県 / 千葉県