ちいきぼオフィス賃貸事務所・賃貸オフィス一覧東京都の賃貸事務所・賃貸オフィス一覧新宿区の賃貸事務所・賃貸オフィス一覧エルツ6

物件No.12603-0208

エルツ6 2階 (47.50坪)

最終更新日:2026年3月24日

  • 賃料
    783,750 円(税抜)
  • 東京都 新宿区 新宿6丁目 29-6 地図で確認する
  • 東新宿駅(都営大江戸線) 徒歩1分東新宿駅(東京メトロ副都心線) 徒歩1分、新宿三丁目駅(東京メトロ丸ノ内線) 徒歩6分、新宿三丁目駅(都営新宿線) 徒歩6分、新宿駅(JR山手線) 徒歩10分
  • 10階建(地下1階建)(新耐震基準/1994年7月(築31年))
  • 2026年5月上旬より入居可能

この物件の特徴・魅力

  • 機械警備
  • バルコニー有
  • 駅徒歩5分以内
  • 個別空調
  • OAフロア
  • 写真が豊富
  • 男女別トイレ
  • 駐車場あり
  • エレベーターあり
  • 40坪台オフィス
  • 21~30人向けオフィス

担当者コメント

担当者

エルツ6(2階)は、都営大江戸線「東新宿」から徒歩1分の中規模オフィス・貸事務所です。約47坪のゆとりある室内は、窓面が多く明るく開放的なワークスペースを確保できます。駅から徒歩1分という希少な立地で、通勤や来客時の利便性も抜群です。新耐震基準に適合した10階建てビルで、設備面でも安心してご利用いただけます。トイレや個別空調、エレベーターを完備しており快適にご利用いただけます。

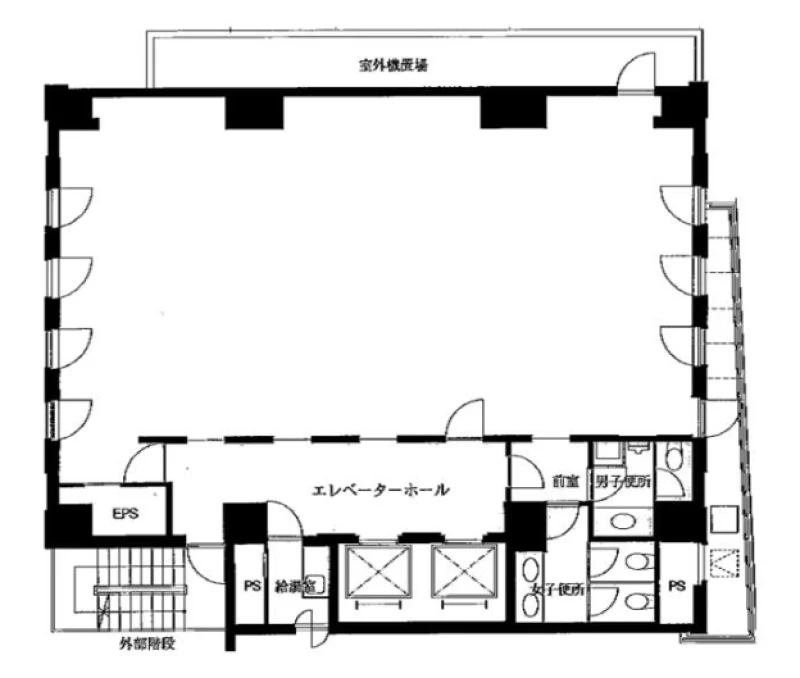
平面図

地図

お問い合わせいただいた後は、
経験豊富なスタッフが全力でご支援いたします!

お電話でのお問い合わせ

0120-66-7102

受付時間 10:00~18:00(土日祝日を除く)

物件については[物件No.12603-0208]とお伝えください。

メールフォームでのお問い合わせ

ログインして問い合わせる

エルツ6 2階 (47.50坪) の基本情報

物件No 12603-0208
建物名 エルツ6 2階 (47.50坪)
所在地
東京都新宿区新宿6丁目29-6  地図を見る 新宿区で他の物件を探す
募集階層/階建 地上2階 / 10階建(地下1階建)
坪数(平米) 47.50 坪(157.02 ㎡)
築年月(竣工) 1994年7月(築31年)
耐震 新耐震基準
構造 鉄骨鉄筋コンクリート(SRC)
最寄駅
用途 貸事務所・オフィス
最終更新日 2026年3月24日

契約条件

※表示価格はすべて税抜表示です
賃料
783,750 円(税抜)
坪単価 16,500円/坪
共益費/管理費等 142,500円
保証金/敷金 10ヶ月
保証金償却 途中解約の場合は10%
礼金 確認中
更新料 1ヶ月
更新
更新事務手数料 確認中
仲介手数料 1ヶ月
造作価格
その他費用
建物賃貸借区分 普通借家契約
契約期間 2年
指定保証会社必須 要加入
引渡時期 2026年5月上旬より入居可能
引渡状態
諸条件・相談 事務所可

設備詳細・その他

設備 エレベーター、トイレ、給湯、エアコン
エレベーター 有り
トイレ 室内、男女別
床仕様 OAフロア
空調 個別空調
駐車場 有 
特徴・魅力 2沿線以上利用可
事務所内装の備考
ビル設備の備考
担当者コメント エルツ6(2階)は、都営大江戸線「東新宿」から徒歩1分の中規模オフィス・貸事務所です。約47坪のゆとりある室内は、窓面が多く明るく開放的なワークスペースを確保できます。駅から徒歩1分という希少な立地で、通勤や来客時の利便性も抜群です。新耐震基準に適合した10階建てビルで、設備面でも安心してご利用いただけます。トイレや個別空調、エレベーターを完備しており快適にご利用いただけます。

お問い合わせいただいた後は、
経験豊富なスタッフが全力でご支援いたします!

お電話でのお問い合わせ

0120-66-7102

受付時間 10:00~18:00(土日祝日を除く)

物件については[物件No.12603-0208]とお伝えください。

メールフォームでのお問い合わせ

ログインして問い合わせる

ビルやお部屋の雰囲気

外観

内観・その他

周辺環境

  • 【駅】東新宿駅  

  • 【駅】新宿三丁目駅  

  • 【駅】新宿三丁目駅  

マップで見る周辺の類似物件

「人型アイコン」を地図上にドラッグすることで『Google ストリートビュー』に切り替わります。

※地図上の「対象地」は実際の場所ではない場合がございます。詳しくはお問い合わせください。

お問い合わせフォームはこちら

お問い合わせいただいた後は、
経験豊富なスタッフが全力でご支援いたします!

お電話でのお問い合わせ

0120-66-7102

受付時間 10:00~18:00(土日祝日を除く)

物件については[物件No.12603-0208]とお伝えください。

メールフォームでのお問い合わせ

ログインして問い合わせる
この物件をご覧頂くには、会員登録(無料)が必要です。【無料会員登録】
No.{{ index + 1 }}
営業おすすめ NEW

非公開 掲載終了 商談中 物件写真
{{ estate.price_pending_type_name }} 価格未定

お探しのエリアで今注目の物件

この物件をご覧頂くには、会員登録(無料)が必要です。【無料会員登録】
No.{{ index + 1 }}
営業おすすめ NEW

非公開 掲載終了 商談中 物件写真
{{ estate.price_pending_type_name }} 価格未定

近隣のよく似た物件リスト

この物件をご覧頂くには、会員登録(無料)が必要です。【無料会員登録】
No.{{ index + 1 }}
営業おすすめ NEW

非公開 掲載終了 商談中 物件写真
{{ estate.price_pending_type_name }} 価格未定

この物件と同じ特徴から探す

近隣の路線・駅から物件を探す

都営大江戸線 / 都庁前 / 新宿西口 / 若松河田 / 牛込柳町 / 牛込神楽坂

近隣のエリアから物件を探す

渋谷区 / 豊島区 / 中野区 / 千代田区 / 文京区

関東エリアエリアから物件を探す

東京都 / 神奈川県 / 埼玉県 / 千葉県