ちいきぼオフィス賃貸事務所・賃貸オフィス一覧東京都の賃貸事務所・賃貸オフィス一覧千代田区の賃貸事務所・賃貸オフィス一覧トライエム大手町ビル

物件No.12602-0499

トライエム大手町ビル 9階 (20.50坪)

最終更新日:2026年2月27日

  • 賃料
    280,000 円(税抜)
  • 東京都 千代田区 内神田1丁目 5-4 地図で確認する
  • 大手町駅(東京メトロ半蔵門線) 徒歩4分大手町駅(東京メトロ丸ノ内線) 徒歩4分、小川町駅(都営新宿線) 徒歩7分、神田駅(JR山手線) 徒歩6分、神田駅(JR京浜東北・根岸線) 徒歩6分
  • 10階建(地下1階建)(1976年1月(築50年))
  • 即入居可能

この物件の特徴・魅力

  • 駅徒歩5分以内
  • 即入居可能
  • 個別空調
  • 写真が豊富
  • エレベーターあり
  • コスパ重視
  • 20坪台オフィス
  • 11~15人向けオフィス

担当者コメント

担当者

トライエム大手町ビル 9階は、東京メトロ半蔵門線「大手町」から徒歩4分の小規模オフィス・貸事務所です。
大手町エリアまで徒歩圏内の好立地で、通勤や営業活動の利便性に優れています。個別空調やエレベーター、トイレなど、快適なビジネス環境を支える設備も整っています。20.5坪の使いやすい広さで、スタートアップやベンチャー企業にも最適です。

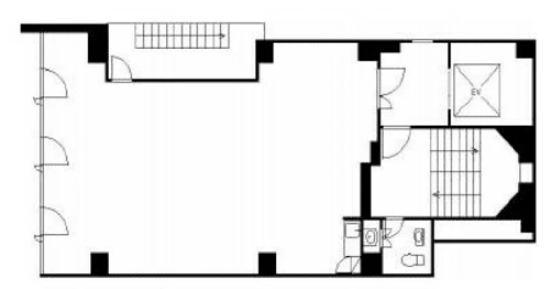
平面図

地図

お問い合わせいただいた後は、
経験豊富なスタッフが全力でご支援いたします!

お電話でのお問い合わせ

0120-66-7102

受付時間 10:00~18:00(土日祝日を除く)

物件については[物件No.12602-0499]とお伝えください。

メールフォームでのお問い合わせ

ログインして問い合わせる

トライエム大手町ビル 9階 (20.50坪) の基本情報

物件No 12602-0499
建物名 トライエム大手町ビル 9階 (20.50坪)
所在地
東京都千代田区内神田1丁目5-4  地図を見る 千代田区で他の物件を探す
募集階層/階建 地上9階 / 10階建(地下1階建)
坪数(平米) 20.50 坪(67.76 ㎡)
築年月(竣工) 1976年1月(築50年)
耐震
構造 鉄骨鉄筋コンクリート(SRC)
最寄駅
用途 貸事務所・オフィス
最終更新日 2026年2月27日

契約条件

※表示価格はすべて税抜表示です
賃料
280,000 円(税抜)
坪単価 13,658円/坪
共益費/管理費等 40,000円
保証金/敷金 6ヶ月
保証金償却 20%
礼金 確認中
更新料 1ヶ月
更新
新賃料
更新事務手数料 確認中
仲介手数料 確認中
造作価格
その他費用
建物賃貸借区分
契約期間 2年
指定保証会社必須 要加入
引渡時期 即入居可能
引渡状態
諸条件・相談 事務所可

設備詳細・その他

設備 エレベーター、エアコン、トイレ
エレベーター 有り
トイレ 有り
床仕様
空調 個別空調
駐車場
特徴・魅力 2沿線以上利用可
事務所内装の備考
ビル設備の備考 光ファイバー
担当者コメント トライエム大手町ビル 9階は、東京メトロ半蔵門線「大手町」から徒歩4分の小規模オフィス・貸事務所です。 大手町エリアまで徒歩圏内の好立地で、通勤や営業活動の利便性に優れています。個別空調やエレベーター、トイレなど、快適なビジネス環境を支える設備も整っています。20.5坪の使いやすい広さで、スタートアップやベンチャー企業にも最適です。

お問い合わせいただいた後は、
経験豊富なスタッフが全力でご支援いたします!

お電話でのお問い合わせ

0120-66-7102

受付時間 10:00~18:00(土日祝日を除く)

物件については[物件No.12602-0499]とお伝えください。

メールフォームでのお問い合わせ

ログインして問い合わせる

ビルやお部屋の雰囲気

外観

内観・その他

  • 建物周辺

  • 建物周辺

  • 建物周辺

周辺環境

  • 【駅】神田駅  

  • 【周辺の街並み】神田駅周辺  

  • 【駅】神田駅  

  • 【駅】東京メトロ銀座線 神田駅  

  • 【駅】大手町駅  

  • 【駅】神田駅  

  • 【駅】小川町駅  

  • 【駅】大手町駅  

マップで見る周辺の類似物件

「人型アイコン」を地図上にドラッグすることで『Google ストリートビュー』に切り替わります。

※地図上の「対象地」は実際の場所ではない場合がございます。詳しくはお問い合わせください。

お問い合わせフォームはこちら

お問い合わせいただいた後は、
経験豊富なスタッフが全力でご支援いたします!

お電話でのお問い合わせ

0120-66-7102

受付時間 10:00~18:00(土日祝日を除く)

物件については[物件No.12602-0499]とお伝えください。

メールフォームでのお問い合わせ

ログインして問い合わせる
この物件をご覧頂くには、会員登録(無料)が必要です。【無料会員登録】
No.{{ index + 1 }}
営業おすすめ NEW

非公開 掲載終了 商談中 物件写真
{{ estate.price_pending_type_name }} 価格未定

お探しのエリアで今注目の物件

この物件をご覧頂くには、会員登録(無料)が必要です。【無料会員登録】
No.{{ index + 1 }}
営業おすすめ NEW

非公開 掲載終了 商談中 物件写真
{{ estate.price_pending_type_name }} 価格未定

近隣のよく似た物件リスト

この物件をご覧頂くには、会員登録(無料)が必要です。【無料会員登録】
No.{{ index + 1 }}
営業おすすめ NEW

非公開 掲載終了 商談中 物件写真
{{ estate.price_pending_type_name }} 価格未定

この物件と同じ特徴から探す

近隣の路線・駅から物件を探す

東京メトロ半蔵門線 / 九段下 / 神保町 / 三越前 / 水天宮前 / 錦糸町

近隣のエリアから物件を探す

文京区 / 中央区 / 台東区 / 港区 / 新宿区

関東エリアエリアから物件を探す

東京都 / 神奈川県 / 埼玉県 / 千葉県