ちいきぼオフィス賃貸事務所・賃貸オフィス一覧東京都の賃貸事務所・賃貸オフィス一覧渋谷区の賃貸事務所・賃貸オフィス一覧デコール代官山

物件No.12602-0424

デコール代官山 2階 (18.70坪)

最終更新日:2026年3月9日

  • 賃料
    465,000 円(税抜)
  • 東京都 渋谷区 鉢山町 4-5 地図で確認する
  • 渋谷駅(JR山手線) 徒歩9分代官山駅(東急東横線) 徒歩10分、渋谷駅(東急東横線) 徒歩9分、渋谷駅(東急田園都市線) 徒歩9分、渋谷駅(JR湘南新宿ライン(宇都宮〜逗子)) 徒歩9分
  • 2階建(地下1階建)(2024年6月(築1年))
  • 即入居可能

この物件の特徴・魅力

  • 即入居可能
  • 写真が豊富
  • 10坪台オフィス
  • 6~10人向けオフィス

担当者コメント

担当者

デコール代官山 2階は、JR山手線「渋谷」から徒歩9分のコンパクトオフィス・貸事務所です。2024年6月築の新築物件で、約18坪の開放的な空間が魅力。カウンター付きの内装やダブルロックキー、防犯カメラなど設備も充実しています。トイレやエアコンを完備しています。新しい環境で事業を始めたい方に最適です。

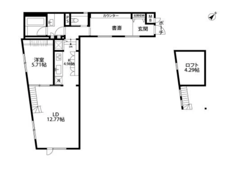
平面図

地図

お問い合わせいただいた後は、
経験豊富なスタッフが全力でご支援いたします!

お電話でのお問い合わせ

0120-66-7102

受付時間 10:00~18:00(土日祝日を除く)

物件については[物件No.12602-0424]とお伝えください。

メールフォームでのお問い合わせ

ログインして問い合わせる

デコール代官山 2階 (18.70坪) の基本情報

物件No 12602-0424
建物名 デコール代官山 2階 (18.70坪)
所在地
東京都渋谷区鉢山町4-5  地図を見る 渋谷区で他の物件を探す
募集階層/階建 地上2階 / 2階建(地下1階建)
坪数(平米) 18.70 坪(61.83 ㎡)
築年月(竣工) 2024年6月(築1年)
耐震
構造 鉄筋コンクリート(RC) 木・RC造
最寄駅
用途 貸事務所・オフィス
最終更新日 2026年3月9日

契約条件

※表示価格はすべて税抜表示です
賃料
465,000 円(税抜)
坪単価 24,866円/坪
共益費/管理費等 15,000円
保証金/敷金 2ヶ月
保証金償却 確認中
礼金 1ヶ月
更新料 1ヶ月
再契約
新賃料
更新事務手数料 確認中
仲介手数料 確認中
造作価格
その他費用 解約予告:書面にて1ヵ月前/家財保険:貸主負担/ライフサポート24:月額1,320円/短期違約金:1年未満の解約の場合1ヵ月分(賃料+管理費)
建物賃貸借区分 定期借家契約
契約期間 2年
指定保証会社必須 要加入
引渡時期 即入居可能
引渡状態
諸条件・相談 事務所可

設備詳細・その他

設備 宅配ボックス、エアコン、CATV、給湯、トイレ、追焚機能、バス・トイレ別、都市ガス、温水洗浄便座
エレベーター
トイレ 室内
床仕様
空調 有り
駐車場
特徴・魅力 2沿線以上利用可、24時間換気システム
事務所内装の備考 ダブルロックキー/カウンター付き/フローリング
ビル設備の備考 防犯カメラ
担当者コメント デコール代官山 2階は、JR山手線「渋谷」から徒歩9分のコンパクトオフィス・貸事務所です。2024年6月築の新築物件で、約18坪の開放的な空間が魅力。カウンター付きの内装やダブルロックキー、防犯カメラなど設備も充実しています。トイレやエアコンを完備しています。新しい環境で事業を始めたい方に最適です。

お問い合わせいただいた後は、
経験豊富なスタッフが全力でご支援いたします!

お電話でのお問い合わせ

0120-66-7102

受付時間 10:00~18:00(土日祝日を除く)

物件については[物件No.12602-0424]とお伝えください。

メールフォームでのお問い合わせ

ログインして問い合わせる

ビルやお部屋の雰囲気

外観

内観・その他

周辺環境

  • 【駅】渋谷駅  

マップで見る周辺の類似物件

「人型アイコン」を地図上にドラッグすることで『Google ストリートビュー』に切り替わります。

※地図上の「対象地」は実際の場所ではない場合がございます。詳しくはお問い合わせください。

お問い合わせフォームはこちら

お問い合わせいただいた後は、
経験豊富なスタッフが全力でご支援いたします!

お電話でのお問い合わせ

0120-66-7102

受付時間 10:00~18:00(土日祝日を除く)

物件については[物件No.12602-0424]とお伝えください。

メールフォームでのお問い合わせ

ログインして問い合わせる
この物件をご覧頂くには、会員登録(無料)が必要です。【無料会員登録】
No.{{ index + 1 }}
営業おすすめ NEW

非公開 掲載終了 商談中 物件写真
{{ estate.price_pending_type_name }} 価格未定

お探しのエリアで今注目の物件

この物件をご覧頂くには、会員登録(無料)が必要です。【無料会員登録】
No.{{ index + 1 }}
営業おすすめ NEW

非公開 掲載終了 商談中 物件写真
{{ estate.price_pending_type_name }} 価格未定

近隣のよく似た物件リスト

この物件をご覧頂くには、会員登録(無料)が必要です。【無料会員登録】
No.{{ index + 1 }}
営業おすすめ NEW

非公開 掲載終了 商談中 物件写真
{{ estate.price_pending_type_name }} 価格未定

この物件と同じ特徴から探す

近隣の路線・駅から物件を探す

JR山手線 / 目黒 / 恵比寿 / 原宿 / 代々木 / 新宿

近隣のエリアから物件を探す

目黒区 / 新宿区 / 港区 / 世田谷区 / 千代田区

関東エリアエリアから物件を探す

東京都 / 神奈川県 / 埼玉県 / 千葉県