ちいきぼオフィス賃貸事務所・賃貸オフィス一覧東京都の賃貸事務所・賃貸オフィス一覧渋谷区の賃貸事務所・賃貸オフィス一覧シャトレ代官山アネックス

物件No.12602-0126

シャトレ代官山アネックス 1階 101・104号室 (47.96坪)

最終更新日:2026年2月6日

  • 賃料
    850,000 円(税抜)
  • 東京都 渋谷区 代官山町 2-6 地図で確認する
  • 代官山駅(東急東横線) 徒歩6分渋谷駅(JR山手線) 徒歩10分
  • 5階建(新耐震基準/1985年3月(築41年))
  • 即入居可能

この物件の特徴・魅力

  • 24時間利用可能
  • 即入居可能
  • 個別空調
  • 写真が豊富
  • 男女別トイレ
  • 駐車場あり
  • エレベーターあり
  • 40坪台オフィス
  • 21~30人向けオフィス

担当者コメント

担当者

シャトレ代官山アネックス 1階 101・104号室は、東急東横線「代官山」から徒歩6分の中規模オフィス・貸事務所です。 101号室はスケルトン仕様、104号室は事務所仕様となっており、用途に合わせた活用が可能です。 代官山エリアの閑静な立地で、個別空調やエレベーター、男女別トイレなど設備も充実しています。

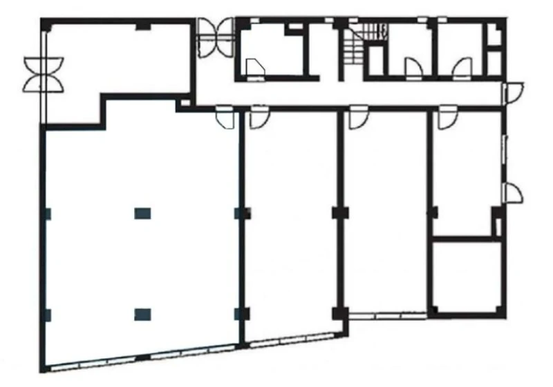
平面図

地図

お問い合わせいただいた後は、
経験豊富なスタッフが全力でご支援いたします!

お電話でのお問い合わせ

0120-66-7102

受付時間 10:00~18:00(土日祝日を除く)

物件については[物件No.12602-0126]とお伝えください。

メールフォームでのお問い合わせ

ログインして問い合わせる

シャトレ代官山アネックス 1階 101・104号室 (47.96坪) の基本情報

物件No 12602-0126
建物名 シャトレ代官山アネックス 1階 101・104号室 (47.96坪)
所在地
東京都渋谷区代官山町2-6  地図を見る 渋谷区で他の物件を探す
募集階層/階建 地上1階 / 5階建
坪数(平米) 47.96 坪(158.54 ㎡)
築年月(竣工) 1985年3月(築41年)
耐震 新耐震基準
構造 鉄筋コンクリート(RC)
最寄駅
用途 貸事務所・オフィス
最終更新日 2026年2月6日

契約条件

※表示価格はすべて税抜表示です
賃料
850,000 円(税抜)
坪単価 17,723円/坪
共益費/管理費等 確認中
保証金/敷金 10ヶ月
保証金償却 確認中
礼金 1ヶ月
更新料 無し
更新事務手数料 確認中
仲介手数料 確認中
造作価格
その他費用 保険加入:加入義務あり
建物賃貸借区分 普通借家契約
契約期間 2年
指定保証会社必須 要加入
引渡時期 即入居可能
引渡状態
諸条件・相談 事務所可

設備詳細・その他

設備 エレベーター、水道その他、エアコン、トイレ
エレベーター 有り
トイレ 男女別
床仕様
空調 個別空調
駐車場 空有 
特徴・魅力 2沿線以上利用可
事務所内装の備考 101号室(スケルトン)146.36㎡(約44.26坪)・104号室(事務所仕様)12.22㎡(約3.7坪)/天井高約2,400mm
ビル設備の備考 光ファイバー/駐車場:44,000円(税込)
担当者コメント シャトレ代官山アネックス 1階 101・104号室は、東急東横線「代官山」から徒歩6分の中規模オフィス・貸事務所です。 101号室はスケルトン仕様、104号室は事務所仕様となっており、用途に合わせた活用が可能です。 代官山エリアの閑静な立地で、個別空調やエレベーター、男女別トイレなど設備も充実しています。

お問い合わせいただいた後は、
経験豊富なスタッフが全力でご支援いたします!

お電話でのお問い合わせ

0120-66-7102

受付時間 10:00~18:00(土日祝日を除く)

物件については[物件No.12602-0126]とお伝えください。

メールフォームでのお問い合わせ

ログインして問い合わせる

ビルやお部屋の雰囲気

外観

内観・その他

周辺環境

  • 【駅】渋谷駅  

  • 【駅】渋谷駅  

  • 【駅】渋谷駅 東口  

  • 【駅】渋谷駅 東口  

  • 【駅】JR渋谷駅 中央改札  

  • 【駅】渋谷駅 B3出口  

  • 【駅】渋谷駅 A0出口  

マップで見る周辺の類似物件

「人型アイコン」を地図上にドラッグすることで『Google ストリートビュー』に切り替わります。

※地図上の「対象地」は実際の場所ではない場合がございます。詳しくはお問い合わせください。

お問い合わせフォームはこちら

お問い合わせいただいた後は、
経験豊富なスタッフが全力でご支援いたします!

お電話でのお問い合わせ

0120-66-7102

受付時間 10:00~18:00(土日祝日を除く)

物件については[物件No.12602-0126]とお伝えください。

メールフォームでのお問い合わせ

ログインして問い合わせる
この物件をご覧頂くには、会員登録(無料)が必要です。【無料会員登録】
No.{{ index + 1 }}
営業おすすめ NEW

非公開 掲載終了 商談中 物件写真
{{ estate.price_pending_type_name }} 価格未定

お探しのエリアで今注目の物件

この物件をご覧頂くには、会員登録(無料)が必要です。【無料会員登録】
No.{{ index + 1 }}
営業おすすめ NEW

非公開 掲載終了 商談中 物件写真
{{ estate.price_pending_type_name }} 価格未定

近隣のよく似た物件リスト

この物件をご覧頂くには、会員登録(無料)が必要です。【無料会員登録】
No.{{ index + 1 }}
営業おすすめ NEW

非公開 掲載終了 商談中 物件写真
{{ estate.price_pending_type_name }} 価格未定

この物件と同じ特徴から探す

近隣の路線・駅から物件を探す

東急東横線 / 渋谷 / 中目黒 / 祐天寺 / 学芸大学 / 都立大学

近隣のエリアから物件を探す

目黒区 / 新宿区 / 港区 / 世田谷区 / 千代田区

関東エリアエリアから物件を探す

東京都 / 神奈川県 / 埼玉県 / 千葉県