ちいきぼオフィス賃貸事務所・賃貸オフィス一覧東京都の賃貸事務所・賃貸オフィス一覧渋谷区の賃貸事務所・賃貸オフィス一覧新大宗道玄坂上ビル

物件No.12602-0077

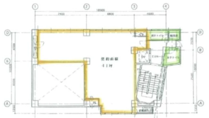
新大宗道玄坂上ビル 4階 401 (41.00坪)

最終更新日:2026年2月5日

  • 賃料
    717,500 円(税抜)
  • 東京都 渋谷区 円山町 20-1 地図で確認する
  • 神泉駅(京王井の頭線) 徒歩2分渋谷駅(京王井の頭線) 徒歩8分、渋谷駅(東京メトロ半蔵門線) 徒歩8分、渋谷駅(東京メトロ副都心線) 徒歩8分、渋谷駅(JR湘南新宿ライン(前橋〜小田原)) 徒歩8分
  • 12階建(1975年5月(築50年))
  • 2026年2月上旬より入居可能

この物件の特徴・魅力

  • 機械警備
  • 有人警備
  • 駅徒歩5分以内
  • 個別空調
  • 男女別トイレ
  • エレベーターあり
  • 40坪台オフィス
  • 21~30人向けオフィス

担当者コメント

担当者

新大宗道玄坂上ビル 4階 401は、京王井の頭線「神泉」から徒歩2分の中規模オフィス・貸事務所です。
駅から近く、通勤や来客に便利な好立地です。個別空調やトイレが備わり、快適な環境が整っています。エレベーターや有人警備もあり、セキュリティ面も安心です。定期借家契約で、集中して業務に取り組みたい企業様に適しています。

平面図

地図

お問い合わせいただいた後は、
経験豊富なスタッフが全力でご支援いたします!

お電話でのお問い合わせ

0120-66-7102

受付時間 10:00~18:00(土日祝日を除く)

物件については[物件No.12602-0077]とお伝えください。

メールフォームでのお問い合わせ

ログインして問い合わせる

新大宗道玄坂上ビル 4階 401 (41.00坪) の基本情報

物件No 12602-0077
建物名 新大宗道玄坂上ビル 4階 401 (41.00坪)
所在地
東京都渋谷区円山町20-1  地図を見る 渋谷区で他の物件を探す
募集階層/階建 地上4階 / 12階建
坪数(平米) 41.00 坪(135.53 ㎡)
築年月(竣工) 1975年5月(築50年)
耐震
構造 鉄骨造
最寄駅
用途 貸事務所・オフィス
最終更新日 2026年2月5日

契約条件

※表示価格はすべて税抜表示です
賃料
717,500 円(税抜)
坪単価 17,500円/坪
共益費/管理費等 143,500円
保証金/敷金 8ヶ月
保証金償却 10%
礼金 無し
更新料 1ヶ月
再契約
新賃料
更新事務手数料 確認中
仲介手数料 確認中
造作価格
その他費用
建物賃貸借区分 定期借家契約
契約期間 2年
指定保証会社必須 要加入
引渡時期 2026年2月上旬より入居可能
引渡状態
諸条件・相談 事務所可

設備詳細・その他

設備 エレベーター、エアコン、トイレ
エレベーター 有り
トイレ 共用部、男女別
床仕様
空調 個別空調
駐車場 無 
特徴・魅力 2沿線以上利用可
事務所内装の備考
ビル設備の備考 光ファイバー/エントランス解放5時~23時/有人警備22時まで
担当者コメント 新大宗道玄坂上ビル 4階 401は、京王井の頭線「神泉」から徒歩2分の中規模オフィス・貸事務所です。 駅から近く、通勤や来客に便利な好立地です。個別空調やトイレが備わり、快適な環境が整っています。エレベーターや有人警備もあり、セキュリティ面も安心です。定期借家契約で、集中して業務に取り組みたい企業様に適しています。

お問い合わせいただいた後は、
経験豊富なスタッフが全力でご支援いたします!

お電話でのお問い合わせ

0120-66-7102

受付時間 10:00~18:00(土日祝日を除く)

物件については[物件No.12602-0077]とお伝えください。

メールフォームでのお問い合わせ

ログインして問い合わせる

ビルやお部屋の雰囲気

外観

周辺環境

  • 【駅】渋谷駅 A0出口  

  • 【駅】渋谷駅  

  • 【駅】渋谷駅  

  • 【駅】JR渋谷駅 中央改札  

  • 【駅】渋谷駅 東口  

  • 【駅】渋谷駅 東口  

  • 【駅】渋谷駅 B3出口  

マップで見る周辺の類似物件

「人型アイコン」を地図上にドラッグすることで『Google ストリートビュー』に切り替わります。

※地図上の「対象地」は実際の場所ではない場合がございます。詳しくはお問い合わせください。

お問い合わせフォームはこちら

お問い合わせいただいた後は、
経験豊富なスタッフが全力でご支援いたします!

お電話でのお問い合わせ

0120-66-7102

受付時間 10:00~18:00(土日祝日を除く)

物件については[物件No.12602-0077]とお伝えください。

メールフォームでのお問い合わせ

ログインして問い合わせる
この物件をご覧頂くには、会員登録(無料)が必要です。【無料会員登録】
No.{{ index + 1 }}
営業おすすめ NEW

非公開 掲載終了 商談中 物件写真
{{ estate.price_pending_type_name }} 価格未定

お探しのエリアで今注目の物件

この物件をご覧頂くには、会員登録(無料)が必要です。【無料会員登録】
No.{{ index + 1 }}
営業おすすめ NEW

非公開 掲載終了 商談中 物件写真
{{ estate.price_pending_type_name }} 価格未定

近隣のよく似た物件リスト

この物件をご覧頂くには、会員登録(無料)が必要です。【無料会員登録】
No.{{ index + 1 }}
営業おすすめ NEW

非公開 掲載終了 商談中 物件写真
{{ estate.price_pending_type_name }} 価格未定

この物件と同じ特徴から探す

近隣の路線・駅から物件を探す

京王井の頭線 / 渋谷 / 駒場東大前 / 下北沢 / 新代田 / 東松原

近隣のエリアから物件を探す

目黒区 / 新宿区 / 港区 / 世田谷区 / 千代田区

関東エリアエリアから物件を探す

東京都 / 神奈川県 / 埼玉県 / 千葉県