ちいきぼオフィス賃貸事務所・賃貸オフィス一覧東京都の賃貸事務所・賃貸オフィス一覧中央区の賃貸事務所・賃貸オフィス一覧エコー京橋ビル

物件No.12601-0500

エコー京橋ビル 2階 (37.41坪)

最終更新日:2026年2月3日

  • 賃料
    418,991 円(税抜)
  • 東京都 中央区 京橋3丁目 12-1 地図で確認する
  • 宝町駅(都営浅草線) 徒歩1分京橋駅(東京メトロ銀座線) 徒歩3分、銀座一丁目駅(東京メトロ有楽町線) 徒歩5分
  • 10階建(1975年)
  • 2026年5月上旬より入居可能

この物件の特徴・魅力

  • 機械警備
  • 駅徒歩5分以内
  • 個別空調
  • 写真が豊富
  • エレベーターあり
  • コスパ重視
  • 30坪台オフィス
  • 16~20人向けオフィス

担当者コメント

担当者

エコー京橋ビル 2階は、都営浅草線「宝町」から徒歩1分の小規模オフィス・貸事務所です 。駅から至近の好立地で、通勤や来客時の利便性に優れています 。個別空調やエレベーターなど、設備面も整っており快適です 。37坪超の空間は、レイアウトの自由度も高くおすすめです 。

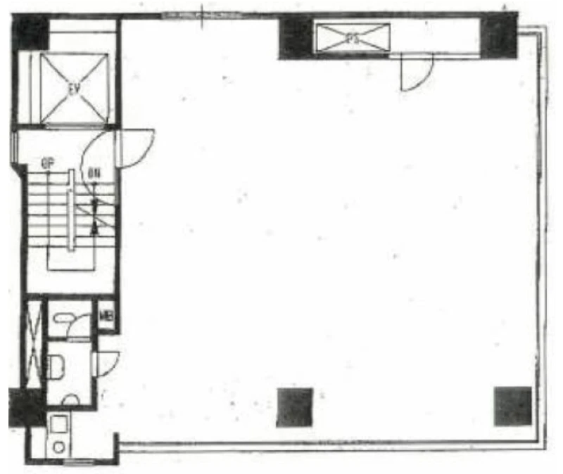
平面図

地図

お問い合わせいただいた後は、
経験豊富なスタッフが全力でご支援いたします!

お電話でのお問い合わせ

0120-66-7102

受付時間 10:00~18:00(土日祝日を除く)

物件については[物件No.12601-0500]とお伝えください。

メールフォームでのお問い合わせ

ログインして問い合わせる

エコー京橋ビル 2階 (37.41坪) の基本情報

物件No 12601-0500
建物名 エコー京橋ビル 2階 (37.41坪)
所在地
東京都中央区京橋3丁目12-1  地図を見る 中央区で他の物件を探す
募集階層/階建 地上2階 / 10階建
坪数(平米) 37.41 坪(123.66 ㎡)
築年月(竣工) 1975年
耐震
構造 鉄骨鉄筋コンクリート(SRC)
最寄駅
用途 貸事務所・オフィス
最終更新日 2026年2月3日

契約条件

※表示価格はすべて税抜表示です
賃料
418,991 円(税抜)
坪単価 11,199円/坪
共益費/管理費等 130,934円
保証金/敷金 6ヶ月
保証金償却 1ヶ月
礼金 確認中
更新料 確認中
更新事務手数料 確認中
仲介手数料 確認中
造作価格
その他費用
建物賃貸借区分
契約期間 2年
指定保証会社必須 要加入
引渡時期 2026年5月上旬より入居可能
引渡状態
諸条件・相談 事務所可

設備詳細・その他

設備 エレベーター、エアコン、トイレ
エレベーター 有り
トイレ 有り
床仕様
空調 個別空調
駐車場
特徴・魅力 2沿線以上利用可
事務所内装の備考
ビル設備の備考
担当者コメント エコー京橋ビル 2階は、都営浅草線「宝町」から徒歩1分の小規模オフィス・貸事務所です 。駅から至近の好立地で、通勤や来客時の利便性に優れています 。個別空調やエレベーターなど、設備面も整っており快適です 。37坪超の空間は、レイアウトの自由度も高くおすすめです 。

お問い合わせいただいた後は、
経験豊富なスタッフが全力でご支援いたします!

お電話でのお問い合わせ

0120-66-7102

受付時間 10:00~18:00(土日祝日を除く)

物件については[物件No.12601-0500]とお伝えください。

メールフォームでのお問い合わせ

ログインして問い合わせる

ビルやお部屋の雰囲気

外観

マップで見る周辺の類似物件

「人型アイコン」を地図上にドラッグすることで『Google ストリートビュー』に切り替わります。

※地図上の「対象地」は実際の場所ではない場合がございます。詳しくはお問い合わせください。

お問い合わせフォームはこちら

お問い合わせいただいた後は、
経験豊富なスタッフが全力でご支援いたします!

お電話でのお問い合わせ

0120-66-7102

受付時間 10:00~18:00(土日祝日を除く)

物件については[物件No.12601-0500]とお伝えください。

メールフォームでのお問い合わせ

ログインして問い合わせる
この物件をご覧頂くには、会員登録(無料)が必要です。【無料会員登録】
No.{{ index + 1 }}
営業おすすめ NEW

非公開 掲載終了 商談中 物件写真
{{ estate.price_pending_type_name }} 価格未定

お探しのエリアで今注目の物件

この物件をご覧頂くには、会員登録(無料)が必要です。【無料会員登録】
No.{{ index + 1 }}
営業おすすめ NEW

非公開 掲載終了 商談中 物件写真
{{ estate.price_pending_type_name }} 価格未定

近隣のよく似た物件リスト

この物件をご覧頂くには、会員登録(無料)が必要です。【無料会員登録】
No.{{ index + 1 }}
営業おすすめ NEW

非公開 掲載終了 商談中 物件写真
{{ estate.price_pending_type_name }} 価格未定

この物件と同じ特徴から探す

近隣の路線・駅から物件を探す

都営浅草線 / 人形町 / 日本橋 / 東銀座 / 新橋 / 大門

近隣のエリアから物件を探す

港区 / 千代田区 / 江東区 / 文京区 / 台東区

関東エリアエリアから物件を探す

東京都 / 神奈川県 / 埼玉県 / 千葉県