ちいきぼオフィス賃貸事務所・賃貸オフィス一覧東京都の賃貸事務所・賃貸オフィス一覧港区の賃貸事務所・賃貸オフィス一覧AURA麻布台

物件No.12601-0311

AURA麻布台 7階 (28.10坪)

最終更新日:2026年2月20日

  • 賃料
    730,600 円(税抜)
  • 東京都 港区 麻布台1丁目 11-7 地図で確認する
  • 神谷町駅(東京メトロ日比谷線) 徒歩4分赤羽橋駅(都営大江戸線) 徒歩10分、御成門駅(都営三田線) 徒歩14分
  • 9階建(新耐震基準/2020年1月(築6年))
  • 2026年5月下旬より入居可能

この物件の特徴・魅力

  • 機械警備
  • 駅徒歩5分以内
  • 個別空調
  • OAフロア
  • 写真が豊富
  • 男女別トイレ
  • エレベーターあり
  • 20坪台オフィス
  • 11~15人向けオフィス

担当者コメント

担当者

AURA麻布台 7階は、東京メトロ日比谷線「神谷町」から徒歩4分の小規模オフィス・貸事務所です。2020年築の築浅物件で、2.6mの天井高とOAフロア完備の洗練された執務空間が魅力です。約28.1坪の広さは、快適なワークスペースを求める企業様に最適です。トイレ、個別空調、エレベーターを完備しており快適にご利用いただけます。

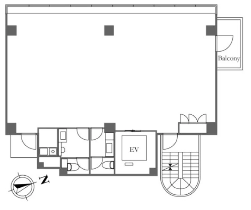
平面図

地図

お問い合わせいただいた後は、
経験豊富なスタッフが全力でご支援いたします!

お電話でのお問い合わせ

0120-66-7102

受付時間 10:00~18:00(土日祝日を除く)

物件については[物件No.12601-0311]とお伝えください。

メールフォームでのお問い合わせ

ログインして問い合わせる

AURA麻布台 7階 (28.10坪) の基本情報

物件No 12601-0311
建物名 AURA麻布台 7階 (28.10坪)
所在地
東京都港区麻布台1丁目11-7  地図を見る 港区で他の物件を探す
募集階層/階建 地上7階 / 9階建
坪数(平米) 28.10 坪(92.89 ㎡)
築年月(竣工) 2020年1月(築6年)
耐震 新耐震基準
構造 鉄骨造
最寄駅
用途 貸事務所・オフィス
最終更新日 2026年2月20日

契約条件

※表示価格はすべて税抜表示です
賃料
730,600 円(税抜)
坪単価 26,000円/坪
共益費/管理費等 無し
保証金/敷金 6ヶ月
保証金償却 無し
礼金 1ヶ月
更新料 1ヶ月
更新
新賃料
更新事務手数料 確認中
仲介手数料 確認中
造作価格
その他費用 仲介手数料必要
建物賃貸借区分 普通借家契約
契約期間 2年
指定保証会社必須 要加入
引渡時期 2026年5月下旬より入居可能
2026年5月25日
引渡状態
諸条件・相談 事務所可

設備詳細・その他

設備 エレベーター、トイレ、エアコン
エレベーター 有り
トイレ 男女別
床仕様 OAフロア
空調 個別空調
駐車場
特徴・魅力 2沿線以上利用可
事務所内装の備考 天井高:2,600mm/OAフロア:100mm
ビル設備の備考
担当者コメント AURA麻布台 7階は、東京メトロ日比谷線「神谷町」から徒歩4分の小規模オフィス・貸事務所です。2020年築の築浅物件で、2.6mの天井高とOAフロア完備の洗練された執務空間が魅力です。約28.1坪の広さは、快適なワークスペースを求める企業様に最適です。トイレ、個別空調、エレベーターを完備しており快適にご利用いただけます。

お問い合わせいただいた後は、
経験豊富なスタッフが全力でご支援いたします!

お電話でのお問い合わせ

0120-66-7102

受付時間 10:00~18:00(土日祝日を除く)

物件については[物件No.12601-0311]とお伝えください。

メールフォームでのお問い合わせ

ログインして問い合わせる

ビルやお部屋の雰囲気

外観

内観・その他

周辺環境

  • 【駅】神谷町駅  

  • 【駅】赤羽橋駅  

  • 【駅】御成門駅  

  • 【駅】麻布十番駅  

  • 【駅】虎ノ門ヒルズ駅  

  • 【駅】芝公園駅  

マップで見る周辺の類似物件

「人型アイコン」を地図上にドラッグすることで『Google ストリートビュー』に切り替わります。

※地図上の「対象地」は実際の場所ではない場合がございます。詳しくはお問い合わせください。

お問い合わせフォームはこちら

お問い合わせいただいた後は、
経験豊富なスタッフが全力でご支援いたします!

お電話でのお問い合わせ

0120-66-7102

受付時間 10:00~18:00(土日祝日を除く)

物件については[物件No.12601-0311]とお伝えください。

メールフォームでのお問い合わせ

ログインして問い合わせる
この物件をご覧頂くには、会員登録(無料)が必要です。【無料会員登録】
No.{{ index + 1 }}
営業おすすめ NEW

非公開 掲載終了 商談中 物件写真
{{ estate.price_pending_type_name }} 価格未定

お探しのエリアで今注目の物件

この物件をご覧頂くには、会員登録(無料)が必要です。【無料会員登録】
No.{{ index + 1 }}
営業おすすめ NEW

非公開 掲載終了 商談中 物件写真
{{ estate.price_pending_type_name }} 価格未定

近隣のよく似た物件リスト

この物件をご覧頂くには、会員登録(無料)が必要です。【無料会員登録】
No.{{ index + 1 }}
営業おすすめ NEW

非公開 掲載終了 商談中 物件写真
{{ estate.price_pending_type_name }} 価格未定

この物件と同じ特徴から探す

近隣の路線・駅から物件を探す

東京メトロ日比谷線 / 霞ヶ関 / 虎ノ門ヒルズ / 六本木 / 広尾 / 恵比寿

近隣のエリアから物件を探す

中央区 / 千代田区 / 渋谷区 / 目黒区 / 文京区

関東エリアエリアから物件を探す

東京都 / 神奈川県 / 埼玉県 / 千葉県