ちいきぼオフィス賃貸事務所・賃貸オフィス一覧東京都の賃貸事務所・賃貸オフィス一覧墨田区の賃貸事務所・賃貸オフィス一覧マツミハイツ

物件No.12511-0213

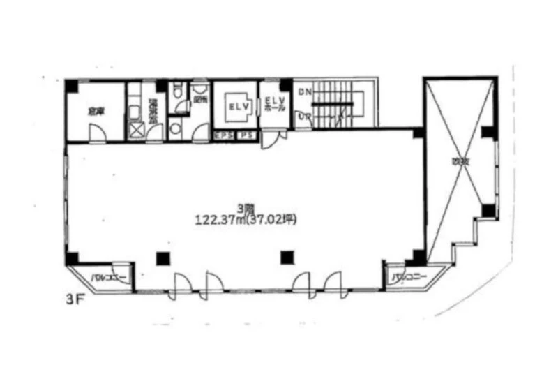
マツミハイツ 3階 (37.02坪)

最終更新日:2025年12月18日

  • 賃料
    296,160 円(税抜)
  • 東京都 墨田区 立川4丁目 13-1 地図で確認する
  • 菊川駅(都営新宿線) 徒歩5分錦糸町駅(JR総武・中央緩行線) 徒歩17分、錦糸町駅(JR総武本線) 徒歩17分
  • 6階建(1991年3月(築35年))
  • 即入居可能

この物件の特徴・魅力

  • 営業おすすめ
  • 駅徒歩5分以内
  • 即入居可能
  • 写真が豊富
  • エレベーターあり
  • コスパ重視
  • 30坪台オフィス
  • 16~20人向けオフィス

担当者コメント

担当者

マツミハイツ 3階は、都営新宿線「菊川」から徒歩5分の小規模オフィス・貸事務所です。 月々のランニングコストを抑えたいスタートアップ企業様に特におすすめしたいコンパクトオフィスです。 37.02坪の使いやすい小さい事務所で、レイアウトもしやすいでしょう。トイレ、エレベーターを完備しております。

平面図

地図

お問い合わせいただいた後は、
経験豊富なスタッフが全力でご支援いたします!

お電話でのお問い合わせ

0120-66-7102

受付時間 10:00~18:00(土日祝日を除く)

物件については[物件No.12511-0213]とお伝えください。

メールフォームでのお問い合わせ

ログインして問い合わせる

マツミハイツ 3階 (37.02坪) の基本情報

物件No 12511-0213
建物名 マツミハイツ 3階 (37.02坪)
所在地
東京都墨田区立川4丁目13-1  地図を見る 墨田区で他の物件を探す
募集階層/階建 地上3階 / 6階建
坪数(平米) 37.02 坪(122.38 ㎡)
築年月(竣工) 1991年3月(築35年)
耐震
構造 鉄筋コンクリート(RC)
最寄駅
用途 貸事務所・オフィス
最終更新日 2025年12月18日

契約条件

※表示価格はすべて税抜表示です
賃料
296,160 円(税抜)
坪単価 7,999円/坪
共益費/管理費等 37,020円
保証金/敷金 1,303,000円
保証金償却 確認中
礼金 2ヶ月
更新料 無し
更新
新賃料
更新事務手数料 確認中
仲介手数料 1ヶ月
造作価格
その他費用
建物賃貸借区分 普通借家契約
契約期間 2年
指定保証会社必須 要加入 (株式会社セーフティーイノベーション)※月額固定費の1ヶ月
引渡時期 即入居可能
引渡状態
諸条件・相談

設備詳細・その他

設備 給湯、トイレ、エレベーター
エレベーター 有り
トイレ 室内
床仕様
空調
駐車場
特徴・魅力 2沿線以上利用可
事務所内装の備考
ビル設備の備考
担当者コメント マツミハイツ 3階は、都営新宿線「菊川」から徒歩5分の小規模オフィス・貸事務所です。 月々のランニングコストを抑えたいスタートアップ企業様に特におすすめしたいコンパクトオフィスです。 37.02坪の使いやすい小さい事務所で、レイアウトもしやすいでしょう。トイレ、エレベーターを完備しております。

お問い合わせいただいた後は、
経験豊富なスタッフが全力でご支援いたします!

お電話でのお問い合わせ

0120-66-7102

受付時間 10:00~18:00(土日祝日を除く)

物件については[物件No.12511-0213]とお伝えください。

メールフォームでのお問い合わせ

ログインして問い合わせる

ビルやお部屋の雰囲気

外観

内観・その他

  • 周辺環境

  • 周辺環境

周辺環境

  • 【駅】都営新宿線菊川駅  

マップで見る周辺の類似物件

「人型アイコン」を地図上にドラッグすることで『Google ストリートビュー』に切り替わります。

※地図上の「対象地」は実際の場所ではない場合がございます。詳しくはお問い合わせください。

お問い合わせフォームはこちら

お問い合わせいただいた後は、
経験豊富なスタッフが全力でご支援いたします!

お電話でのお問い合わせ

0120-66-7102

受付時間 10:00~18:00(土日祝日を除く)

物件については[物件No.12511-0213]とお伝えください。

メールフォームでのお問い合わせ

ログインして問い合わせる
この物件をご覧頂くには、会員登録(無料)が必要です。【無料会員登録】
No.{{ index + 1 }}
営業おすすめ NEW

非公開 掲載終了 商談中 物件写真
{{ estate.price_pending_type_name }} 価格未定

お探しのエリアで今注目の物件

この物件をご覧頂くには、会員登録(無料)が必要です。【無料会員登録】
No.{{ index + 1 }}
営業おすすめ NEW

非公開 掲載終了 商談中 物件写真
{{ estate.price_pending_type_name }} 価格未定

近隣のよく似た物件リスト

この物件をご覧頂くには、会員登録(無料)が必要です。【無料会員登録】
No.{{ index + 1 }}
営業おすすめ NEW

非公開 掲載終了 商談中 物件写真
{{ estate.price_pending_type_name }} 価格未定

この物件と同じ特徴から探す

近隣の路線・駅から物件を探す

都営新宿線 / 馬喰横山 / 浜町 / 西大島 / 大島 / 東大島

近隣のエリアから物件を探す

台東区 / 荒川区 / 文京区 / 江東区 / 千代田区

関東エリアエリアから物件を探す

東京都 / 神奈川県 / 埼玉県 / 千葉県