ちいきぼオフィス賃貸事務所・賃貸オフィス一覧東京都の賃貸事務所・賃貸オフィス一覧千代田区の賃貸事務所・賃貸オフィス一覧藤和内神田ビル

物件No.12510-0144

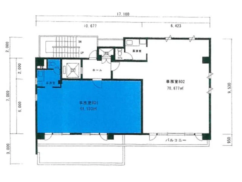
藤和内神田ビル 8階 801 (18.49坪)

最終更新日:2025年12月22日

  • 賃料
    305,085 円(税抜)
  • 東京都 千代田区 内神田2丁目 4-4 地図で確認する
  • 神田駅(JR山手線) 徒歩4分神田駅(JR中央本線) 徒歩4分、大手町駅(東京メトロ丸ノ内線) 徒歩6分、神田駅(JR京浜東北・根岸線) 徒歩4分、神田駅(東京メトロ銀座線) 徒歩7分
  • 8階建(1984年7月(築41年))
  • 即入居可能

この物件の特徴・魅力

  • セキュリティ充実
  • 機械警備
  • 営業おすすめ
  • 駅徒歩5分以内
  • 即入居可能
  • エレベーターあり
  • 10坪台オフィス
  • 6~10人向けオフィス

担当者コメント

担当者

藤和内神田ビル 801は、JR山手線「神田」から徒歩4分のオフィス・貸事務所です。 エレベーターやエアコン、機械警備、トイレなど設備が充実しています。 募集面積は18.49坪と、スタートアップの支店展開にも適した広さです。

平面図準備中

平面図

地図

画像をクリックすると上部の画像が切り替わります

お問い合わせいただいた後は、
経験豊富なスタッフが全力でご支援いたします!

お電話でのお問い合わせ

0120-66-7102

受付時間 10:00~18:00(土日祝日を除く)

物件については[物件No.12510-0144]とお伝えください。

メールフォームでのお問い合わせ

ログインして問い合わせる

藤和内神田ビル 8階 801 (18.49坪) の基本情報

物件No 12510-0144
建物名 藤和内神田ビル 8階 801 (18.49坪)
所在地
東京都千代田区内神田2丁目4-4  地図を見る 千代田区で他の物件を探す
募集階層/階建 地上8階 / 8階建
坪数(平米) 18.49 坪(61.12 ㎡)
築年月(竣工) 1984年7月(築41年)
耐震
構造 鉄骨鉄筋コンクリート(SRC)
最寄駅
用途 貸事務所・オフィス
最終更新日 2025年12月22日

契約条件

※表示価格はすべて税抜表示です
賃料
305,085 円(税抜)
坪単価 16,500円/坪
共益費/管理費等 64,715円
保証金/敷金 6ヶ月
保証金償却 1ヶ月
礼金 確認中
更新料 1ヶ月
更新
新賃料
更新事務手数料 確認中
仲介手数料 1ヶ月
造作価格 無し
その他費用
建物賃貸借区分 普通借家契約
契約期間 2年
指定保証会社必須 要加入 (株式会社セーフティーイノベーション)※月額固定費の1ヶ月
引渡時期 即入居可能
引渡状態
諸条件・相談 事務所可

設備詳細・その他

設備
エレベーター 有り
トイレ 有り
床仕様
空調 有り
駐車場 無 
特徴・魅力 2沿線以上利用可
事務所内装の備考
ビル設備の備考 機械警備あり
担当者コメント 藤和内神田ビル 801は、JR山手線「神田」から徒歩4分のオフィス・貸事務所です。 エレベーターやエアコン、機械警備、トイレなど設備が充実しています。 募集面積は18.49坪と、スタートアップの支店展開にも適した広さです。

お問い合わせいただいた後は、
経験豊富なスタッフが全力でご支援いたします!

お電話でのお問い合わせ

0120-66-7102

受付時間 10:00~18:00(土日祝日を除く)

物件については[物件No.12510-0144]とお伝えください。

メールフォームでのお問い合わせ

ログインして問い合わせる

ビルやお部屋の雰囲気

外観

マップで見る周辺の類似物件

「人型アイコン」を地図上にドラッグすることで『Google ストリートビュー』に切り替わります。

※地図上の「対象地」は実際の場所ではない場合がございます。詳しくはお問い合わせください。

お問い合わせフォームはこちら

お問い合わせいただいた後は、
経験豊富なスタッフが全力でご支援いたします!

お電話でのお問い合わせ

0120-66-7102

受付時間 10:00~18:00(土日祝日を除く)

物件については[物件No.12510-0144]とお伝えください。

メールフォームでのお問い合わせ

ログインして問い合わせる
この物件をご覧頂くには、会員登録(無料)が必要です。【無料会員登録】
No.{{ index + 1 }}
営業おすすめ NEW

非公開 掲載終了 商談中 物件写真
{{ estate.price_pending_type_name }} 価格未定

お探しのエリアで今注目の物件

この物件をご覧頂くには、会員登録(無料)が必要です。【無料会員登録】
No.{{ index + 1 }}
営業おすすめ NEW

非公開 掲載終了 商談中 物件写真
{{ estate.price_pending_type_name }} 価格未定

近隣のよく似た物件リスト

この物件をご覧頂くには、会員登録(無料)が必要です。【無料会員登録】
No.{{ index + 1 }}
営業おすすめ NEW

非公開 掲載終了 商談中 物件写真
{{ estate.price_pending_type_name }} 価格未定

この物件と同じ特徴から探す

近隣の路線・駅から物件を探す

JR山手線 / 日暮里 / 鶯谷 / 上野 / 御徒町 / 秋葉原

近隣のエリアから物件を探す

文京区 / 中央区 / 台東区 / 港区 / 新宿区

関東エリアエリアから物件を探す

東京都 / 神奈川県 / 埼玉県 / 千葉県