ちいきぼオフィス賃貸事務所・賃貸オフィス一覧神奈川県の賃貸事務所・賃貸オフィス一覧横浜市戸塚区の賃貸事務所・賃貸オフィス一覧六国建設ビル

物件No.12510-0137

六国建設ビル 3階 (93.59坪)

最終更新日:2025年12月22日

  • 賃料
    1,170,000 円(税抜)
  • 神奈川県 横浜市戸塚区 品濃町 550−5 地図で確認する
  • 東戸塚駅(JR横須賀線) 徒歩5分東戸塚駅(JR湘南新宿ライン(宇都宮〜逗子)) 徒歩5分
  • 3階建(2004年9月(築21年))
  • 引渡時期はお問い合わせください

この物件の特徴・魅力

  • セキュリティ充実
  • 営業おすすめ
  • 駅徒歩5分以内
  • 写真が豊富
  • 駐車場あり
  • エレベーターあり
  • スケルトン
  • 40人以上向けオフィス

担当者コメント

担当者

六国建設ビル 3階は、JR横須賀線「東戸塚」から徒歩5分のオフィス・貸事務所です。 93.59坪と広く、大規模な事業所としてもご検討いただけます。
スケルトンでの引渡しの為、自由にレイアウトが可能です。 エレベーター、トイレ、給湯室等設備が充実しております。

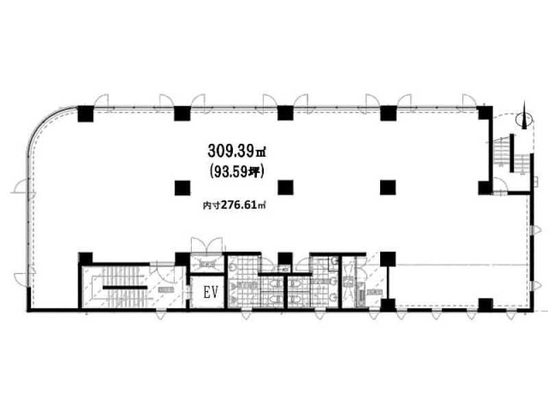
平面図

地図

お問い合わせいただいた後は、
経験豊富なスタッフが全力でご支援いたします!

お電話でのお問い合わせ

0120-66-7102

受付時間 10:00~18:00(土日祝日を除く)

物件については[物件No.12510-0137]とお伝えください。

メールフォームでのお問い合わせ

ログインして問い合わせる

六国建設ビル 3階 (93.59坪) の基本情報

物件No 12510-0137
建物名 六国建設ビル 3階 (93.59坪)
所在地
神奈川県横浜市戸塚区品濃町550−5  地図を見る 横浜市戸塚区で他の物件を探す
募集階層/階建 地上3階 / 3階建
坪数(平米) 93.59 坪(309.38 ㎡)
築年月(竣工) 2004年9月(築21年)
耐震
構造 鉄筋コンクリート(RC)
最寄駅
用途 貸事務所・オフィス
最終更新日 2025年12月22日

契約条件

※表示価格はすべて税抜表示です
賃料
1,170,000 円(税抜)
坪単価 12,501円/坪
共益費/管理費等 無し
保証金/敷金 3ヶ月
保証金償却 20%
礼金 1ヶ月
更新料 確認中
更新事務手数料 確認中
仲介手数料 1ヶ月
造作価格 無し
その他費用 借家人賠償保険加入必須
建物賃貸借区分 普通借家契約
契約期間 3年
指定保証会社必須 要加入 (株式会社セーフティーイノベーション)※月額固定費の1ヶ月
引渡時期 お問い合わせください
引渡状態 スケルトン
諸条件・相談 事務所可

設備詳細・その他

設備 上水道、給湯
エレベーター 有り
トイレ 有り
床仕様
空調
駐車場 有 
特徴・魅力 2沿線以上利用可
事務所内装の備考
ビル設備の備考 セコム・男女別トイレ・給湯室(冷蔵庫残置)・個別水道・電気/駐車場:専用2台分あり(1台20,000円)
担当者コメント 六国建設ビル 3階は、JR横須賀線「東戸塚」から徒歩5分のオフィス・貸事務所です。 93.59坪と広く、大規模な事業所としてもご検討いただけます。 スケルトンでの引渡しの為、自由にレイアウトが可能です。 エレベーター、トイレ、給湯室等設備が充実しております。

お問い合わせいただいた後は、
経験豊富なスタッフが全力でご支援いたします!

お電話でのお問い合わせ

0120-66-7102

受付時間 10:00~18:00(土日祝日を除く)

物件については[物件No.12510-0137]とお伝えください。

メールフォームでのお問い合わせ

ログインして問い合わせる

ビルやお部屋の雰囲気

外観

内観・その他

マップで見る周辺の類似物件

「人型アイコン」を地図上にドラッグすることで『Google ストリートビュー』に切り替わります。

※地図上の「対象地」は実際の場所ではない場合がございます。詳しくはお問い合わせください。

お問い合わせフォームはこちら

お問い合わせいただいた後は、
経験豊富なスタッフが全力でご支援いたします!

お電話でのお問い合わせ

0120-66-7102

受付時間 10:00~18:00(土日祝日を除く)

物件については[物件No.12510-0137]とお伝えください。

メールフォームでのお問い合わせ

ログインして問い合わせる
この物件をご覧頂くには、会員登録(無料)が必要です。【無料会員登録】
No.{{ index + 1 }}
営業おすすめ NEW

非公開 掲載終了 商談中 物件写真
{{ estate.price_pending_type_name }} 価格未定

お探しのエリアで今注目の物件

この物件をご覧頂くには、会員登録(無料)が必要です。【無料会員登録】
No.{{ index + 1 }}
営業おすすめ NEW

非公開 掲載終了 商談中 物件写真
{{ estate.price_pending_type_name }} 価格未定

近隣のよく似た物件リスト

この物件をご覧頂くには、会員登録(無料)が必要です。【無料会員登録】
No.{{ index + 1 }}
営業おすすめ NEW

非公開 掲載終了 商談中 物件写真
{{ estate.price_pending_type_name }} 価格未定

この物件と同じ特徴から探す

近隣の路線・駅から物件を探す

JR横須賀線 / 横浜 / 保土ヶ谷 / 戸塚 / 鎌倉 / 衣笠

近隣のエリアから物件を探す

横浜市泉区 / 横浜市港南区 / 藤沢市 / 横浜市磯子区 / 横浜市南区

関東エリアエリアから物件を探す

東京都 / 神奈川県 / 埼玉県 / 千葉県