ちいきぼオフィス賃貸事務所・賃貸オフィス一覧東京都の賃貸事務所・賃貸オフィス一覧江東区の賃貸事務所・賃貸オフィス一覧越中島STビル

物件No.12510-0106

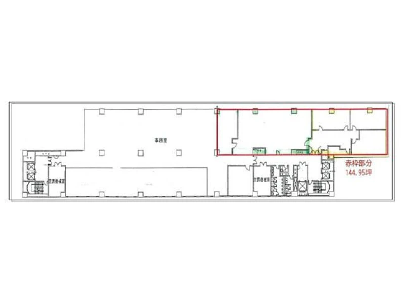
越中島STビル 6階 (144.95坪)

最終更新日:2025年12月22日

  • 賃料
    434,850 円(税抜)
  • 東京都 江東区 越中島2丁目 1-30 地図で確認する
  • 越中島駅(JR京葉線) 徒歩3分門前仲町駅(東京メトロ東西線) 徒歩11分
  • 6階建(地下2階建)(1989年2月(築37年))
  • 引渡時期はお問い合わせください

この物件の特徴・魅力

  • セキュリティ充実
  • 有人警備
  • 営業おすすめ
  • 駅徒歩5分以内
  • 写真が豊富
  • コスパ重視
  • 40人以上向けオフィス

担当者コメント

担当者

越中島STビル 6階 は、JR京葉線「越中島」から徒歩3分のオフィス・貸事務所です。 募集階は最上階の6階部分です。広さは約145坪あります。 トイレ、24時間セキュリティ等設備が充実しており快適にご利用いただけます。

平面図

地図

お問い合わせいただいた後は、
経験豊富なスタッフが全力でご支援いたします!

お電話でのお問い合わせ

0120-66-7102

受付時間 10:00~18:00(土日祝日を除く)

物件については[物件No.12510-0106]とお伝えください。

メールフォームでのお問い合わせ

ログインして問い合わせる

越中島STビル 6階 (144.95坪) の基本情報

物件No 12510-0106
建物名 越中島STビル 6階 (144.95坪)
所在地
東京都江東区越中島2丁目1-30  地図を見る 江東区で他の物件を探す
募集階層/階建 地上6階 / 6階建(地下2階建)
坪数(平米) 144.95 坪(479.17 ㎡)
築年月(竣工) 1989年2月(築37年)
耐震
構造 鉄骨鉄筋コンクリート(SRC) 一部鉄骨造
最寄駅
用途 貸事務所・オフィス
最終更新日 2025年12月22日

契約条件

※表示価格はすべて税抜表示です
賃料
434,850 円(税抜)
坪単価 3,000円/坪
共益費/管理費等 434,850円
保証金/敷金 10ヶ月
保証金償却 無し
礼金 1ヶ月
更新料 確認中
更新事務手数料 確認中
仲介手数料 1ヶ月
造作価格
その他費用 電気代・水道代・廃棄物処理代は別途
建物賃貸借区分 定期借家契約
契約期間 3年
指定保証会社必須 要加入 (株式会社セーフティーイノベーション)※月額固定費の1ヶ月
引渡時期 お問い合わせください
引渡状態
諸条件・相談

設備詳細・その他

設備 トイレ、24時間セキュリティ、トイレ2箇所、電気
エレベーター
トイレ 室内、共用部
床仕様
空調
駐車場
特徴・魅力 2沿線以上利用可
事務所内装の備考
ビル設備の備考 電気容量:75VA/㎡(100VA/㎡まで増設可能)/天井高2,600mm/床構造タイルカーペット/光ケーブルMDFのPD盤に引込済/セキュリティ設備 24時間365日有人警備、各所に防犯カメラ
担当者コメント 越中島STビル 6階 は、JR京葉線「越中島」から徒歩3分のオフィス・貸事務所です。 募集階は最上階の6階部分です。広さは約145坪あります。 トイレ、24時間セキュリティ等設備が充実しており快適にご利用いただけます。

お問い合わせいただいた後は、
経験豊富なスタッフが全力でご支援いたします!

お電話でのお問い合わせ

0120-66-7102

受付時間 10:00~18:00(土日祝日を除く)

物件については[物件No.12510-0106]とお伝えください。

メールフォームでのお問い合わせ

ログインして問い合わせる

ビルやお部屋の雰囲気

外観

内観・その他

マップで見る周辺の類似物件

「人型アイコン」を地図上にドラッグすることで『Google ストリートビュー』に切り替わります。

※地図上の「対象地」は実際の場所ではない場合がございます。詳しくはお問い合わせください。

お問い合わせフォームはこちら

お問い合わせいただいた後は、
経験豊富なスタッフが全力でご支援いたします!

お電話でのお問い合わせ

0120-66-7102

受付時間 10:00~18:00(土日祝日を除く)

物件については[物件No.12510-0106]とお伝えください。

メールフォームでのお問い合わせ

ログインして問い合わせる
この物件をご覧頂くには、会員登録(無料)が必要です。【無料会員登録】
No.{{ index + 1 }}
営業おすすめ NEW

非公開 掲載終了 商談中 物件写真
{{ estate.price_pending_type_name }} 価格未定

お探しのエリアで今注目の物件

この物件をご覧頂くには、会員登録(無料)が必要です。【無料会員登録】
No.{{ index + 1 }}
営業おすすめ NEW

非公開 掲載終了 商談中 物件写真
{{ estate.price_pending_type_name }} 価格未定

近隣のよく似た物件リスト

この物件をご覧頂くには、会員登録(無料)が必要です。【無料会員登録】
No.{{ index + 1 }}
営業おすすめ NEW

非公開 掲載終了 商談中 物件写真
{{ estate.price_pending_type_name }} 価格未定

この物件と同じ特徴から探す

近隣の路線・駅から物件を探す

JR京葉線 / 東京 / 八丁堀 / 千葉みなと / 蘇我

近隣のエリアから物件を探す

中央区 / 墨田区 / 台東区 / 江戸川区 / 港区

関東エリアエリアから物件を探す

東京都 / 神奈川県 / 埼玉県 / 千葉県