ちいきぼオフィス賃貸事務所・賃貸オフィス一覧福岡県の賃貸事務所・賃貸オフィス一覧福岡市中央区の賃貸事務所・賃貸オフィス一覧Capital Gate

物件No.12604-0211

Capital Gate 4階 (36.28坪)

最終更新日:2026年5月14日

  • 賃料
    616,760 円(税抜)
  • 福岡県 福岡市中央区 薬院4丁目 1-4 地図で確認する
  • 薬院大通駅(福岡市七隈線) 徒歩2分薬院駅(西鉄天神大牟田線) 徒歩8分、薬院駅(福岡市七隈線) 徒歩8分、渡辺通駅(福岡市七隈線) 徒歩12分、桜坂駅(福岡市七隈線) 徒歩15分
  • 9階建(2005年4月(築21年))
  • 即入居可能

この物件の特徴・魅力

  • 営業おすすめ
  • 駅徒歩5分以内
  • 即入居可能
  • VR内見あり
  • エレベーターあり
  • 30坪台オフィス
  • 16~20人向けオフィス

担当者コメント

担当者

Capital Gate 4階は、福岡市七隈線「薬院大通」から徒歩2分の小規模オフィス・貸事務所です。駅から徒歩2分の好立地で、通勤や来客時の利便性に優れています。2005年築の地上9階建てビルで、トイレやエレベーターなど必要な設備が整っています。定期借家契約5年で、腰を据えた事業運営が可能です。

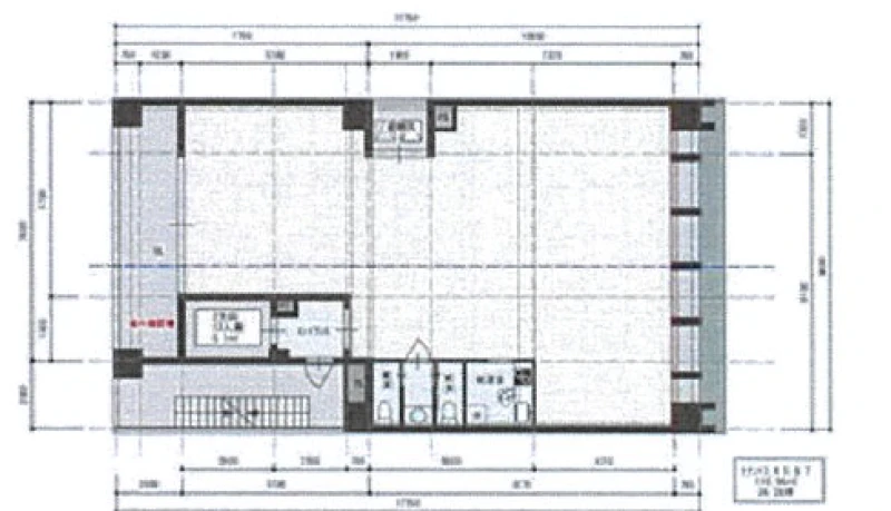
平面図

地図

画像をクリックすると上部の画像が切り替わります

お問い合わせいただいた後は、
経験豊富なスタッフが全力でご支援いたします!

お電話でのお問い合わせ

0120-66-7102

受付時間 10:00~18:00(土日祝日を除く)

物件については[物件No.12604-0211]とお伝えください。

メールフォームでのお問い合わせ

ログインして問い合わせる

Capital Gate 4階 (36.28坪) の基本情報

物件No 12604-0211
建物名 Capital Gate 4階 (36.28坪)
所在地
福岡県福岡市中央区薬院4丁目1-4  地図を見る 福岡市中央区で他の物件を探す
募集階層/階建 地上4階 / 9階建
坪数(平米) 36.28 坪(119.93 ㎡)
築年月(竣工) 2005年4月(築21年)
耐震
構造 鉄筋コンクリート(RC)
最寄駅
用途 貸事務所・オフィス
最終更新日 2026年5月14日

契約条件

※表示価格はすべて税抜表示です
賃料
616,760 円(税抜)
坪単価 17,000円/坪
共益費/管理費等 15,000円
保証金/敷金 6ヶ月
保証金償却 確認中
礼金 確認中
更新料 確認中
更新事務手数料 確認中
仲介手数料 確認中
造作価格
その他費用
建物賃貸借区分 定期借家契約
契約期間 5年
指定保証会社必須 要加入 (株式会社セーフティーイノベーション)※月額固定費の1ヶ月
引渡時期 即入居可能
引渡状態
諸条件・相談 事務所可

設備詳細・その他

設備 トイレ、エレベーター
エレベーター 有り
トイレ 有り
床仕様
空調
駐車場
特徴・魅力 2沿線以上利用可
事務所内装の備考
ビル設備の備考
担当者コメント Capital Gate 4階は、福岡市七隈線「薬院大通」から徒歩2分の小規模オフィス・貸事務所です。駅から徒歩2分の好立地で、通勤や来客時の利便性に優れています。2005年築の地上9階建てビルで、トイレやエレベーターなど必要な設備が整っています。定期借家契約5年で、腰を据えた事業運営が可能です。

動画/VR

お問い合わせいただいた後は、
経験豊富なスタッフが全力でご支援いたします!

お電話でのお問い合わせ

0120-66-7102

受付時間 10:00~18:00(土日祝日を除く)

物件については[物件No.12604-0211]とお伝えください。

メールフォームでのお問い合わせ

ログインして問い合わせる

ビルやお部屋の雰囲気

外観

マップで見る周辺の類似物件

「人型アイコン」を地図上にドラッグすることで『Google ストリートビュー』に切り替わります。

※地図上の「対象地」は実際の場所ではない場合がございます。詳しくはお問い合わせください。

お問い合わせフォームはこちら

お問い合わせいただいた後は、
経験豊富なスタッフが全力でご支援いたします!

お電話でのお問い合わせ

0120-66-7102

受付時間 10:00~18:00(土日祝日を除く)

物件については[物件No.12604-0211]とお伝えください。

メールフォームでのお問い合わせ

ログインして問い合わせる
この物件をご覧頂くには、会員登録(無料)が必要です。【無料会員登録】
No.{{ index + 1 }}
営業おすすめ NEW

非公開 掲載終了 商談中 物件写真
{{ estate.price_pending_type_name }} 価格未定

お探しのエリアで今注目の物件

この物件をご覧頂くには、会員登録(無料)が必要です。【無料会員登録】
No.{{ index + 1 }}
営業おすすめ NEW

非公開 掲載終了 商談中 物件写真
{{ estate.price_pending_type_name }} 価格未定

近隣のよく似た物件リスト

この物件をご覧頂くには、会員登録(無料)が必要です。【無料会員登録】
No.{{ index + 1 }}
営業おすすめ NEW

非公開 掲載終了 商談中 物件写真
{{ estate.price_pending_type_name }} 価格未定

この物件と同じ特徴から探す

近隣の路線・駅から物件を探す

福岡市七隈線 / 六本松 / 桜坂 / 薬院 / 渡辺通 / 天神南

近隣のエリアから物件を探す

福岡市東区 / 福岡市博多区 / 福岡市城南区 / 福岡市南区 / 糟屋郡志免町

九州エリアエリアから物件を探す

福岡県