ちいきぼオフィス賃貸事務所・賃貸オフィス一覧東京都の賃貸事務所・賃貸オフィス一覧文京区の賃貸事務所・賃貸オフィス一覧本郷三宝ビル

物件No.12603-0596

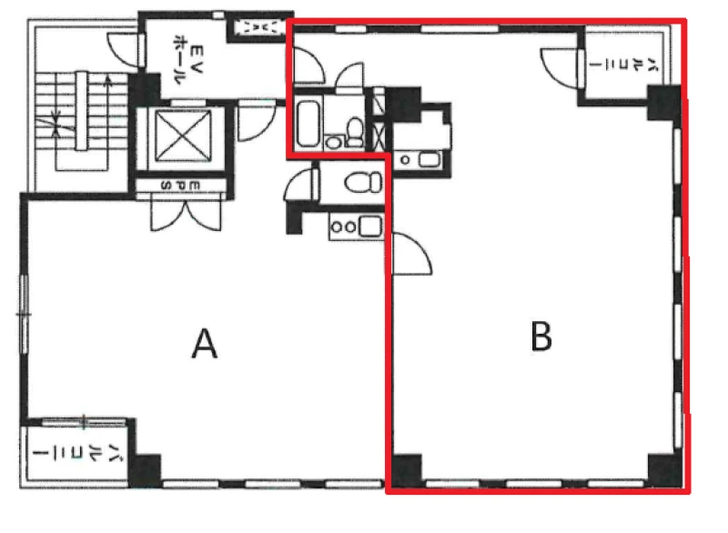
本郷三宝ビル 4階 B (21.34坪)

最終更新日:2026年4月9日

  • 賃料
    320,100 円(税抜)
  • 東京都 文京区 本郷3丁目 19-7 地図で確認する
  • 本郷三丁目駅(東京メトロ丸ノ内線) 徒歩5分本郷三丁目駅(都営大江戸線) 徒歩5分、御茶ノ水駅(JR総武・中央緩行線) 徒歩10分、御茶ノ水駅(JR中央本線) 徒歩10分、御茶ノ水駅(東京メトロ丸ノ内線) 徒歩10分
  • 6階建(1992年10月(築33年))
  • 引渡時期はお問い合わせください

この物件の特徴・魅力

  • 営業おすすめ
  • 駅徒歩5分以内
  • VR内見あり
  • エレベーターあり
  • コスパ重視
  • 20坪台オフィス
  • 11~15人向けオフィス

担当者コメント

担当者

本郷三宝ビル 4階 Bは、東京メトロ丸ノ内線「本郷三丁目」から徒歩5分の小規模オフィス・貸事務所です。
面積は約21坪と使い勝手が良く、スタートアップや少人数の事務所に最適です。1992年竣工の地上6階建てビルで、エレベーターやトイレなどの基本設備も整っています。駅から徒歩圏内の好立地で、日々の通勤にも大変便利です。

平面図

地図

画像をクリックすると上部の画像が切り替わります

お問い合わせいただいた後は、
経験豊富なスタッフが全力でご支援いたします!

お電話でのお問い合わせ

0120-66-7102

受付時間 10:00~18:00(土日祝日を除く)

物件については[物件No.12603-0596]とお伝えください。

メールフォームでのお問い合わせ

ログインして問い合わせる

本郷三宝ビル 4階 B (21.34坪) の基本情報

物件No 12603-0596
建物名 本郷三宝ビル 4階 B (21.34坪)
所在地
東京都文京区本郷3丁目19-7  地図を見る 文京区で他の物件を探す
募集階層/階建 地上4階 / 6階建
坪数(平米) 21.34 坪(70.54 ㎡)
築年月(竣工) 1992年10月(築33年)
耐震
構造 鉄骨鉄筋コンクリート(SRC)
最寄駅
用途 貸事務所・オフィス
最終更新日 2026年4月9日

契約条件

※表示価格はすべて税抜表示です
賃料
320,100 円(税抜)
坪単価 15,000円/坪
共益費/管理費等 無し
保証金/敷金 6ヶ月
保証金償却 確認中
礼金 1ヶ月
更新料 1ヶ月
更新
新賃料
更新事務手数料 確認中
仲介手数料 1ヶ月
造作価格
その他費用
建物賃貸借区分 普通借家契約
契約期間 2年
指定保証会社必須 要加入 (株式会社セーフティーイノベーション)※月額固定費の1ヶ月
引渡時期 お問い合わせください
引渡状態
諸条件・相談 事務所可

設備詳細・その他

設備 エレベーター、トイレ、シャワー、エアコン
エレベーター 有り
トイレ 室内、男女共用
床仕様 タイルカーペット
空調 有り
駐車場
特徴・魅力 2沿線以上利用可
事務所内装の備考
ビル設備の備考
担当者コメント 本郷三宝ビル 4階 Bは、東京メトロ丸ノ内線「本郷三丁目」から徒歩5分の小規模オフィス・貸事務所です。 面積は約21坪と使い勝手が良く、スタートアップや少人数の事務所に最適です。1992年竣工の地上6階建てビルで、エレベーターやトイレなどの基本設備も整っています。駅から徒歩圏内の好立地で、日々の通勤にも大変便利です。

動画/VR

お問い合わせいただいた後は、
経験豊富なスタッフが全力でご支援いたします!

お電話でのお問い合わせ

0120-66-7102

受付時間 10:00~18:00(土日祝日を除く)

物件については[物件No.12603-0596]とお伝えください。

メールフォームでのお問い合わせ

ログインして問い合わせる

ビルやお部屋の雰囲気

外観

周辺環境

  • 【駅】本郷三丁目駅  

  • 【駅】御茶ノ水駅  

  • 【駅】御茶ノ水駅  

  • 【駅】湯島駅  

  • 【駅】末広町駅(3番出口)  

  • 【駅】末広町駅  

  • 【駅】末広町駅(二番出口)  

  • 【駅】春日駅  

  • 【駅】末広町駅  

  • 【駅】末広町駅  

マップで見る周辺の類似物件

「人型アイコン」を地図上にドラッグすることで『Google ストリートビュー』に切り替わります。

※地図上の「対象地」は実際の場所ではない場合がございます。詳しくはお問い合わせください。

お問い合わせフォームはこちら

お問い合わせいただいた後は、
経験豊富なスタッフが全力でご支援いたします!

お電話でのお問い合わせ

0120-66-7102

受付時間 10:00~18:00(土日祝日を除く)

物件については[物件No.12603-0596]とお伝えください。

メールフォームでのお問い合わせ

ログインして問い合わせる
この物件をご覧頂くには、会員登録(無料)が必要です。【無料会員登録】
No.{{ index + 1 }}
営業おすすめ NEW

非公開 掲載終了 商談中 物件写真
{{ estate.price_pending_type_name }} 価格未定

お探しのエリアで今注目の物件

この物件をご覧頂くには、会員登録(無料)が必要です。【無料会員登録】
No.{{ index + 1 }}
営業おすすめ NEW

非公開 掲載終了 商談中 物件写真
{{ estate.price_pending_type_name }} 価格未定

近隣のよく似た物件リスト

この物件をご覧頂くには、会員登録(無料)が必要です。【無料会員登録】
No.{{ index + 1 }}
営業おすすめ NEW

非公開 掲載終了 商談中 物件写真
{{ estate.price_pending_type_name }} 価格未定

この物件と同じ特徴から探す

近隣の路線・駅から物件を探す

東京メトロ丸ノ内線 / 茗荷谷 / 後楽園 / 御茶ノ水 / 淡路町 / 大手町

近隣のエリアから物件を探す

千代田区 / 台東区 / 豊島区 / 荒川区 / 墨田区

関東エリアエリアから物件を探す

東京都 / 神奈川県 / 埼玉県 / 千葉県