ちいきぼオフィス賃貸事務所・賃貸オフィス一覧東京都の賃貸事務所・賃貸オフィス一覧品川区の賃貸事務所・賃貸オフィス一覧豊強ビル

物件No.12603-0390

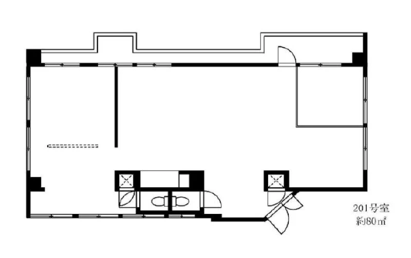
豊強ビル 2階 201号室 (24.20坪)

最終更新日:2026年3月18日

  • 賃料
    506,000 円(税抜)
  • 東京都 品川区 大井1丁目 21-2 地図で確認する
  • 大井町駅(JR京浜東北・根岸線) 徒歩3分大井町駅(東急大井町線) 徒歩3分、大井町駅(東京臨海高速鉄道りんかい線) 徒歩3分、下神明駅(東急大井町線) 徒歩7分、西大井駅(JR横須賀線) 徒歩14分
  • 7階建(1999年1月(築27年))
  • 即入居可能

この物件の特徴・魅力

  • バルコニー有
  • 駅徒歩5分以内
  • 即入居可能
  • 写真が豊富
  • エレベーターあり
  • 20坪台オフィス
  • 11~15人向けオフィス

担当者コメント

担当者

豊強ビル 2階 201号室は、JR京浜東北・根岸線「大井町」から徒歩3分の小規模オフィス・貸事務所です。駅近の利便性に加え、1999年築の地上7階建てで新耐震基準にも適合しています。24.2坪の広さは、10名程度のチームでもゆとりを持ってレイアウト可能です。トイレやエアコン、エレベーターを完備しており快適にご利用いただけます。

平面図

地図

お問い合わせいただいた後は、
経験豊富なスタッフが全力でご支援いたします!

お電話でのお問い合わせ

0120-66-7102

受付時間 10:00~18:00(土日祝日を除く)

物件については[物件No.12603-0390]とお伝えください。

メールフォームでのお問い合わせ

ログインして問い合わせる

豊強ビル 2階 201号室 (24.20坪) の基本情報

物件No 12603-0390
建物名 豊強ビル 2階 201号室 (24.20坪)
所在地
東京都品川区大井1丁目21-2  地図を見る 品川区で他の物件を探す
募集階層/階建 地上2階 / 7階建
坪数(平米) 24.20 坪(80.00 ㎡)
築年月(竣工) 1999年1月(築27年)
耐震
構造 鉄骨造
最寄駅
用途 貸事務所・オフィス
最終更新日 2026年3月18日

契約条件

※表示価格はすべて税抜表示です
賃料
506,000 円(税抜)
坪単価 20,909円/坪
共益費/管理費等 22,000円
保証金/敷金 4ヶ月
保証金償却 1ヶ月
礼金 1ヶ月
更新料 1ヶ月
更新
更新事務手数料 0.55ヶ月
仲介手数料 確認中
造作価格
その他費用 指定保険加入/書類作成費:11,000円/鍵交換費:22,000円~
建物賃貸借区分 普通借家契約
契約期間 2年
指定保証会社必須 要加入
引渡時期 即入居可能
引渡状態
諸条件・相談 事務所可

設備詳細・その他

設備 エアコン、トイレ、エレベーター
エレベーター 有り
トイレ 室内
床仕様
空調 有り
駐車場
特徴・魅力 2沿線以上利用可
事務所内装の備考 照明器具
ビル設備の備考
担当者コメント 豊強ビル 2階 201号室は、JR京浜東北・根岸線「大井町」から徒歩3分の小規模オフィス・貸事務所です。駅近の利便性に加え、1999年築の地上7階建てで新耐震基準にも適合しています。24.2坪の広さは、10名程度のチームでもゆとりを持ってレイアウト可能です。トイレやエアコン、エレベーターを完備しており快適にご利用いただけます。

お問い合わせいただいた後は、
経験豊富なスタッフが全力でご支援いたします!

お電話でのお問い合わせ

0120-66-7102

受付時間 10:00~18:00(土日祝日を除く)

物件については[物件No.12603-0390]とお伝えください。

メールフォームでのお問い合わせ

ログインして問い合わせる

ビルやお部屋の雰囲気

外観

内観・その他

周辺環境

  • 【周辺の街並み】周辺の様子  

  • 【駅】大森駅  

  • 【駅】大森駅 北口  

マップで見る周辺の類似物件

「人型アイコン」を地図上にドラッグすることで『Google ストリートビュー』に切り替わります。

※地図上の「対象地」は実際の場所ではない場合がございます。詳しくはお問い合わせください。

お問い合わせフォームはこちら

お問い合わせいただいた後は、
経験豊富なスタッフが全力でご支援いたします!

お電話でのお問い合わせ

0120-66-7102

受付時間 10:00~18:00(土日祝日を除く)

物件については[物件No.12603-0390]とお伝えください。

メールフォームでのお問い合わせ

ログインして問い合わせる
この物件をご覧頂くには、会員登録(無料)が必要です。【無料会員登録】
No.{{ index + 1 }}
営業おすすめ NEW

非公開 掲載終了 商談中 物件写真
{{ estate.price_pending_type_name }} 価格未定

お探しのエリアで今注目の物件

この物件をご覧頂くには、会員登録(無料)が必要です。【無料会員登録】
No.{{ index + 1 }}
営業おすすめ NEW

非公開 掲載終了 商談中 物件写真
{{ estate.price_pending_type_name }} 価格未定

近隣のよく似た物件リスト

この物件をご覧頂くには、会員登録(無料)が必要です。【無料会員登録】
No.{{ index + 1 }}
営業おすすめ NEW

非公開 掲載終了 商談中 物件写真
{{ estate.price_pending_type_name }} 価格未定

この物件と同じ特徴から探す

近隣の路線・駅から物件を探す

JR京浜東北・根岸線 / 高輪ゲートウェイ / 品川 / 大森 / 蒲田 / 川崎

近隣のエリアから物件を探す

目黒区 / 大田区 / 港区 / 渋谷区 / 中央区

関東エリアエリアから物件を探す

東京都 / 神奈川県 / 埼玉県 / 千葉県