ちいきぼオフィス賃貸事務所・賃貸オフィス一覧東京都の賃貸事務所・賃貸オフィス一覧港区の賃貸事務所・賃貸オフィス一覧ガリシアヒルズ六本木

物件No.12603-0347

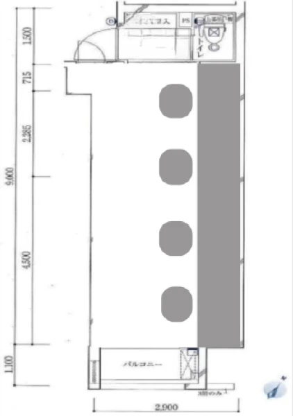
ガリシアヒルズ六本木 6階 603 (7.66坪)

最終更新日:2026年3月17日

  • 賃料
    204,545 円(税抜)
  • 東京都 港区 六本木2丁目 4-12 地図で確認する
  • 六本木一丁目駅(東京メトロ南北線) 徒歩3分六本木駅(都営大江戸線) 徒歩6分、六本木駅(東京メトロ日比谷線) 徒歩6分、赤坂駅(東京メトロ千代田線) 徒歩13分、神谷町駅(東京メトロ日比谷線) 徒歩13分
  • 2005年
  • 引渡時期はお問い合わせください

この物件の特徴・魅力

  • 駅徒歩5分以内
  • 個別空調
  • 写真が豊富
  • エレベーターあり
  • 3~5人向けオフィス

担当者コメント

担当者

ガリシアヒルズ六本木 6階 603は、東京メトロ南北線「六本木一丁目」から徒歩3分のコンパクトオフィス・貸事務所です。駅至近の好立地で、ビジネスの拠点として利便性に優れています。約7.6坪の室内は、独立開業や少人数の事務所に最適なサイズ感です。1年目の賃料が25%OFFになるキャンペーンもあり、初期コストを抑えた開設が可能です。トイレや個別空調、エレベーターを完備しており快適にご利用いただけます。

平面図

地図

お問い合わせいただいた後は、
経験豊富なスタッフが全力でご支援いたします!

お電話でのお問い合わせ

0120-66-7102

受付時間 10:00~18:00(土日祝日を除く)

物件については[物件No.12603-0347]とお伝えください。

メールフォームでのお問い合わせ

ログインして問い合わせる

ガリシアヒルズ六本木 6階 603 (7.66坪) の基本情報

物件No 12603-0347
建物名 ガリシアヒルズ六本木 6階 603 (7.66坪)
所在地
東京都港区六本木2丁目4-12  地図を見る 港区で他の物件を探す
募集階層/階建 地上6階
坪数(平米) 7.66 坪(25.32 ㎡)
築年月(竣工) 2005年
耐震
構造 その他 確認中となります。
最寄駅
用途 貸事務所・オフィス
最終更新日 2026年3月17日

契約条件

※表示価格はすべて税抜表示です
賃料
204,545 円(税抜)
坪単価 26,703円/坪
共益費/管理費等 無し
保証金/敷金 1ヶ月
保証金償却 1ヶ月
礼金 1ヶ月
更新料 1ヶ月
更新
更新事務手数料 確認中
仲介手数料 確認中
造作価格
その他費用 1年目賃料:204,545円(税抜)※1年目に限り25%OFF/2年目賃料:272,728円(税抜)
建物賃貸借区分 普通借家契約
契約期間 2年
指定保証会社必須 要加入
引渡時期 お問い合わせください
引渡状態
諸条件・相談 事務所可

設備詳細・その他

設備 温水洗浄便座、トイレ、エレベーター、エアコン、宅配ボックス
エレベーター 有り
トイレ 室内
床仕様
空調 個別空調
駐車場
特徴・魅力 2沿線以上利用可
事務所内装の備考
ビル設備の備考 トランクルーム
担当者コメント ガリシアヒルズ六本木 6階 603は、東京メトロ南北線「六本木一丁目」から徒歩3分のコンパクトオフィス・貸事務所です。駅至近の好立地で、ビジネスの拠点として利便性に優れています。約7.6坪の室内は、独立開業や少人数の事務所に最適なサイズ感です。1年目の賃料が25%OFFになるキャンペーンもあり、初期コストを抑えた開設が可能です。トイレや個別空調、エレベーターを完備しており快適にご利用いただけます。

お問い合わせいただいた後は、
経験豊富なスタッフが全力でご支援いたします!

お電話でのお問い合わせ

0120-66-7102

受付時間 10:00~18:00(土日祝日を除く)

物件については[物件No.12603-0347]とお伝えください。

メールフォームでのお問い合わせ

ログインして問い合わせる

ビルやお部屋の雰囲気

外観

内観・その他

周辺環境

  • 【コンビニ】周辺のコンビニ  

  • 【コンビニ】周辺のコンビニ  

  • 【コンビニ】周辺のコンビニ  

  • 【駅】六本木駅  

  • 【駅】六本木駅  

  • 【駅】六本木駅  

  • 【周辺の街並み】周辺の街並み  

  • 【コンビニ】周辺のコンビニ  

  • 【スーパー】周辺のスーパー  

  • 【コンビニ】周辺のコンビニ  

マップで見る周辺の類似物件

「人型アイコン」を地図上にドラッグすることで『Google ストリートビュー』に切り替わります。

※地図上の「対象地」は実際の場所ではない場合がございます。詳しくはお問い合わせください。

お問い合わせフォームはこちら

お問い合わせいただいた後は、
経験豊富なスタッフが全力でご支援いたします!

お電話でのお問い合わせ

0120-66-7102

受付時間 10:00~18:00(土日祝日を除く)

物件については[物件No.12603-0347]とお伝えください。

メールフォームでのお問い合わせ

ログインして問い合わせる
この物件をご覧頂くには、会員登録(無料)が必要です。【無料会員登録】
No.{{ index + 1 }}
営業おすすめ NEW

非公開 掲載終了 商談中 物件写真
{{ estate.price_pending_type_name }} 価格未定

お探しのエリアで今注目の物件

この物件をご覧頂くには、会員登録(無料)が必要です。【無料会員登録】
No.{{ index + 1 }}
営業おすすめ NEW

非公開 掲載終了 商談中 物件写真
{{ estate.price_pending_type_name }} 価格未定

近隣のよく似た物件リスト

この物件をご覧頂くには、会員登録(無料)が必要です。【無料会員登録】
No.{{ index + 1 }}
営業おすすめ NEW

非公開 掲載終了 商談中 物件写真
{{ estate.price_pending_type_name }} 価格未定

この物件と同じ特徴から探す

近隣の路線・駅から物件を探す

東京メトロ南北線 / 白金高輪 / 麻布十番 / 溜池山王 / 永田町 / 四ツ谷

近隣のエリアから物件を探す

中央区 / 千代田区 / 渋谷区 / 目黒区 / 文京区

関東エリアエリアから物件を探す

東京都 / 神奈川県 / 埼玉県 / 千葉県