ちいきぼオフィス賃貸事務所・賃貸オフィス一覧大阪府の賃貸事務所・賃貸オフィス一覧大阪市西区の賃貸事務所・賃貸オフィス一覧(仮称)リードシー四ツ橋ビル

物件No.12603-0246

(仮称)リードシー四ツ橋ビル 7階 A (21.83坪)

最終更新日:2026年3月25日

  • 賃料
    500,000 円(税抜)
  • 大阪府 大阪市西区 新町1丁目 16-7 地図で確認する
  • 四ツ橋駅(大阪メトロ四つ橋線) 徒歩5分心斎橋駅(大阪メトロ長堀鶴見線) 徒歩5分、心斎橋駅(大阪メトロ御堂筋線) 徒歩5分、本町駅(大阪メトロ四つ橋線) 徒歩7分、本町駅(大阪メトロ御堂筋線) 徒歩7分
  • 1986年1月(築40年)
  • 2026年5月中旬より入居可能

この物件の特徴・魅力

  • 機械警備
  • 駅徒歩5分以内
  • 個別空調
  • OAフロア
  • 写真が豊富
  • 男女別トイレ
  • セットアップ
  • 20坪台オフィス
  • 11~15人向けオフィス

担当者コメント

担当者

(仮称)リードシー四ツ橋ビル 7階 Aは、大阪メトロ四つ橋線「四ツ橋」から徒歩5分の小規模オフィス・貸事務所です。約22坪の室内は、デザイン性の高いセットアップオフィスとして提供され、内装コストを抑えつつ即戦力となる拠点を開設できます。エントランスを含む大規模リニューアルが予定されており来客時にも好印象を与えるモダンなオフィス環境が整います。トイレや個別空調を完備しており快適にご利用いただけます。

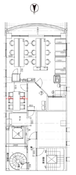
平面図

地図

お問い合わせいただいた後は、
経験豊富なスタッフが全力でご支援いたします!

お電話でのお問い合わせ

0120-66-7102

受付時間 10:00~18:00(土日祝日を除く)

物件については[物件No.12603-0246]とお伝えください。

メールフォームでのお問い合わせ

ログインして問い合わせる

(仮称)リードシー四ツ橋ビル 7階 A (21.83坪) の基本情報

物件No 12603-0246
建物名 (仮称)リードシー四ツ橋ビル 7階 A (21.83坪)
所在地
大阪府大阪市西区新町1丁目16-7  地図を見る 大阪市西区で他の物件を探す
募集階層/階建 地上7階
坪数(平米) 21.83 坪(72.16 ㎡)
築年月(竣工) 1986年1月(築40年)
耐震
構造 その他 確認中となります。
最寄駅
用途 貸事務所・オフィス
最終更新日 2026年3月25日

契約条件

※表示価格はすべて税抜表示です
賃料
500,000 円(税抜)
坪単価 22,904円/坪
共益費/管理費等 無し
保証金/敷金 無し
保証金償却 無し
礼金 無し
更新料 無し
更新事務手数料
仲介手数料 確認中
造作価格
その他費用 退去時クリーニング
建物賃貸借区分 普通借家契約
契約期間 2年
指定保証会社必須 要加入
引渡時期 2026年5月中旬より入居可能
引渡状態 セットアップオフィス
諸条件・相談 事務所可

設備詳細・その他

設備 トイレ、エアコン
エレベーター
トイレ 男女別
床仕様 OAフロア
空調 個別空調
駐車場
特徴・魅力 2沿線以上利用可
事務所内装の備考 内装家具付きフルセットアップ
ビル設備の備考 大規模リニューアル予定(1階エントランス含む)
担当者コメント (仮称)リードシー四ツ橋ビル 7階 Aは、大阪メトロ四つ橋線「四ツ橋」から徒歩5分の小規模オフィス・貸事務所です。約22坪の室内は、デザイン性の高いセットアップオフィスとして提供され、内装コストを抑えつつ即戦力となる拠点を開設できます。エントランスを含む大規模リニューアルが予定されており来客時にも好印象を与えるモダンなオフィス環境が整います。トイレや個別空調を完備しており快適にご利用いただけます。

お問い合わせいただいた後は、
経験豊富なスタッフが全力でご支援いたします!

お電話でのお問い合わせ

0120-66-7102

受付時間 10:00~18:00(土日祝日を除く)

物件については[物件No.12603-0246]とお伝えください。

メールフォームでのお問い合わせ

ログインして問い合わせる

ビルやお部屋の雰囲気

外観

内観・その他

周辺環境

  • 【駅】四ツ橋駅  

  • 【駅】心斎橋駅  

  • 【駅】本町駅  

マップで見る周辺の類似物件

「人型アイコン」を地図上にドラッグすることで『Google ストリートビュー』に切り替わります。

※地図上の「対象地」は実際の場所ではない場合がございます。詳しくはお問い合わせください。

お問い合わせフォームはこちら

お問い合わせいただいた後は、
経験豊富なスタッフが全力でご支援いたします!

お電話でのお問い合わせ

0120-66-7102

受付時間 10:00~18:00(土日祝日を除く)

物件については[物件No.12603-0246]とお伝えください。

メールフォームでのお問い合わせ

ログインして問い合わせる
この物件をご覧頂くには、会員登録(無料)が必要です。【無料会員登録】
No.{{ index + 1 }}
営業おすすめ NEW

非公開 掲載終了 商談中 物件写真
{{ estate.price_pending_type_name }} 価格未定

お探しのエリアで今注目の物件

この物件をご覧頂くには、会員登録(無料)が必要です。【無料会員登録】
No.{{ index + 1 }}
営業おすすめ NEW

非公開 掲載終了 商談中 物件写真
{{ estate.price_pending_type_name }} 価格未定

近隣のよく似た物件リスト

この物件をご覧頂くには、会員登録(無料)が必要です。【無料会員登録】
No.{{ index + 1 }}
営業おすすめ NEW

非公開 掲載終了 商談中 物件写真
{{ estate.price_pending_type_name }} 価格未定

この物件と同じ特徴から探す

近隣の路線・駅から物件を探す

大阪メトロ四つ橋線 / 西梅田 / 肥後橋 / 本町

近隣のエリアから物件を探す

大阪市中央区 / 大阪市浪速区 / 大阪市福島区 / 大阪市大正区 / 大阪市天王寺区

近畿エリアエリアから物件を探す

大阪府 / 兵庫県 / 京都府