ちいきぼオフィス賃貸事務所・賃貸オフィス一覧東京都の賃貸事務所・賃貸オフィス一覧港区の賃貸事務所・賃貸オフィス一覧パラシオン浜松

物件No.12603-0172

パラシオン浜松 3階 (6.70坪)

最終更新日:2026年3月19日

  • 賃料
    72,728 円(税抜)
  • 東京都 港区 浜松町1丁目 2-19 地図で確認する
  • 大門駅(都営浅草線) 徒歩5分大門駅(都営大江戸線) 徒歩5分、御成門駅(都営三田線) 徒歩7分、浜松町駅(JR山手線) 徒歩7分、浜松町駅(JR京浜東北・根岸線) 徒歩7分
  • 11階建(1980年5月(築45年))
  • 即入居可能

この物件の特徴・魅力

  • 駅徒歩5分以内
  • 即入居可能
  • 写真が豊富
  • エレベーターあり
  • コスパ重視
  • 3~5人向けオフィス

担当者コメント

担当者

パラシオン浜松 3階は、都営浅草線「大門」から徒歩5分のコンパクトオフィス・貸事務所です。
室内はリフォーム済みで、清潔感のある空間が広がっています 。6.7坪のコンパクトなサイズ感は、創業期のスタートアップや個人事業主の方に最適です 。大門駅から徒歩圏内という利便性に加え、トイレやエレベーターも完備されています 。

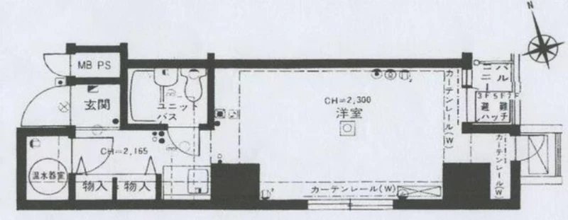
平面図

地図

お問い合わせいただいた後は、
経験豊富なスタッフが全力でご支援いたします!

お電話でのお問い合わせ

0120-66-7102

受付時間 10:00~18:00(土日祝日を除く)

物件については[物件No.12603-0172]とお伝えください。

メールフォームでのお問い合わせ

ログインして問い合わせる

パラシオン浜松 3階 (6.70坪) の基本情報

物件No 12603-0172
建物名 パラシオン浜松 3階 (6.70坪)
所在地
東京都港区浜松町1丁目2-19  地図を見る 港区で他の物件を探す
募集階層/階建 地上3階 / 11階建
坪数(平米) 6.70 坪(22.15 ㎡)
築年月(竣工) 1980年5月(築45年)
耐震
構造 鉄骨鉄筋コンクリート(SRC)
最寄駅
用途 貸事務所・オフィス
最終更新日 2026年3月19日

契約条件

※表示価格はすべて税抜表示です
賃料
72,728 円(税抜)
坪単価 10,854円/坪
共益費/管理費等 8,000円
保証金/敷金 3ヶ月
保証金償却 1ヶ月
礼金 1ヶ月
更新料 1ヶ月
更新
新賃料
更新事務手数料 確認中
仲介手数料 確認中
造作価格
その他費用
建物賃貸借区分
契約期間 2年
指定保証会社必須 要加入
引渡時期 即入居可能
引渡状態
諸条件・相談 事務所可

設備詳細・その他

設備 トイレ、エレベーター
エレベーター 有り
トイレ 室内
床仕様
空調
駐車場
特徴・魅力 2沿線以上利用可
事務所内装の備考 室内リフォーム済
ビル設備の備考
担当者コメント パラシオン浜松 3階は、都営浅草線「大門」から徒歩5分のコンパクトオフィス・貸事務所です。 室内はリフォーム済みで、清潔感のある空間が広がっています 。6.7坪のコンパクトなサイズ感は、創業期のスタートアップや個人事業主の方に最適です 。大門駅から徒歩圏内という利便性に加え、トイレやエレベーターも完備されています 。

お問い合わせいただいた後は、
経験豊富なスタッフが全力でご支援いたします!

お電話でのお問い合わせ

0120-66-7102

受付時間 10:00~18:00(土日祝日を除く)

物件については[物件No.12603-0172]とお伝えください。

メールフォームでのお問い合わせ

ログインして問い合わせる

ビルやお部屋の雰囲気

外観

内観・その他

周辺環境

  • 【駅】大門駅  

  • 【駅】JR浜松町駅 北口  

  • 【駅】都営三田線 御成門駅 A4出口  

  • 【駅】汐留駅  

  • 【駅】JR浜松町駅  

  • 【駅】新橋駅  

マップで見る周辺の類似物件

「人型アイコン」を地図上にドラッグすることで『Google ストリートビュー』に切り替わります。

※地図上の「対象地」は実際の場所ではない場合がございます。詳しくはお問い合わせください。

お問い合わせフォームはこちら

お問い合わせいただいた後は、
経験豊富なスタッフが全力でご支援いたします!

お電話でのお問い合わせ

0120-66-7102

受付時間 10:00~18:00(土日祝日を除く)

物件については[物件No.12603-0172]とお伝えください。

メールフォームでのお問い合わせ

ログインして問い合わせる
この物件をご覧頂くには、会員登録(無料)が必要です。【無料会員登録】
No.{{ index + 1 }}
営業おすすめ NEW

非公開 掲載終了 商談中 物件写真
{{ estate.price_pending_type_name }} 価格未定

お探しのエリアで今注目の物件

この物件をご覧頂くには、会員登録(無料)が必要です。【無料会員登録】
No.{{ index + 1 }}
営業おすすめ NEW

非公開 掲載終了 商談中 物件写真
{{ estate.price_pending_type_name }} 価格未定

近隣のよく似た物件リスト

この物件をご覧頂くには、会員登録(無料)が必要です。【無料会員登録】
No.{{ index + 1 }}
営業おすすめ NEW

非公開 掲載終了 商談中 物件写真
{{ estate.price_pending_type_name }} 価格未定

この物件と同じ特徴から探す

近隣の路線・駅から物件を探す

都営浅草線 / 東銀座 / 新橋 / 三田 / 泉岳寺 / 高輪台

近隣のエリアから物件を探す

中央区 / 千代田区 / 渋谷区 / 目黒区 / 文京区

関東エリアエリアから物件を探す

東京都 / 神奈川県 / 埼玉県 / 千葉県