ちいきぼオフィス賃貸事務所・賃貸オフィス一覧東京都の賃貸事務所・賃貸オフィス一覧港区の賃貸事務所・賃貸オフィス一覧ARZ芝大門

物件No.12603-0152

ARZ芝大門 4階 (29.44坪)

最終更新日:2026年4月3日

  • 賃料
    912,640 円(税抜)
  • 東京都 港区 芝大門1丁目 6-1 地図で確認する
  • 大門駅(都営浅草線) 徒歩3分大門駅(都営大江戸線) 徒歩3分、御成門駅(都営三田線) 徒歩6分、浜松町駅(JR山手線) 徒歩8分、浜松町駅(JR京浜東北・根岸線) 徒歩8分
  • 5階建(地下1階建)(新耐震基準/1984年7月(築41年))
  • 引渡時期はお問い合わせください

この物件の特徴・魅力

  • 機械警備
  • 駅徒歩5分以内
  • 個別空調
  • OAフロア
  • 写真が豊富
  • 男女別トイレ
  • エレベーターあり
  • セットアップ
  • 20坪台オフィス
  • 11~15人向けオフィス

担当者コメント

担当者

ARZ芝大門 4階は、都営浅草線「大門」から徒歩3分の小規模オフィス・貸事務所です。 2026年3月に大規模リニューアルが完了予定で、室内は清潔感にあふれています。 会議室2室や個室ブースを備えたハーフセットアップ仕様で、初期費用を抑えた開設が可能です。 執務室は20席程度を確保でき、スタートアップにも最適です。トイレ、個別空調、エレベーターを完備しており快適にご利用いただけます

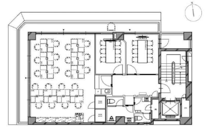
平面図

地図

お問い合わせいただいた後は、
経験豊富なスタッフが全力でご支援いたします!

お電話でのお問い合わせ

0120-66-7102

受付時間 10:00~18:00(土日祝日を除く)

物件については[物件No.12603-0152]とお伝えください。

メールフォームでのお問い合わせ

ログインして問い合わせる

ARZ芝大門 4階 (29.44坪) の基本情報

物件No 12603-0152
建物名 ARZ芝大門 4階 (29.44坪)
所在地
東京都港区芝大門1丁目6-1  地図を見る 港区で他の物件を探す
募集階層/階建 地上4階 / 5階建(地下1階建)
坪数(平米) 29.44 坪(97.32 ㎡)
築年月(竣工) 1984年7月(築41年)
耐震 新耐震基準
構造 鉄筋コンクリート(RC)
最寄駅
用途 貸事務所・オフィス
最終更新日 2026年4月3日

契約条件

※表示価格はすべて税抜表示です
賃料
912,640 円(税抜)
坪単価 31,000円/坪
共益費/管理費等 無し
保証金/敷金 6ヶ月
保証金償却 無し
礼金 無し
更新料 1ヶ月
更新
新賃料
更新事務手数料 確認中
仲介手数料 確認中
造作価格
その他費用
建物賃貸借区分 普通借家契約
契約期間 2年
指定保証会社必須 要加入
引渡時期 お問い合わせください
引渡状態 セットアップオフィス
諸条件・相談 事務所可

設備詳細・その他

設備 エレベーター、エアコン、トイレ
エレベーター 有り
トイレ 男女別
床仕様 OAフロア
空調 個別空調
駐車場
特徴・魅力 2沿線以上利用可
事務所内装の備考 ハーフセットアップオフィス(執務室20席想定)・会議室×2(6名用)・個室ブース×2
ビル設備の備考 大規模リニューアル工事実施中※2026年3月リニューアル完了予定
担当者コメント ARZ芝大門 4階は、都営浅草線「大門」から徒歩3分の小規模オフィス・貸事務所です。 2026年3月に大規模リニューアルが完了予定で、室内は清潔感にあふれています。 会議室2室や個室ブースを備えたハーフセットアップ仕様で、初期費用を抑えた開設が可能です。 執務室は20席程度を確保でき、スタートアップにも最適です。トイレ、個別空調、エレベーターを完備しており快適にご利用いただけます

お問い合わせいただいた後は、
経験豊富なスタッフが全力でご支援いたします!

お電話でのお問い合わせ

0120-66-7102

受付時間 10:00~18:00(土日祝日を除く)

物件については[物件No.12603-0152]とお伝えください。

メールフォームでのお問い合わせ

ログインして問い合わせる

ビルやお部屋の雰囲気

外観

内観・その他

周辺環境

  • 【駅】都営地下鉄 大門駅  

  • 【駅】都営三田線 御成門駅 A4出口  

  • 【駅】芝公園駅  

  • 【駅】汐留駅  

  • 【駅】神谷町駅  

マップで見る周辺の類似物件

「人型アイコン」を地図上にドラッグすることで『Google ストリートビュー』に切り替わります。

※地図上の「対象地」は実際の場所ではない場合がございます。詳しくはお問い合わせください。

お問い合わせフォームはこちら

お問い合わせいただいた後は、
経験豊富なスタッフが全力でご支援いたします!

お電話でのお問い合わせ

0120-66-7102

受付時間 10:00~18:00(土日祝日を除く)

物件については[物件No.12603-0152]とお伝えください。

メールフォームでのお問い合わせ

ログインして問い合わせる
この物件をご覧頂くには、会員登録(無料)が必要です。【無料会員登録】
No.{{ index + 1 }}
営業おすすめ NEW

非公開 掲載終了 商談中 物件写真
{{ estate.price_pending_type_name }} 価格未定

お探しのエリアで今注目の物件

この物件をご覧頂くには、会員登録(無料)が必要です。【無料会員登録】
No.{{ index + 1 }}
営業おすすめ NEW

非公開 掲載終了 商談中 物件写真
{{ estate.price_pending_type_name }} 価格未定

近隣のよく似た物件リスト

この物件をご覧頂くには、会員登録(無料)が必要です。【無料会員登録】
No.{{ index + 1 }}
営業おすすめ NEW

非公開 掲載終了 商談中 物件写真
{{ estate.price_pending_type_name }} 価格未定

この物件と同じ特徴から探す

近隣の路線・駅から物件を探す

都営浅草線 / 東銀座 / 新橋 / 三田 / 泉岳寺 / 高輪台

近隣のエリアから物件を探す

中央区 / 千代田区 / 渋谷区 / 目黒区 / 文京区

関東エリアエリアから物件を探す

東京都 / 神奈川県 / 埼玉県 / 千葉県