ちいきぼオフィス賃貸事務所・賃貸オフィス一覧東京都の賃貸事務所・賃貸オフィス一覧中央区の賃貸事務所・賃貸オフィス一覧パークリュクス銀座mono

物件No.12603-0127

パークリュクス銀座mono 8階 806号室 (13.13坪)

最終更新日:2026年4月3日

  • 賃料
    381,819 円(税抜)
  • 東京都 中央区 銀座8丁目 18-7 地図で確認する
  • 築地市場駅(都営大江戸線) 徒歩3分東銀座駅(東京メトロ日比谷線) 徒歩5分、東銀座駅(都営浅草線) 徒歩5分、銀座駅(東京メトロ銀座線) 徒歩10分、銀座駅(東京メトロ丸ノ内線) 徒歩10分
  • 13階建(2016年2月(築10年))
  • 引渡時期はお問い合わせください

この物件の特徴・魅力

  • 駅徒歩5分以内
  • 写真が豊富
  • 駐車場あり
  • エレベーターあり
  • セットアップ
  • 10坪台オフィス
  • 6~10人向けオフィス

担当者コメント

担当者

パークリュクス銀座mono 8階 806号室は、都営大江戸線「築地市場」から徒歩3分のコンパクトオフィス・貸事務所です。
駅から徒歩3分の好立地で、2016年竣工の築浅物件です。室内はワークデスクやソファ等の什器が完備されたセットアップオフィスとして提供されます。内装工事後の引渡しとなるため、スムーズに業務を開始できます。トイレやエアコン、エレベーターを完備しており快適にご利用いただけます。

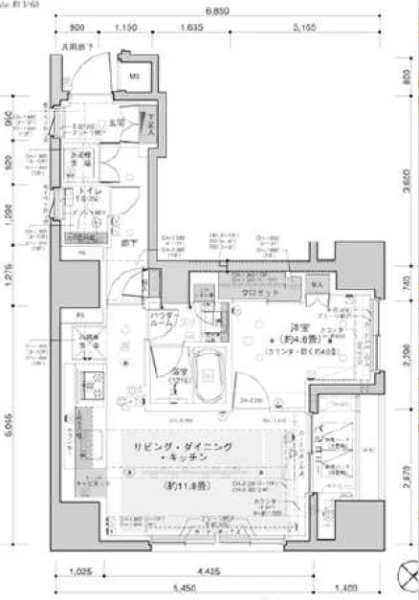
平面図

地図

お問い合わせいただいた後は、
経験豊富なスタッフが全力でご支援いたします!

お電話でのお問い合わせ

0120-66-7102

受付時間 10:00~18:00(土日祝日を除く)

物件については[物件No.12603-0127]とお伝えください。

メールフォームでのお問い合わせ

ログインして問い合わせる

パークリュクス銀座mono 8階 806号室 (13.13坪) の基本情報

物件No 12603-0127
建物名 パークリュクス銀座mono 8階 806号室 (13.13坪)
所在地
東京都中央区銀座8丁目18-7  地図を見る 中央区で他の物件を探す
募集階層/階建 地上8階 / 13階建
坪数(平米) 13.13 坪(43.40 ㎡)
築年月(竣工) 2016年2月(築10年)
耐震
構造 鉄筋コンクリート(RC)
最寄駅
用途 貸事務所・オフィス
最終更新日 2026年4月3日

契約条件

※表示価格はすべて税抜表示です
賃料
381,819 円(税抜)
坪単価 29,079円/坪
共益費/管理費等 確認中
保証金/敷金 1ヶ月
保証金償却 1ヶ月
礼金 1ヶ月
更新料 1ヶ月
更新
新賃料
更新事務手数料 確認中
仲介手数料 確認中
造作価格
その他費用 解約予告:6ヵ月前/火災保険加入
建物賃貸借区分 普通借家契約
契約期間 2年
指定保証会社必須 要加入
引渡時期 お問い合わせください
引渡状態 セットアップオフィス
諸条件・相談 事務所可

設備詳細・その他

設備 エレベーター、トイレ、オートロック、宅配ボックス、エアコン、温水洗浄便座、駐輪場
エレベーター 有り
トイレ 有り
床仕様
空調 有り
駐車場 有 
特徴・魅力 2沿線以上利用可
事務所内装の備考 12月上旬~内装工事でセットアップ予定/什器完備(ワークデスク・ソファ等)/エアコン機能保証なし
ビル設備の備考 防犯カメラ
担当者コメント パークリュクス銀座mono 8階 806号室は、都営大江戸線「築地市場」から徒歩3分のコンパクトオフィス・貸事務所です。 駅から徒歩3分の好立地で、2016年竣工の築浅物件です。室内はワークデスクやソファ等の什器が完備されたセットアップオフィスとして提供されます。内装工事後の引渡しとなるため、スムーズに業務を開始できます。トイレやエアコン、エレベーターを完備しており快適にご利用いただけます。

お問い合わせいただいた後は、
経験豊富なスタッフが全力でご支援いたします!

お電話でのお問い合わせ

0120-66-7102

受付時間 10:00~18:00(土日祝日を除く)

物件については[物件No.12603-0127]とお伝えください。

メールフォームでのお問い合わせ

ログインして問い合わせる

ビルやお部屋の雰囲気

外観

内観・その他

周辺環境

  • 【コンビニ】周辺のコンビニ  

  • 【コンビニ】周辺のコンビニ  

  • 【コンビニ】周辺のコンビニ  

  • 【駅】築地市場駅  

  • 【駅】東銀座駅  

  • 【駅】東銀座駅  

  • 【駅】銀座駅  

  • 【コンビニ】周辺のコンビニ  

  • 【銀行】周辺の銀行  

  • 【スーパー】周辺のスーパー  

マップで見る周辺の類似物件

「人型アイコン」を地図上にドラッグすることで『Google ストリートビュー』に切り替わります。

※地図上の「対象地」は実際の場所ではない場合がございます。詳しくはお問い合わせください。

お問い合わせフォームはこちら

お問い合わせいただいた後は、
経験豊富なスタッフが全力でご支援いたします!

お電話でのお問い合わせ

0120-66-7102

受付時間 10:00~18:00(土日祝日を除く)

物件については[物件No.12603-0127]とお伝えください。

メールフォームでのお問い合わせ

ログインして問い合わせる
この物件をご覧頂くには、会員登録(無料)が必要です。【無料会員登録】
No.{{ index + 1 }}
営業おすすめ NEW

非公開 掲載終了 商談中 物件写真
{{ estate.price_pending_type_name }} 価格未定

お探しのエリアで今注目の物件

この物件をご覧頂くには、会員登録(無料)が必要です。【無料会員登録】
No.{{ index + 1 }}
営業おすすめ NEW

非公開 掲載終了 商談中 物件写真
{{ estate.price_pending_type_name }} 価格未定

近隣のよく似た物件リスト

この物件をご覧頂くには、会員登録(無料)が必要です。【無料会員登録】
No.{{ index + 1 }}
営業おすすめ NEW

非公開 掲載終了 商談中 物件写真
{{ estate.price_pending_type_name }} 価格未定

この物件と同じ特徴から探す

近隣の路線・駅から物件を探す

都営大江戸線 / 月島 / 勝どき / 汐留 / 大門 / 赤羽橋

近隣のエリアから物件を探す

港区 / 千代田区 / 江東区 / 文京区 / 台東区

関東エリアエリアから物件を探す

東京都 / 神奈川県 / 埼玉県 / 千葉県