ちいきぼオフィス賃貸事務所・賃貸オフィス一覧東京都の賃貸事務所・賃貸オフィス一覧渋谷区の賃貸事務所・賃貸オフィス一覧渋谷TSKビル

物件No.12603-0029

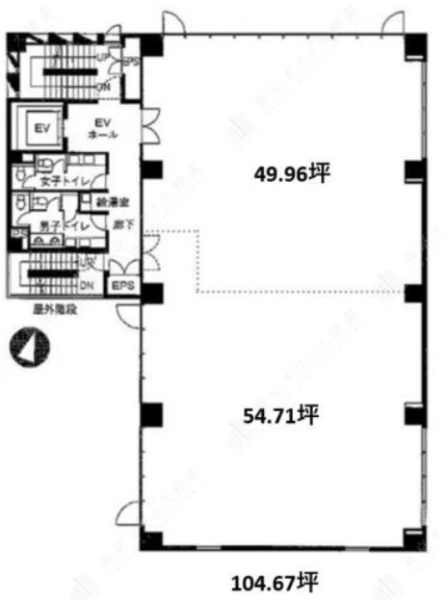
渋谷TSKビル 4階 (49.87坪)

最終更新日:2026年3月9日

  • 賃料
    1,373,900 円(税抜)
  • 東京都 渋谷区 南平台町 3-8 地図で確認する
  • 渋谷駅(JR山手線) 徒歩8分渋谷駅(京王井の頭線) 徒歩8分、渋谷駅(東京メトロ半蔵門線) 徒歩8分、渋谷駅(東急東横線) 徒歩8分、神泉駅(京王井の頭線) 徒歩7分
  • 4階建(地下1階建)(新耐震基準/2008年6月(築17年))
  • 即入居可能

この物件の特徴・魅力

  • 即入居可能
  • 個別空調
  • OAフロア
  • 写真が豊富
  • 男女別トイレ
  • エレベーターあり
  • 40坪台オフィス
  • 21~30人向けオフィス

担当者コメント

担当者

渋谷TSKビル 4階は、JR山手線「渋谷駅」から徒歩8分の中規模オフィス・貸事務所です。
落ち着いた雰囲気の南平台町エリアに位置し、天井高2.5m以上の開放感ある空間が魅力です。約50坪弱のワンフロア占有タイプで、光ファイバーや個別空調、トイレ、エレベーターなどビジネスインフラも充実しています。礼金・更新料が0ヶ月と、ランニングコストを抑えた拠点開設が可能です。

平面図

地図

お問い合わせいただいた後は、
経験豊富なスタッフが全力でご支援いたします!

お電話でのお問い合わせ

0120-66-7102

受付時間 10:00~18:00(土日祝日を除く)

物件については[物件No.12603-0029]とお伝えください。

メールフォームでのお問い合わせ

ログインして問い合わせる

渋谷TSKビル 4階 (49.87坪) の基本情報

物件No 12603-0029
建物名 渋谷TSKビル 4階 (49.87坪)
所在地
東京都渋谷区南平台町3-8  地図を見る 渋谷区で他の物件を探す
募集階層/階建 地上4階 / 4階建(地下1階建)
坪数(平米) 49.87 坪(164.86 ㎡)
築年月(竣工) 2008年6月(築17年)
耐震 新耐震基準
構造 鉄筋コンクリート(RC)
最寄駅
用途 貸事務所・オフィス
最終更新日 2026年3月9日

契約条件

※表示価格はすべて税抜表示です
賃料
1,373,900 円(税抜)
坪単価 27,549円/坪
共益費/管理費等 確認中
保証金/敷金 12ヶ月
保証金償却 確認中
礼金 無し
更新料 無し
更新事務手数料 確認中
仲介手数料 確認中
造作価格
その他費用
建物賃貸借区分
契約期間 2年
指定保証会社必須 要加入
引渡時期 即入居可能
引渡状態
諸条件・相談 事務所可

設備詳細・その他

設備 トイレ、エレベーター、エアコン、給湯、24時間セキュリティ
エレベーター 有り
トイレ 共用部、男女別
床仕様 OAフロア
空調 個別空調
駐車場
特徴・魅力 2沿線以上利用可、耐震構造
事務所内装の備考 天井高2.5m以上
ビル設備の備考 光ファイバー
担当者コメント 渋谷TSKビル 4階は、JR山手線「渋谷駅」から徒歩8分の中規模オフィス・貸事務所です。 落ち着いた雰囲気の南平台町エリアに位置し、天井高2.5m以上の開放感ある空間が魅力です。約50坪弱のワンフロア占有タイプで、光ファイバーや個別空調、トイレ、エレベーターなどビジネスインフラも充実しています。礼金・更新料が0ヶ月と、ランニングコストを抑えた拠点開設が可能です。

お問い合わせいただいた後は、
経験豊富なスタッフが全力でご支援いたします!

お電話でのお問い合わせ

0120-66-7102

受付時間 10:00~18:00(土日祝日を除く)

物件については[物件No.12603-0029]とお伝えください。

メールフォームでのお問い合わせ

ログインして問い合わせる

ビルやお部屋の雰囲気

外観

内観・その他

周辺環境

  • 【駅】渋谷駅 A0出口  

マップで見る周辺の類似物件

「人型アイコン」を地図上にドラッグすることで『Google ストリートビュー』に切り替わります。

※地図上の「対象地」は実際の場所ではない場合がございます。詳しくはお問い合わせください。

お問い合わせフォームはこちら

お問い合わせいただいた後は、
経験豊富なスタッフが全力でご支援いたします!

お電話でのお問い合わせ

0120-66-7102

受付時間 10:00~18:00(土日祝日を除く)

物件については[物件No.12603-0029]とお伝えください。

メールフォームでのお問い合わせ

ログインして問い合わせる
この物件をご覧頂くには、会員登録(無料)が必要です。【無料会員登録】
No.{{ index + 1 }}
営業おすすめ NEW

非公開 掲載終了 商談中 物件写真
{{ estate.price_pending_type_name }} 価格未定

お探しのエリアで今注目の物件

この物件をご覧頂くには、会員登録(無料)が必要です。【無料会員登録】
No.{{ index + 1 }}
営業おすすめ NEW

非公開 掲載終了 商談中 物件写真
{{ estate.price_pending_type_name }} 価格未定

近隣のよく似た物件リスト

この物件をご覧頂くには、会員登録(無料)が必要です。【無料会員登録】
No.{{ index + 1 }}
営業おすすめ NEW

非公開 掲載終了 商談中 物件写真
{{ estate.price_pending_type_name }} 価格未定

この物件と同じ特徴から探す

近隣の路線・駅から物件を探す

JR山手線 / 目黒 / 恵比寿 / 原宿 / 代々木 / 新宿

近隣のエリアから物件を探す

目黒区 / 新宿区 / 港区 / 世田谷区 / 千代田区

関東エリアエリアから物件を探す

東京都 / 神奈川県 / 埼玉県 / 千葉県