ちいきぼオフィス賃貸事務所・賃貸オフィス一覧東京都の賃貸事務所・賃貸オフィス一覧墨田区の賃貸事務所・賃貸オフィス一覧バイリンクビル錦糸町駅前

物件No.12602-0487

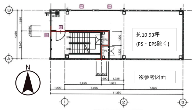
バイリンクビル錦糸町駅前 3階 (10.94坪)

最終更新日:2026年3月4日

  • 賃料
    420,000 円(税抜)
  • 東京都 墨田区 錦糸3丁目 4-1 地図で確認する
  • 錦糸町駅(JR総武本線) 徒歩1分錦糸町駅(東京メトロ半蔵門線) 徒歩1分、錦糸町駅(JR総武・中央緩行線) 徒歩1分
  • 4階建(2025年11月(築0年))
  • 引渡時期はお問い合わせください

この物件の特徴・魅力

  • 24時間利用可能
  • 営業おすすめ
  • 駅徒歩5分以内
  • 写真が豊富
  • VR内見あり
  • スケルトン
  • 10坪台オフィス
  • 6~10人向けオフィス

担当者コメント

担当者

バイリンクビル錦糸町駅前 3階は、JR総武本線「錦糸町」から徒歩1分のコンパクトオフィス・貸事務所です。
2025年11月竣工予定の新築物件で、駅至近の視認性に優れた好立地が魅力です。
現状スケルトンですが、改装協力金の制度もあり、理想のオフィス空間を一から構築できます。

平面図準備中

平面図

地図

お問い合わせいただいた後は、
経験豊富なスタッフが全力でご支援いたします!

お電話でのお問い合わせ

0120-66-7102

受付時間 10:00~18:00(土日祝日を除く)

物件については[物件No.12602-0487]とお伝えください。

メールフォームでのお問い合わせ

ログインして問い合わせる

バイリンクビル錦糸町駅前 3階 (10.94坪) の基本情報

物件No 12602-0487
建物名 バイリンクビル錦糸町駅前 3階 (10.94坪)
所在地
東京都墨田区錦糸3丁目4-1  地図を見る 墨田区で他の物件を探す
募集階層/階建 地上3階 / 4階建
坪数(平米) 10.94 坪(36.16 ㎡)
築年月(竣工) 2025年11月(築0年)
耐震
構造 鉄骨造
最寄駅
用途 貸事務所・オフィス
店舗としてのご利用も可能です。詳細はお問い合わせください。
最終更新日 2026年3月4日

契約条件

※表示価格はすべて税抜表示です
賃料
420,000 円(税抜)
坪単価 38,391円/坪
共益費/管理費等 無し
保証金/敷金 2ヶ月
保証金償却 無し
礼金 2ヶ月
更新料 確認中
更新事務手数料 確認中
仲介手数料 確認中
造作価格
その他費用 火災保険加入要/鍵交換代:実費/現状スケルトン:改装協力金250万貸主負担/2年以内の解約時は短期違約金として賃料2ヵ月分要
建物賃貸借区分 定期借家契約
契約期間 10年
指定保証会社必須 要加入 (株式会社セーフティーイノベーション)※月額固定費の1ヶ月
引渡時期 お問い合わせください
引渡状態 スケルトン
諸条件・相談 事務所可

設備詳細・その他

設備 電気、都市ガス、下水道、上水道
エレベーター
トイレ
床仕様
空調
駐車場
特徴・魅力 2沿線以上利用可
事務所内装の備考
ビル設備の備考 電灯:60A/動力:25A
担当者コメント バイリンクビル錦糸町駅前 3階は、JR総武本線「錦糸町」から徒歩1分のコンパクトオフィス・貸事務所です。 2025年11月竣工予定の新築物件で、駅至近の視認性に優れた好立地が魅力です。 現状スケルトンですが、改装協力金の制度もあり、理想のオフィス空間を一から構築できます。

動画/VR

お問い合わせいただいた後は、
経験豊富なスタッフが全力でご支援いたします!

お電話でのお問い合わせ

0120-66-7102

受付時間 10:00~18:00(土日祝日を除く)

物件については[物件No.12602-0487]とお伝えください。

メールフォームでのお問い合わせ

ログインして問い合わせる

ビルやお部屋の雰囲気

外観

内観・その他

周辺環境

  • 【駅】総武線錦糸町駅  

マップで見る周辺の類似物件

「人型アイコン」を地図上にドラッグすることで『Google ストリートビュー』に切り替わります。

※地図上の「対象地」は実際の場所ではない場合がございます。詳しくはお問い合わせください。

お問い合わせフォームはこちら

お問い合わせいただいた後は、
経験豊富なスタッフが全力でご支援いたします!

お電話でのお問い合わせ

0120-66-7102

受付時間 10:00~18:00(土日祝日を除く)

物件については[物件No.12602-0487]とお伝えください。

メールフォームでのお問い合わせ

ログインして問い合わせる
この物件をご覧頂くには、会員登録(無料)が必要です。【無料会員登録】
No.{{ index + 1 }}
営業おすすめ NEW

非公開 掲載終了 商談中 物件写真
{{ estate.price_pending_type_name }} 価格未定

お探しのエリアで今注目の物件

この物件をご覧頂くには、会員登録(無料)が必要です。【無料会員登録】
No.{{ index + 1 }}
営業おすすめ NEW

非公開 掲載終了 商談中 物件写真
{{ estate.price_pending_type_name }} 価格未定

近隣のよく似た物件リスト

この物件をご覧頂くには、会員登録(無料)が必要です。【無料会員登録】
No.{{ index + 1 }}
営業おすすめ NEW

非公開 掲載終了 商談中 物件写真
{{ estate.price_pending_type_name }} 価格未定

この物件と同じ特徴から探す

近隣の路線・駅から物件を探す

JR総武本線 / 新日本橋 / 馬喰町 / 新小岩 / 市川 / 船橋

近隣のエリアから物件を探す

台東区 / 荒川区 / 文京区 / 江東区 / 千代田区

関東エリアエリアから物件を探す

東京都 / 神奈川県 / 埼玉県 / 千葉県