ちいきぼオフィス賃貸事務所・賃貸オフィス一覧大阪府の賃貸事務所・賃貸オフィス一覧大阪市北区の賃貸事務所・賃貸オフィス一覧西天満パークビル4号館

物件No.12602-0394

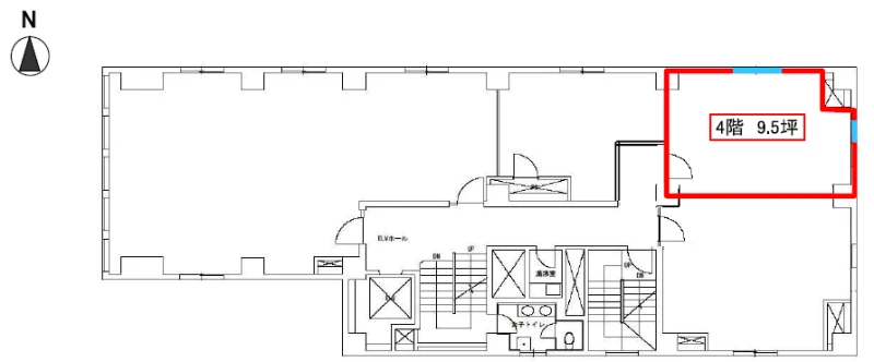
西天満パークビル4号館 4階 (9.50坪)

最終更新日:2026年2月26日

  • 賃料
    114,000 円(税抜)
  • 大阪府 大阪市北区 西天満3丁目 13-9 地図で確認する
  • 南森町駅(大阪メトロ谷町線) 徒歩5分南森町駅(大阪メトロ堺筋線) 徒歩5分、大阪天満宮駅(JR東西線) 徒歩6分
  • 新耐震基準/1968年6月(築57年)
  • 即入居可能

この物件の特徴・魅力

  • 24時間利用可能
  • 機械警備
  • 営業おすすめ
  • 駅徒歩5分以内
  • 即入居可能
  • 個別空調
  • OAフロア
  • 写真が豊富
  • 男女別トイレ
  • エレベーターあり
  • 3~5人向けオフィス

担当者コメント

担当者

西天満パークビル4号館 4階は、大阪メトロ谷町線「南森町」から徒歩5分のコンパクトオフィス・貸事務所です。
共用部はリニューアル済みで、光ファイバーや個別空調、トイレ、エレベーターなど設備が整っています。セキュリティカードにより24時間の出入りも可能です。9.5坪のコンパクトな空間は、創業期のスタートアップや少人数の事務所に最適です。

平面図

地図

お問い合わせいただいた後は、
経験豊富なスタッフが全力でご支援いたします!

お電話でのお問い合わせ

0120-66-7102

受付時間 10:00~18:00(土日祝日を除く)

物件については[物件No.12602-0394]とお伝えください。

メールフォームでのお問い合わせ

ログインして問い合わせる

西天満パークビル4号館 4階 (9.50坪) の基本情報

物件No 12602-0394
建物名 西天満パークビル4号館 4階 (9.50坪)
所在地
大阪府大阪市北区西天満3丁目13-9  地図を見る 大阪市北区で他の物件を探す
募集階層/階建 地上4階
坪数(平米) 9.50 坪(31.40 ㎡)
築年月(竣工) 1968年6月(築57年)
耐震 新耐震基準
構造 その他 確認中となります。
最寄駅
用途 貸事務所・オフィス
最終更新日 2026年2月26日

契約条件

※表示価格はすべて税抜表示です
賃料
114,000 円(税抜)
坪単価 12,000円/坪
共益費/管理費等 28,500円
保証金/敷金 1,425,000円
保証金償却 確認中
礼金 確認中
更新料
自動更新
更新事務手数料 確認中
仲介手数料 確認中
造作価格
その他費用 敷金:共益費込賃料10ヶ月分
建物賃貸借区分 普通借家契約
契約期間 2年
指定保証会社必須 要加入 (株式会社セーフティーイノベーション)※月額固定費の1ヶ月
引渡時期 即入居可能
引渡状態
諸条件・相談 事務所可

設備詳細・その他

設備 エレベーター、エアコン、トイレ
エレベーター 有り
トイレ 共用部、男女別
床仕様 OAフロア
空調 個別空調
駐車場
特徴・魅力 2沿線以上利用可
事務所内装の備考
ビル設備の備考 光ファイバー有/正面8:00~20:00(日祝閉館)但し、セキュリティカードで24時間出入り可/共用部リニューアル済み
担当者コメント 西天満パークビル4号館 4階は、大阪メトロ谷町線「南森町」から徒歩5分のコンパクトオフィス・貸事務所です。 共用部はリニューアル済みで、光ファイバーや個別空調、トイレ、エレベーターなど設備が整っています。セキュリティカードにより24時間の出入りも可能です。9.5坪のコンパクトな空間は、創業期のスタートアップや少人数の事務所に最適です。

お問い合わせいただいた後は、
経験豊富なスタッフが全力でご支援いたします!

お電話でのお問い合わせ

0120-66-7102

受付時間 10:00~18:00(土日祝日を除く)

物件については[物件No.12602-0394]とお伝えください。

メールフォームでのお問い合わせ

ログインして問い合わせる

ビルやお部屋の雰囲気

外観

内観・その他

周辺環境

  • 【駅】南森町駅  

  • 【駅】大坂天満宮駅  

  • 【駅】北浜駅  

  • 【駅】淀屋橋駅  

  • 【駅】北新地駅  

マップで見る周辺の類似物件

「人型アイコン」を地図上にドラッグすることで『Google ストリートビュー』に切り替わります。

※地図上の「対象地」は実際の場所ではない場合がございます。詳しくはお問い合わせください。

お問い合わせフォームはこちら

お問い合わせいただいた後は、
経験豊富なスタッフが全力でご支援いたします!

お電話でのお問い合わせ

0120-66-7102

受付時間 10:00~18:00(土日祝日を除く)

物件については[物件No.12602-0394]とお伝えください。

メールフォームでのお問い合わせ

ログインして問い合わせる
この物件をご覧頂くには、会員登録(無料)が必要です。【無料会員登録】
No.{{ index + 1 }}
営業おすすめ NEW

非公開 掲載終了 商談中 物件写真
{{ estate.price_pending_type_name }} 価格未定

お探しのエリアで今注目の物件

この物件をご覧頂くには、会員登録(無料)が必要です。【無料会員登録】
No.{{ index + 1 }}
営業おすすめ NEW

非公開 掲載終了 商談中 物件写真
{{ estate.price_pending_type_name }} 価格未定

近隣のよく似た物件リスト

この物件をご覧頂くには、会員登録(無料)が必要です。【無料会員登録】
No.{{ index + 1 }}
営業おすすめ NEW

非公開 掲載終了 商談中 物件写真
{{ estate.price_pending_type_name }} 価格未定

この物件と同じ特徴から探す

近隣の路線・駅から物件を探す

大阪メトロ谷町線 / 中崎町 / 東梅田 / 天満橋 / 谷町四丁目 / 谷町六丁目

近隣のエリアから物件を探す

大阪市都島区 / 大阪市淀川区 / 大阪市城東区 / 大阪市東淀川区 / 大阪市旭区

近畿エリアエリアから物件を探す

大阪府 / 兵庫県 / 京都府