ちいきぼオフィス賃貸事務所・賃貸オフィス一覧大阪府の賃貸事務所・賃貸オフィス一覧大阪市北区の賃貸事務所・賃貸オフィス一覧梅田パークビル

物件No.12602-0390

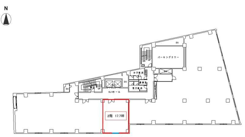
梅田パークビル 2階 (17.70坪)

最終更新日:2026年3月5日

  • 賃料
    212,400 円(税抜)
  • 大阪府 大阪市北区 野崎町 7-8 地図で確認する
  • 扇町駅(大阪メトロ堺筋線) 徒歩8分東梅田駅(大阪メトロ谷町線) 徒歩9分、南森町駅(大阪メトロ谷町線) 徒歩9分、南森町駅(大阪メトロ堺筋線) 徒歩9分
  • 新耐震基準/1976年5月(築49年)
  • 即入居可能

この物件の特徴・魅力

  • 24時間利用可能
  • 機械警備
  • 営業おすすめ
  • 即入居可能
  • 個別空調
  • OAフロア
  • 写真が豊富
  • 男女別トイレ
  • エレベーターあり
  • 10坪台オフィス
  • 6~10人向けオフィス

担当者コメント

担当者

梅田パークビル 2階は、大阪メトロ堺筋線「扇町」から徒歩8分のコンパクトオフィス・貸事務所です。
共用部はリニューアル済みで、貸会議室や喫煙室も完備されています。セキュリティカードにより24時間の入退館が可能で、利便性と防犯性を両立しています。17.7坪の使いやすいサイズ感も魅力です。トイレ、個別空調、エレベーターを完備しており快適にご利用いただけます。

平面図

地図

お問い合わせいただいた後は、
経験豊富なスタッフが全力でご支援いたします!

お電話でのお問い合わせ

0120-66-7102

受付時間 10:00~18:00(土日祝日を除く)

物件については[物件No.12602-0390]とお伝えください。

メールフォームでのお問い合わせ

ログインして問い合わせる

梅田パークビル 2階 (17.70坪) の基本情報

物件No 12602-0390
建物名 梅田パークビル 2階 (17.70坪)
所在地
大阪府大阪市北区野崎町7-8  地図を見る 大阪市北区で他の物件を探す
募集階層/階建 地上2階
坪数(平米) 17.70 坪(58.51 ㎡)
築年月(竣工) 1976年5月(築49年)
耐震 新耐震基準
構造 その他 確認中となります。
最寄駅
用途 貸事務所・オフィス
最終更新日 2026年3月5日

契約条件

※表示価格はすべて税抜表示です
賃料
212,400 円(税抜)
坪単価 12,000円/坪
共益費/管理費等 53,100円
保証金/敷金 2,655,000円
保証金償却 確認中
礼金 確認中
更新料
自動更新
更新事務手数料 確認中
仲介手数料 確認中
造作価格
その他費用 敷金:共益費込賃料10ヶ月分
建物賃貸借区分 普通借家契約
契約期間 2年
指定保証会社必須 要加入 (株式会社セーフティーイノベーション)※月額固定費の1ヶ月
引渡時期 即入居可能
引渡状態
諸条件・相談 事務所可

設備詳細・その他

設備 エレベーター、エアコン、トイレ
エレベーター 有り
トイレ 共用部、男女別
床仕様 OAフロア
空調 個別空調
駐車場 空無 
特徴・魅力 2沿線以上利用可
事務所内装の備考
ビル設備の備考 光ファイバー対応可/正面7:00~21:00(月~土)7:00~18:00(日祝)セキュリティカードで24時間出入り可/共用部リニューアル済み/車椅子対応トイレ(B1F)/貸会議室 使用時間:平日9:00~18:00/喫煙室あり(B1F)使用時間:平日7:00~21:00、休日8:00~18:00/駐車場 ビルイン機械式空無 24時間使用可 敷金3ヶ月
担当者コメント 梅田パークビル 2階は、大阪メトロ堺筋線「扇町」から徒歩8分のコンパクトオフィス・貸事務所です。 共用部はリニューアル済みで、貸会議室や喫煙室も完備されています。セキュリティカードにより24時間の入退館が可能で、利便性と防犯性を両立しています。17.7坪の使いやすいサイズ感も魅力です。トイレ、個別空調、エレベーターを完備しており快適にご利用いただけます。

お問い合わせいただいた後は、
経験豊富なスタッフが全力でご支援いたします!

お電話でのお問い合わせ

0120-66-7102

受付時間 10:00~18:00(土日祝日を除く)

物件については[物件No.12602-0390]とお伝えください。

メールフォームでのお問い合わせ

ログインして問い合わせる

ビルやお部屋の雰囲気

外観

内観・その他

周辺環境

  • 【駅】南森町駅  

マップで見る周辺の類似物件

「人型アイコン」を地図上にドラッグすることで『Google ストリートビュー』に切り替わります。

※地図上の「対象地」は実際の場所ではない場合がございます。詳しくはお問い合わせください。

お問い合わせフォームはこちら

お問い合わせいただいた後は、
経験豊富なスタッフが全力でご支援いたします!

お電話でのお問い合わせ

0120-66-7102

受付時間 10:00~18:00(土日祝日を除く)

物件については[物件No.12602-0390]とお伝えください。

メールフォームでのお問い合わせ

ログインして問い合わせる
この物件をご覧頂くには、会員登録(無料)が必要です。【無料会員登録】
No.{{ index + 1 }}
営業おすすめ NEW

非公開 掲載終了 商談中 物件写真
{{ estate.price_pending_type_name }} 価格未定

お探しのエリアで今注目の物件

この物件をご覧頂くには、会員登録(無料)が必要です。【無料会員登録】
No.{{ index + 1 }}
営業おすすめ NEW

非公開 掲載終了 商談中 物件写真
{{ estate.price_pending_type_name }} 価格未定

近隣のよく似た物件リスト

この物件をご覧頂くには、会員登録(無料)が必要です。【無料会員登録】
No.{{ index + 1 }}
営業おすすめ NEW

非公開 掲載終了 商談中 物件写真
{{ estate.price_pending_type_name }} 価格未定

この物件と同じ特徴から探す

近隣の路線・駅から物件を探す

大阪メトロ堺筋線 / 天神橋筋六丁目 / 南森町 / 北浜 / 堺筋本町 / 長堀橋

近隣のエリアから物件を探す

大阪市都島区 / 大阪市淀川区 / 大阪市城東区 / 大阪市東淀川区 / 大阪市旭区

近畿エリアエリアから物件を探す

大阪府 / 兵庫県 / 京都府