ちいきぼオフィス賃貸事務所・賃貸オフィス一覧東京都の賃貸事務所・賃貸オフィス一覧港区の賃貸事務所・賃貸オフィス一覧ライオンズマンション赤坂第2

物件No.12602-0383

ライオンズマンション赤坂第2 4階 404 (9.39坪)

最終更新日:2026年3月10日

  • 賃料
    136,000 円(税抜)
  • 東京都 港区 赤坂4丁目 3-31 地図で確認する
  • 赤坂見附駅(東京メトロ銀座線) 徒歩4分赤坂見附駅(東京メトロ丸ノ内線) 徒歩4分、赤坂駅(東京メトロ千代田線) 徒歩4分、永田町駅(東京メトロ有楽町線) 徒歩6分、永田町駅(東京メトロ半蔵門線) 徒歩6分
  • 5階建(1977年6月(築48年))
  • 即入居可能

この物件の特徴・魅力

  • バルコニー有
  • 駅徒歩5分以内
  • 即入居可能
  • 写真が豊富
  • エレベーターあり
  • コスパ重視
  • 3~5人向けオフィス

担当者コメント

担当者

ライオンズマンション赤坂第2 4階 404は、東京メトロ銀座線「赤坂見附」から徒歩4分のコンパクトオフィス・貸事務所です。
9.39坪の室内は光ファイバー対応で、IT環境を重視するワークスタイルにもスムーズに対応できます。トイレやエアコン、エレベーターを完備しており快適にご利用いただけます。
赤坂エリアの利便性を享受しつつ、落ち着いて業務に取り組める室内禁煙のクリーンな環境が魅力です。

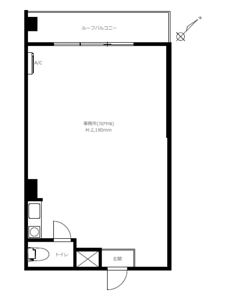
平面図

地図

お問い合わせいただいた後は、
経験豊富なスタッフが全力でご支援いたします!

お電話でのお問い合わせ

0120-66-7102

受付時間 10:00~18:00(土日祝日を除く)

物件については[物件No.12602-0383]とお伝えください。

メールフォームでのお問い合わせ

ログインして問い合わせる

ライオンズマンション赤坂第2 4階 404 (9.39坪) の基本情報

物件No 12602-0383
建物名 ライオンズマンション赤坂第2 4階 404 (9.39坪)
所在地
東京都港区赤坂4丁目3-31  地図を見る 港区で他の物件を探す
募集階層/階建 地上4階 / 5階建
坪数(平米) 9.39 坪(31.05 ㎡)
築年月(竣工) 1977年6月(築48年)
耐震
構造 鉄筋コンクリート(RC)
最寄駅
用途 貸事務所・オフィス
最終更新日 2026年3月10日

契約条件

※表示価格はすべて税抜表示です
賃料
136,000 円(税抜)
坪単価 14,483円/坪
共益費/管理費等 9,000円
保証金/敷金 2ヶ月
保証金償却 確認中
礼金 1ヶ月
更新料 1ヶ月
更新
新賃料
更新事務手数料 確認中
仲介手数料 確認中
造作価格
その他費用 保険要加入:2年間19,000円~/契約時鍵交換費用負担有:33,000円/退去時のクリーニング費用(エアコン内洗浄含む)は借主負担
建物賃貸借区分
契約期間 2年
指定保証会社必須 要加入
引渡時期 即入居可能
引渡状態
諸条件・相談 事務所可

設備詳細・その他

設備 エレベーター、トイレ、エアコン、温水洗浄便座、オートロック
エレベーター 有り
トイレ 室内
床仕様
空調 有り
駐車場
特徴・魅力 2沿線以上利用可
事務所内装の備考 光ファイバー/電気温水器
ビル設備の備考 室内禁煙
担当者コメント ライオンズマンション赤坂第2 4階 404は、東京メトロ銀座線「赤坂見附」から徒歩4分のコンパクトオフィス・貸事務所です。 9.39坪の室内は光ファイバー対応で、IT環境を重視するワークスタイルにもスムーズに対応できます。トイレやエアコン、エレベーターを完備しており快適にご利用いただけます。 赤坂エリアの利便性を享受しつつ、落ち着いて業務に取り組める室内禁煙のクリーンな環境が魅力です。

お問い合わせいただいた後は、
経験豊富なスタッフが全力でご支援いたします!

お電話でのお問い合わせ

0120-66-7102

受付時間 10:00~18:00(土日祝日を除く)

物件については[物件No.12602-0383]とお伝えください。

メールフォームでのお問い合わせ

ログインして問い合わせる

ビルやお部屋の雰囲気

外観

内観・その他

周辺環境

  • 【駅】赤坂駅  

  • 【駅】赤坂見附駅 10番出口  

  • 【駅】溜池山王駅(10番出口)  

マップで見る周辺の類似物件

「人型アイコン」を地図上にドラッグすることで『Google ストリートビュー』に切り替わります。

※地図上の「対象地」は実際の場所ではない場合がございます。詳しくはお問い合わせください。

お問い合わせフォームはこちら

お問い合わせいただいた後は、
経験豊富なスタッフが全力でご支援いたします!

お電話でのお問い合わせ

0120-66-7102

受付時間 10:00~18:00(土日祝日を除く)

物件については[物件No.12602-0383]とお伝えください。

メールフォームでのお問い合わせ

ログインして問い合わせる
この物件をご覧頂くには、会員登録(無料)が必要です。【無料会員登録】
No.{{ index + 1 }}
営業おすすめ NEW

非公開 掲載終了 商談中 物件写真
{{ estate.price_pending_type_name }} 価格未定

お探しのエリアで今注目の物件

この物件をご覧頂くには、会員登録(無料)が必要です。【無料会員登録】
No.{{ index + 1 }}
営業おすすめ NEW

非公開 掲載終了 商談中 物件写真
{{ estate.price_pending_type_name }} 価格未定

近隣のよく似た物件リスト

この物件をご覧頂くには、会員登録(無料)が必要です。【無料会員登録】
No.{{ index + 1 }}
営業おすすめ NEW

非公開 掲載終了 商談中 物件写真
{{ estate.price_pending_type_name }} 価格未定

この物件と同じ特徴から探す

近隣の路線・駅から物件を探す

東京メトロ銀座線 / 虎ノ門 / 溜池山王 / 青山一丁目 / 外苑前 / 表参道

近隣のエリアから物件を探す

中央区 / 千代田区 / 渋谷区 / 目黒区 / 文京区

関東エリアエリアから物件を探す

東京都 / 神奈川県 / 埼玉県 / 千葉県