ちいきぼオフィス賃貸事務所・賃貸オフィス一覧東京都の賃貸事務所・賃貸オフィス一覧港区の賃貸事務所・賃貸オフィス一覧KIビル

物件No.12602-0348

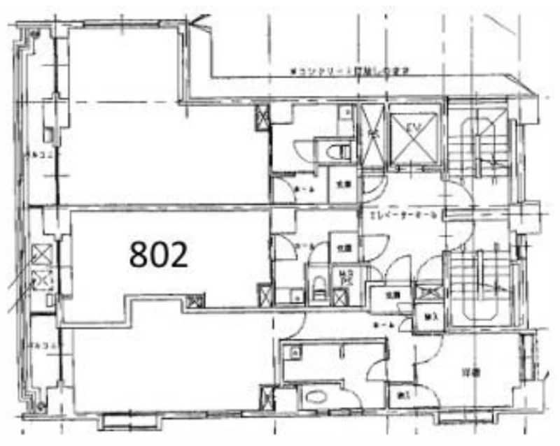
KIビル 8階 802 (9.52坪)

最終更新日:2026年2月19日

  • 賃料
    157,000 円(税抜)
  • 東京都 港区 浜松町2丁目 2-14 地図で確認する
  • 大門駅(都営大江戸線) 徒歩2分大門駅(都営浅草線) 徒歩2分、浜松町駅(JR山手線) 徒歩3分、芝公園駅(都営三田線) 徒歩6分
  • 11階建(1981年5月(築44年))
  • 即入居可能

この物件の特徴・魅力

  • 24時間利用可能
  • 駅徒歩5分以内
  • 即入居可能
  • 個別空調
  • 写真が豊富
  • エレベーターあり
  • 3~5人向けオフィス

担当者コメント

担当者

KIビル 8階 802は、都営大江戸線「大門」から徒歩2分のコンパクトオフィス・貸事務所です。
駅から徒歩2分と非常に近く、通勤や来客に便利な好立地です。9.52坪のコンパクトな室内は、スタートアップや少人数での拠点に最適です。11階建てのビルで、エレベーターや個別空調、トイレも完備されています。土日・祝日の利用も可能なため、柔軟な働き方に対応できます。

平面図

地図

お問い合わせいただいた後は、
経験豊富なスタッフが全力でご支援いたします!

お電話でのお問い合わせ

0120-66-7102

受付時間 10:00~18:00(土日祝日を除く)

物件については[物件No.12602-0348]とお伝えください。

メールフォームでのお問い合わせ

ログインして問い合わせる

KIビル 8階 802 (9.52坪) の基本情報

物件No 12602-0348
建物名 KIビル 8階 802 (9.52坪)
所在地
東京都港区浜松町2丁目2-14  地図を見る 港区で他の物件を探す
募集階層/階建 地上8階 / 11階建
坪数(平米) 9.52 坪(31.47 ㎡)
築年月(竣工) 1981年5月(築44年)
耐震
構造 鉄骨鉄筋コンクリート(SRC)
最寄駅
用途 貸事務所・オフィス
最終更新日 2026年2月19日

契約条件

※表示価格はすべて税抜表示です
賃料
157,000 円(税抜)
坪単価 16,491円/坪
共益費/管理費等 31,416円
保証金/敷金 6ヶ月
保証金償却 2ヶ月
解約時
礼金 無し
更新料 1ヶ月
更新
新賃料
更新事務手数料 確認中
仲介手数料 確認中
造作価格
その他費用 保険等:要
建物賃貸借区分
契約期間 2年
指定保証会社必須 要加入
引渡時期 即入居可能
引渡状態
諸条件・相談 事務所可

設備詳細・その他

設備 エレベーター、エアコン、トイレ、オートロック
エレベーター 有り
トイレ 室内
床仕様
空調 個別空調
駐車場
特徴・魅力 2沿線以上利用可
事務所内装の備考
ビル設備の備考 土日・祝日利用可
担当者コメント KIビル 8階 802は、都営大江戸線「大門」から徒歩2分のコンパクトオフィス・貸事務所です。 駅から徒歩2分と非常に近く、通勤や来客に便利な好立地です。9.52坪のコンパクトな室内は、スタートアップや少人数での拠点に最適です。11階建てのビルで、エレベーターや個別空調、トイレも完備されています。土日・祝日の利用も可能なため、柔軟な働き方に対応できます。

お問い合わせいただいた後は、
経験豊富なスタッフが全力でご支援いたします!

お電話でのお問い合わせ

0120-66-7102

受付時間 10:00~18:00(土日祝日を除く)

物件については[物件No.12602-0348]とお伝えください。

メールフォームでのお問い合わせ

ログインして問い合わせる

ビルやお部屋の雰囲気

外観

内観・その他

周辺環境

  • 【駅】都営地下鉄 大門駅  

  • 【駅】都営地下鉄 大門駅 A1出口  

  • 【駅】大門駅  

  • 【駅】JR浜松町駅  

  • 【駅】JR浜松町駅  

  • 【駅】芝公園駅  

マップで見る周辺の類似物件

「人型アイコン」を地図上にドラッグすることで『Google ストリートビュー』に切り替わります。

※地図上の「対象地」は実際の場所ではない場合がございます。詳しくはお問い合わせください。

お問い合わせフォームはこちら

お問い合わせいただいた後は、
経験豊富なスタッフが全力でご支援いたします!

お電話でのお問い合わせ

0120-66-7102

受付時間 10:00~18:00(土日祝日を除く)

物件については[物件No.12602-0348]とお伝えください。

メールフォームでのお問い合わせ

ログインして問い合わせる
この物件をご覧頂くには、会員登録(無料)が必要です。【無料会員登録】
No.{{ index + 1 }}
営業おすすめ NEW

非公開 掲載終了 商談中 物件写真
{{ estate.price_pending_type_name }} 価格未定

お探しのエリアで今注目の物件

この物件をご覧頂くには、会員登録(無料)が必要です。【無料会員登録】
No.{{ index + 1 }}
営業おすすめ NEW

非公開 掲載終了 商談中 物件写真
{{ estate.price_pending_type_name }} 価格未定

近隣のよく似た物件リスト

この物件をご覧頂くには、会員登録(無料)が必要です。【無料会員登録】
No.{{ index + 1 }}
営業おすすめ NEW

非公開 掲載終了 商談中 物件写真
{{ estate.price_pending_type_name }} 価格未定

この物件と同じ特徴から探す

近隣の路線・駅から物件を探す

都営大江戸線 / 築地市場 / 汐留 / 赤羽橋 / 麻布十番 / 六本木

近隣のエリアから物件を探す

中央区 / 千代田区 / 渋谷区 / 目黒区 / 文京区

関東エリアエリアから物件を探す

東京都 / 神奈川県 / 埼玉県 / 千葉県