ちいきぼオフィス賃貸事務所・賃貸オフィス一覧大阪府の賃貸事務所・賃貸オフィス一覧大阪市北区の賃貸事務所・賃貸オフィス一覧若杉グランドビル別館

物件No.12602-0292

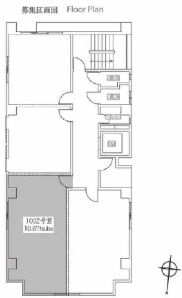
若杉グランドビル別館 10階 1002 (10.87坪)

最終更新日:2026年3月12日

  • 月額費用は、 お問い合わせ ください。
  • 大阪府 大阪市北区 東天満1丁目 11-15 地図で確認する
  • 大阪天満宮駅(JR東西線) 徒歩1分南森町駅(大阪メトロ谷町線) 徒歩3分、南森町駅(大阪メトロ堺筋線) 徒歩3分、天満橋駅(京阪電鉄本線) 徒歩10分、天満橋駅(京阪電鉄中之島線) 徒歩10分
  • 13階建(1987年1月(築39年))
  • 即入居可能

この物件の特徴・魅力

  • セキュリティ充実
  • 営業おすすめ
  • 駅徒歩5分以内
  • 即入居可能
  • 個別空調
  • OAフロア
  • 写真が豊富
  • VR内見あり
  • エレベーターあり
  • 10坪台オフィス
  • 6~10人向けオフィス

担当者コメント

担当者

若杉グランドビル別館 10階 1002は、JR東西線「大阪天満宮」から徒歩1分のコンパクトオフィス・貸事務所です。
駅から近くアクセス抜群な好立地です。光ファイバーや高速ネットに対応しており、個別空調も完備されています。定期借家契約ですが再契約の相談が可能で、防犯カメラや巡回管理などセキュリティ面も安心です。機能的で使い勝手の良いオフィス環境が整っています。

平面図

地図

お問い合わせいただいた後は、
経験豊富なスタッフが全力でご支援いたします!

お電話でのお問い合わせ

0120-66-7102

受付時間 10:00~18:00(土日祝日を除く)

物件については[物件No.12602-0292]とお伝えください。

メールフォームでのお問い合わせ

ログインして問い合わせる

若杉グランドビル別館 10階 1002 (10.87坪) の基本情報

物件No 12602-0292
建物名 若杉グランドビル別館 10階 1002 (10.87坪)
所在地
大阪府大阪市北区東天満1丁目11-15  地図を見る 大阪市北区で他の物件を探す
募集階層/階建 地上10階 / 13階建
坪数(平米) 10.87 坪(35.93 ㎡)
築年月(竣工) 1987年1月(築39年)
耐震
構造 鉄骨鉄筋コンクリート(SRC)
最寄駅
用途 貸事務所・オフィス
最終更新日 2026年3月12日

契約条件

※表示価格はすべて税抜表示です
賃料 相談
坪単価 お問い合わせください。
共益費/管理費等 相談
保証金/敷金 相談
保証金償却 無し
礼金 無し
更新料 無し
更新事務手数料
仲介手数料 確認中
造作価格
その他費用 再契約可/火災保険要加入(物損害保険・施設賠償保険・借家人賠償保険)/専有部床清掃費用/ネームプレート費用(郵便ポスト・テナント表示板・貸室ドアの3点セット):契約時/電気料金
建物賃貸借区分 定期借家契約
契約期間 3年
指定保証会社必須 要加入 (株式会社セーフティーイノベーション)※月額固定費の1ヶ月
引渡時期 即入居可能
引渡状態
諸条件・相談 事務所可

設備詳細・その他

設備 トイレ、給湯、電気、上水道、下水道、火災警報器等設置済、エアコン、冷房、暖房、インターネット、エレベーター
エレベーター 有り
トイレ 共用部
床仕様 OAフロア
空調 個別空調
駐車場 無 
特徴・魅力 2沿線以上利用可
事務所内装の備考 電気照明
ビル設備の備考 光ファイバー/高速ネット対応/管理人(巡回)/防犯カメラ/引越し・荷物搬出入:土曜日のみ9:00~18:00(祝日除く)/ビル正面玄関開閉時間:平日(月~土)7:00~18:00
担当者コメント 若杉グランドビル別館 10階 1002は、JR東西線「大阪天満宮」から徒歩1分のコンパクトオフィス・貸事務所です。 駅から近くアクセス抜群な好立地です。光ファイバーや高速ネットに対応しており、個別空調も完備されています。定期借家契約ですが再契約の相談が可能で、防犯カメラや巡回管理などセキュリティ面も安心です。機能的で使い勝手の良いオフィス環境が整っています。

動画/VR

お問い合わせいただいた後は、
経験豊富なスタッフが全力でご支援いたします!

お電話でのお問い合わせ

0120-66-7102

受付時間 10:00~18:00(土日祝日を除く)

物件については[物件No.12602-0292]とお伝えください。

メールフォームでのお問い合わせ

ログインして問い合わせる

ビルやお部屋の雰囲気

外観

内観・その他

周辺環境

  • 【駅】大坂天満宮駅  

  • 【駅】南森町駅  

  • 【駅】天満橋駅  

マップで見る周辺の類似物件

「人型アイコン」を地図上にドラッグすることで『Google ストリートビュー』に切り替わります。

※地図上の「対象地」は実際の場所ではない場合がございます。詳しくはお問い合わせください。

お問い合わせフォームはこちら

お問い合わせいただいた後は、
経験豊富なスタッフが全力でご支援いたします!

お電話でのお問い合わせ

0120-66-7102

受付時間 10:00~18:00(土日祝日を除く)

物件については[物件No.12602-0292]とお伝えください。

メールフォームでのお問い合わせ

ログインして問い合わせる
この物件をご覧頂くには、会員登録(無料)が必要です。【無料会員登録】
No.{{ index + 1 }}
営業おすすめ NEW

非公開 掲載終了 商談中 物件写真
{{ estate.price_pending_type_name }} 価格未定

お探しのエリアで今注目の物件

この物件をご覧頂くには、会員登録(無料)が必要です。【無料会員登録】
No.{{ index + 1 }}
営業おすすめ NEW

非公開 掲載終了 商談中 物件写真
{{ estate.price_pending_type_name }} 価格未定

近隣のよく似た物件リスト

この物件をご覧頂くには、会員登録(無料)が必要です。【無料会員登録】
No.{{ index + 1 }}
営業おすすめ NEW

非公開 掲載終了 商談中 物件写真
{{ estate.price_pending_type_name }} 価格未定

この物件と同じ特徴から探す

近隣の路線・駅から物件を探す

JR東西線 / 京橋 / 大阪城北詰 / 北新地 / 新福島 / 海老江

近隣のエリアから物件を探す

大阪市都島区 / 大阪市淀川区 / 大阪市城東区 / 大阪市東淀川区 / 大阪市旭区

近畿エリアエリアから物件を探す

大阪府 / 兵庫県 / 京都府