ちいきぼオフィス賃貸事務所・賃貸オフィス一覧大阪府の賃貸事務所・賃貸オフィス一覧大阪市北区の賃貸事務所・賃貸オフィス一覧若杉ビル

物件No.12602-0282

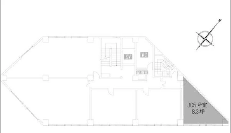
若杉ビル 3階 305 (8.30坪)

最終更新日:2026年2月16日

  • 月額費用は、 お問い合わせ ください。
  • 大阪府 大阪市北区 中津1丁目 18-18 地図で確認する
  • 中津駅(大阪メトロ御堂筋線) 徒歩1分中津駅(阪急電鉄神戸線) 徒歩8分、中津駅(阪急電鉄宝塚線) 徒歩8分
  • 10階建(1973年3月(築53年))
  • 2026年3月下旬より入居可能

この物件の特徴・魅力

  • セキュリティ充実
  • 24時間利用可能
  • 営業おすすめ
  • 駅徒歩5分以内
  • OAフロア
  • 写真が豊富
  • エレベーターあり
  • 3~5人向けオフィス

担当者コメント

担当者

若杉ビル 3階 305は、大阪メトロ御堂筋線「中津」から徒歩1分のコンパクトオフィス・貸事務所です 。駅から至近の好立地で、管理人常駐や防犯カメラなどセキュリティ面も安心です 。LED照明やエアコン、トイレ、エレベーターが完備されており、すぐに業務を始められます 。3年間の定期借家契約ですが、再契約も可能です 。

平面図

地図

お問い合わせいただいた後は、
経験豊富なスタッフが全力でご支援いたします!

お電話でのお問い合わせ

0120-66-7102

受付時間 10:00~18:00(土日祝日を除く)

物件については[物件No.12602-0282]とお伝えください。

メールフォームでのお問い合わせ

ログインして問い合わせる

若杉ビル 3階 305 (8.30坪) の基本情報

物件No 12602-0282
建物名 若杉ビル 3階 305 (8.30坪)
所在地
大阪府大阪市北区中津1丁目18-18  地図を見る 大阪市北区で他の物件を探す
募集階層/階建 地上3階 / 10階建
坪数(平米) 8.30 坪(27.43 ㎡)
築年月(竣工) 1973年3月(築53年)
耐震
構造 鉄骨鉄筋コンクリート(SRC)
最寄駅
用途 貸事務所・オフィス
最終更新日 2026年2月16日

契約条件

※表示価格はすべて税抜表示です
賃料 相談
坪単価 お問い合わせください。
共益費/管理費等 相談
保証金/敷金 相談
保証金償却 無し
礼金 無し
更新料 無し
更新事務手数料 確認中
仲介手数料 確認中
造作価格
その他費用 再契約可能(但し別途協議の上)/保険:保険要加入 火災保険(物損害保険・施設賠償保険・借家人賠償保険(破壊・破損・汚損を含む))/専有部床清掃費用:要 年2回実施/ネームプレート作成費:要 郵便ポスト・テナント表示板・貸室ドアの3点セット/電気料金:要
建物賃貸借区分 定期借家契約
契約期間 3年
指定保証会社必須 要加入 (株式会社セーフティーイノベーション)※月額固定費の1ヶ月
引渡時期 2026年3月下旬より入居可能
引渡状態
諸条件・相談 事務所可

設備詳細・その他

設備 火災警報器等設置済、エアコン、インターネット、トイレ、高速インターネット、給湯、電気、エレベーター
エレベーター 有り
トイレ 有り
床仕様 OAフロア
空調 有り
駐車場 無 
特徴・魅力 2沿線以上利用可
事務所内装の備考 LED照明
ビル設備の備考 光ファイバー/管理人常駐/防犯カメラ/ビル正面玄関開閉時間:平日(月~土)7:00~18:00
担当者コメント 若杉ビル 3階 305は、大阪メトロ御堂筋線「中津」から徒歩1分のコンパクトオフィス・貸事務所です 。駅から至近の好立地で、管理人常駐や防犯カメラなどセキュリティ面も安心です 。LED照明やエアコン、トイレ、エレベーターが完備されており、すぐに業務を始められます 。3年間の定期借家契約ですが、再契約も可能です 。

お問い合わせいただいた後は、
経験豊富なスタッフが全力でご支援いたします!

お電話でのお問い合わせ

0120-66-7102

受付時間 10:00~18:00(土日祝日を除く)

物件については[物件No.12602-0282]とお伝えください。

メールフォームでのお問い合わせ

ログインして問い合わせる

ビルやお部屋の雰囲気

外観

マップで見る周辺の類似物件

「人型アイコン」を地図上にドラッグすることで『Google ストリートビュー』に切り替わります。

※地図上の「対象地」は実際の場所ではない場合がございます。詳しくはお問い合わせください。

お問い合わせフォームはこちら

お問い合わせいただいた後は、
経験豊富なスタッフが全力でご支援いたします!

お電話でのお問い合わせ

0120-66-7102

受付時間 10:00~18:00(土日祝日を除く)

物件については[物件No.12602-0282]とお伝えください。

メールフォームでのお問い合わせ

ログインして問い合わせる
この物件をご覧頂くには、会員登録(無料)が必要です。【無料会員登録】
No.{{ index + 1 }}
営業おすすめ NEW

非公開 掲載終了 商談中 物件写真
{{ estate.price_pending_type_name }} 価格未定

お探しのエリアで今注目の物件

この物件をご覧頂くには、会員登録(無料)が必要です。【無料会員登録】
No.{{ index + 1 }}
営業おすすめ NEW

非公開 掲載終了 商談中 物件写真
{{ estate.price_pending_type_name }} 価格未定

近隣のよく似た物件リスト

この物件をご覧頂くには、会員登録(無料)が必要です。【無料会員登録】
No.{{ index + 1 }}
営業おすすめ NEW

非公開 掲載終了 商談中 物件写真
{{ estate.price_pending_type_name }} 価格未定

この物件と同じ特徴から探す

近隣の路線・駅から物件を探す

大阪メトロ御堂筋線 / 新大阪 / 西中島南方 / 梅田 / 淀屋橋 / 本町

近隣のエリアから物件を探す

大阪市都島区 / 大阪市淀川区 / 大阪市城東区 / 大阪市東淀川区 / 大阪市旭区

近畿エリアエリアから物件を探す

大阪府 / 兵庫県 / 京都府