ちいきぼオフィス賃貸事務所・賃貸オフィス一覧神奈川県の賃貸事務所・賃貸オフィス一覧横浜市中区の賃貸事務所・賃貸オフィス一覧川島ビル

物件No.12602-0247

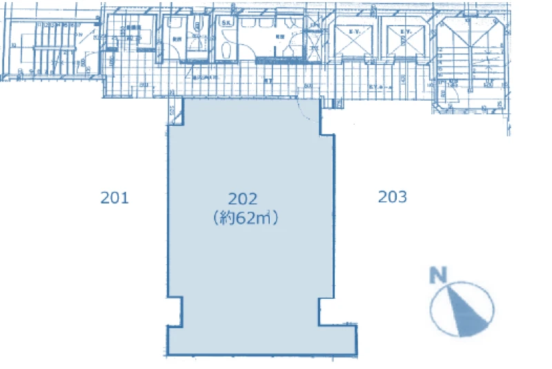
川島ビル 2階 202号室 (18.76坪)

最終更新日:2026年3月12日

  • 賃料
    250,000 円(税抜)
  • 神奈川県 横浜市中区 太田町4丁目 48 地図で確認する
  • 馬車道駅(横浜高速鉄道みなとみらい線) 徒歩3分関内駅(JR根岸線) 徒歩5分、関内駅(横浜市ブルーライン) 徒歩5分、関内駅(JR京浜東北・根岸線) 徒歩5分、桜木町駅(JR京浜東北・根岸線) 徒歩7分
  • 10階建(1986年2月(築40年))
  • 引渡時期はお問い合わせください

この物件の特徴・魅力

  • 駅徒歩5分以内
  • 写真が豊富
  • 男女別トイレ
  • 駐車場あり
  • エレベーターあり
  • 現状渡し
  • 10坪台オフィス
  • 6~10人向けオフィス

担当者コメント

担当者

川島ビル 2階 202号室は、横浜高速鉄道みなとみらい線「馬車道」から徒歩3分のコンパクトオフィス・貸事務所です。
現状渡しのため、内装を活かしたスピーディーな入居が可能です。18坪超の広さがあり、機械式駐車場も完備されています。トイレ、エアコン、エレベーターを完備しており快適にご利用いただけます。馬車道駅から徒歩3分とアクセスも良く、実用性を重視する事業主様に最適です。

平面図

地図

お問い合わせいただいた後は、
経験豊富なスタッフが全力でご支援いたします!

お電話でのお問い合わせ

0120-66-7102

受付時間 10:00~18:00(土日祝日を除く)

物件については[物件No.12602-0247]とお伝えください。

メールフォームでのお問い合わせ

ログインして問い合わせる

川島ビル 2階 202号室 (18.76坪) の基本情報

物件No 12602-0247
建物名 川島ビル 2階 202号室 (18.76坪)
所在地
神奈川県横浜市中区太田町4丁目48  地図を見る 横浜市中区で他の物件を探す
募集階層/階建 地上2階 / 10階建
坪数(平米) 18.76 坪(62.00 ㎡)
築年月(竣工) 1986年2月(築40年)
耐震
構造 鉄骨鉄筋コンクリート(SRC)
最寄駅
用途 貸事務所・オフィス
最終更新日 2026年3月12日

契約条件

※表示価格はすべて税抜表示です
賃料
250,000 円(税抜)
坪単価 13,326円/坪
共益費/管理費等 無し
保証金/敷金 6ヶ月
保証金償却 2ヶ月
解約明け渡し時
礼金 1ヶ月
更新料 1ヶ月
更新
更新事務手数料 確認中
仲介手数料 確認中
造作価格
その他費用 火災保険要加入/内装現況引き渡しのため原状回復条項一部免除(内装張替希望の場合は引渡日等別途相談)
建物賃貸借区分 普通借家契約
契約期間 2年
指定保証会社必須 要加入
引渡時期 お問い合わせください
引渡状態 現状渡し
諸条件・相談 事務所可

設備詳細・その他

設備 エレベーター、トイレ、エアコン
エレベーター 有り
トイレ 共用部、男女別
床仕様
空調 有り
駐車場 有 
特徴・魅力 2沿線以上利用可
事務所内装の備考
ビル設備の備考 駐車場:機械式(タワー)別途契約要
担当者コメント 川島ビル 2階 202号室は、横浜高速鉄道みなとみらい線「馬車道」から徒歩3分のコンパクトオフィス・貸事務所です。 現状渡しのため、内装を活かしたスピーディーな入居が可能です。18坪超の広さがあり、機械式駐車場も完備されています。トイレ、エアコン、エレベーターを完備しており快適にご利用いただけます。馬車道駅から徒歩3分とアクセスも良く、実用性を重視する事業主様に最適です。

お問い合わせいただいた後は、
経験豊富なスタッフが全力でご支援いたします!

お電話でのお問い合わせ

0120-66-7102

受付時間 10:00~18:00(土日祝日を除く)

物件については[物件No.12602-0247]とお伝えください。

メールフォームでのお問い合わせ

ログインして問い合わせる

ビルやお部屋の雰囲気

外観

内観・その他

周辺環境

  • 【駅】馬車道駅  

  • 【駅】関内駅  

  • 【駅】横浜市営地下鉄ブルーライン伊勢佐木長者町駅  

マップで見る周辺の類似物件

「人型アイコン」を地図上にドラッグすることで『Google ストリートビュー』に切り替わります。

※地図上の「対象地」は実際の場所ではない場合がございます。詳しくはお問い合わせください。

お問い合わせフォームはこちら

お問い合わせいただいた後は、
経験豊富なスタッフが全力でご支援いたします!

お電話でのお問い合わせ

0120-66-7102

受付時間 10:00~18:00(土日祝日を除く)

物件については[物件No.12602-0247]とお伝えください。

メールフォームでのお問い合わせ

ログインして問い合わせる
この物件をご覧頂くには、会員登録(無料)が必要です。【無料会員登録】
No.{{ index + 1 }}
営業おすすめ NEW

非公開 掲載終了 商談中 物件写真
{{ estate.price_pending_type_name }} 価格未定

お探しのエリアで今注目の物件

この物件をご覧頂くには、会員登録(無料)が必要です。【無料会員登録】
No.{{ index + 1 }}
営業おすすめ NEW

非公開 掲載終了 商談中 物件写真
{{ estate.price_pending_type_name }} 価格未定

近隣のよく似た物件リスト

この物件をご覧頂くには、会員登録(無料)が必要です。【無料会員登録】
No.{{ index + 1 }}
営業おすすめ NEW

非公開 掲載終了 商談中 物件写真
{{ estate.price_pending_type_name }} 価格未定

この物件と同じ特徴から探す

近隣のエリアから物件を探す

横浜市栄区 / 横浜市西区 / 横浜市南区 / 横浜市神奈川区 / 横浜市鶴見区

関東エリアエリアから物件を探す

東京都 / 神奈川県 / 埼玉県 / 千葉県