ちいきぼオフィス賃貸事務所・賃貸オフィス一覧大阪府の賃貸事務所・賃貸オフィス一覧大阪市淀川区の賃貸事務所・賃貸オフィス一覧第一丸善ビル

物件No.12602-0189

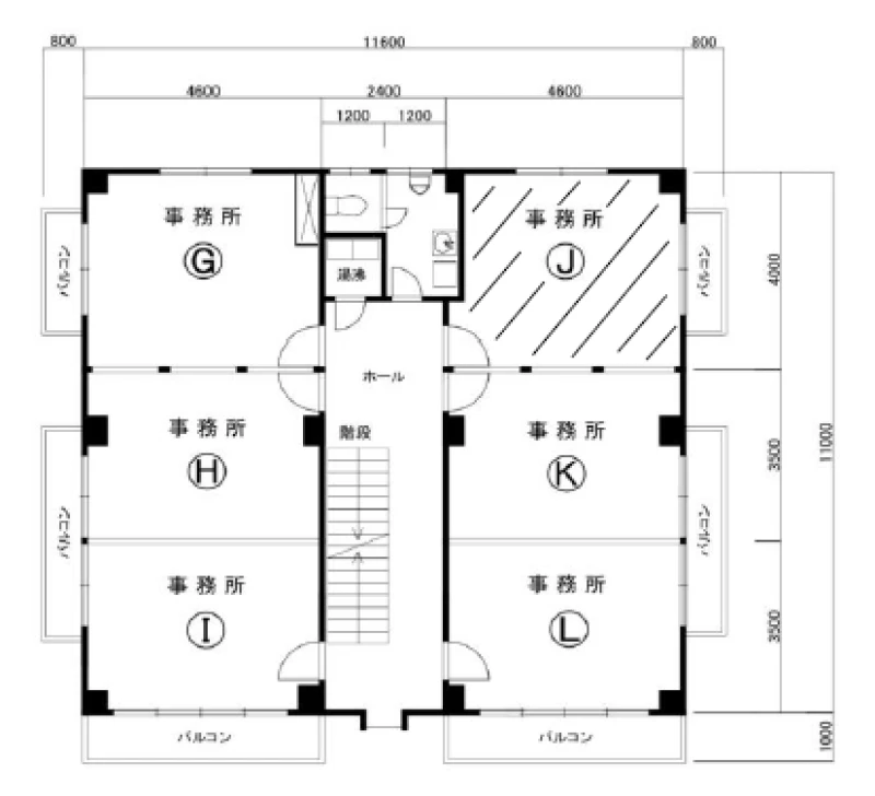
第一丸善ビル 3階 3-J号室 (5.25坪)

最終更新日:2026年2月19日

  • 賃料
    26,000 円(税抜)
  • 大阪府 大阪市淀川区 木川東3丁目 4-11 地図で確認する
  • 西中島南方駅(大阪メトロ御堂筋線) 徒歩6分
  • 4階建(1978年3月(築48年))
  • 引渡時期はお問い合わせください

この物件の特徴・魅力

  • 写真が豊富
  • コスパ重視
  • 3~5人向けオフィス

担当者コメント

担当者

第一丸善ビル 3階 3-J号室は、大阪メトロ御堂筋線「西中島南方」駅から徒歩6分のオフィス・貸事務所です。複数駅が利用可能な立地で、大阪市内へのアクセスもスムーズです。使い勝手の良い室内には、専用のトイレやエアコンを完備しています。礼金なしで初期費用を抑えたい事業者様にもおすすめです。

平面図

地図

お問い合わせいただいた後は、
経験豊富なスタッフが全力でご支援いたします!

お電話でのお問い合わせ

0120-66-7102

受付時間 10:00~18:00(土日祝日を除く)

物件については[物件No.12602-0189]とお伝えください。

メールフォームでのお問い合わせ

ログインして問い合わせる

第一丸善ビル 3階 3-J号室 (5.25坪) の基本情報

物件No 12602-0189
建物名 第一丸善ビル 3階 3-J号室 (5.25坪)
所在地
大阪府大阪市淀川区木川東3丁目4-11  地図を見る 大阪市淀川区で他の物件を探す
募集階層/階建 地上3階 / 4階建
坪数(平米) 5.25 坪(17.36 ㎡)
築年月(竣工) 1978年3月(築48年)
耐震
構造 鉄筋コンクリート(RC)
最寄駅
用途 貸事務所・オフィス
最終更新日 2026年2月19日

契約条件

※表示価格はすべて税抜表示です
賃料
26,000 円(税抜)
坪単価 4,952円/坪
共益費/管理費等 5,250円
保証金/敷金 160,000円
保証金償却 57,750円
解約時
礼金 無し
更新料 確認中
更新事務手数料 確認中
仲介手数料 確認中
造作価格
その他費用 電灯基本料:700円+消費税(変動有)
建物賃貸借区分
契約期間 2年
指定保証会社必須 要加入
引渡時期 お問い合わせください
引渡状態
諸条件・相談 事務所可

設備詳細・その他

設備 電気、エアコン、給湯、トイレ、温水洗浄便座
エレベーター
トイレ 共用部
床仕様
空調 有り
駐車場 無 
特徴・魅力
事務所内装の備考
ビル設備の備考
担当者コメント 第一丸善ビル 3階 3-J号室は、大阪メトロ御堂筋線「西中島南方」駅から徒歩6分のオフィス・貸事務所です。複数駅が利用可能な立地で、大阪市内へのアクセスもスムーズです。使い勝手の良い室内には、専用のトイレやエアコンを完備しています。礼金なしで初期費用を抑えたい事業者様にもおすすめです。

お問い合わせいただいた後は、
経験豊富なスタッフが全力でご支援いたします!

お電話でのお問い合わせ

0120-66-7102

受付時間 10:00~18:00(土日祝日を除く)

物件については[物件No.12602-0189]とお伝えください。

メールフォームでのお問い合わせ

ログインして問い合わせる

ビルやお部屋の雰囲気

外観

内観・その他

マップで見る周辺の類似物件

「人型アイコン」を地図上にドラッグすることで『Google ストリートビュー』に切り替わります。

※地図上の「対象地」は実際の場所ではない場合がございます。詳しくはお問い合わせください。

お問い合わせフォームはこちら

お問い合わせいただいた後は、
経験豊富なスタッフが全力でご支援いたします!

お電話でのお問い合わせ

0120-66-7102

受付時間 10:00~18:00(土日祝日を除く)

物件については[物件No.12602-0189]とお伝えください。

メールフォームでのお問い合わせ

ログインして問い合わせる
この物件をご覧頂くには、会員登録(無料)が必要です。【無料会員登録】
No.{{ index + 1 }}
営業おすすめ NEW

非公開 掲載終了 商談中 物件写真
{{ estate.price_pending_type_name }} 価格未定

お探しのエリアで今注目の物件

この物件をご覧頂くには、会員登録(無料)が必要です。【無料会員登録】
No.{{ index + 1 }}
営業おすすめ NEW

非公開 掲載終了 商談中 物件写真
{{ estate.price_pending_type_name }} 価格未定

近隣のよく似た物件リスト

この物件をご覧頂くには、会員登録(無料)が必要です。【無料会員登録】
No.{{ index + 1 }}
営業おすすめ NEW

非公開 掲載終了 商談中 物件写真
{{ estate.price_pending_type_name }} 価格未定

この物件と同じ特徴から探す

近隣の路線・駅から物件を探す

大阪メトロ御堂筋線 / 東三国 / 新大阪 / 中津 / 梅田 / 淀屋橋

近隣のエリアから物件を探す

大阪市西淀川区 / 大阪市北区 / 大阪市福島区 / 吹田市 / 大阪市東淀川区

近畿エリアエリアから物件を探す

大阪府 / 兵庫県 / 京都府