ちいきぼオフィス賃貸事務所・賃貸オフィス一覧大阪府の賃貸事務所・賃貸オフィス一覧大阪市中央区の賃貸事務所・賃貸オフィス一覧日宝徳井ビル

物件No.12602-0135

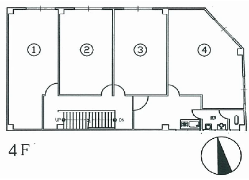
日宝徳井ビル 4階 3号 (5.89坪)

最終更新日:2026年3月23日

  • 賃料
    24,000 円(税抜)
  • 大阪府 大阪市中央区 徳井町2丁目 2-14 地図で確認する
  • 谷町四丁目駅(大阪メトロ谷町線) 徒歩3分谷町四丁目駅(大阪メトロ中央線) 徒歩3分
  • 7階建(1972年12月(築53年))
  • 引渡時期はお問い合わせください

この物件の特徴・魅力

  • 24時間利用可能
  • 駅徒歩5分以内
  • 写真が豊富
  • コスパ重視
  • 3~5人向けオフィス

担当者コメント

担当者

日宝徳井ビル 4階 3号は、大阪メトロ谷町線「谷町四丁目」から徒歩3分のコンパクトオフィス・貸事務所です。約6坪のコンパクトな室内は、低コストで拠点を持ちたい方に最適。日祝も利用可能で、NTTインターネット環境も整っており、自身のペースで業務に集中できる環境です。各階にはトイレを完備しています。

平面図

地図

お問い合わせいただいた後は、
経験豊富なスタッフが全力でご支援いたします!

お電話でのお問い合わせ

0120-66-7102

受付時間 10:00~18:00(土日祝日を除く)

物件については[物件No.12602-0135]とお伝えください。

メールフォームでのお問い合わせ

ログインして問い合わせる

日宝徳井ビル 4階 3号 (5.89坪) の基本情報

物件No 12602-0135
建物名 日宝徳井ビル 4階 3号 (5.89坪)
所在地
大阪府大阪市中央区徳井町2丁目2-14  地図を見る 大阪市中央区で他の物件を探す
募集階層/階建 地上4階 / 7階建
坪数(平米) 5.89 坪(19.47 ㎡)
築年月(竣工) 1972年12月(築53年)
耐震
構造 鉄骨造
最寄駅
用途 貸事務所・オフィス
最終更新日 2026年3月23日

契約条件

※表示価格はすべて税抜表示です
賃料
24,000 円(税抜)
坪単価 4,074円/坪
共益費/管理費等 7,000円
保証金/敷金 30,000円
保証金償却 確認中
礼金 50,000円
更新料 確認中
更新事務手数料 確認中
仲介手数料 確認中
造作価格
その他費用 火災保険加入必要/水道光熱費はお客様負担/解約予告:1ヵ月前/すべての看板製作費はお客様負担
建物賃貸借区分
契約期間 確認中
指定保証会社必須 要加入
引渡時期 お問い合わせください
2月28日明け渡し予定
引渡状態
諸条件・相談 事務所可

設備詳細・その他

設備 水道その他、電気、ガスその他、給湯、トイレ、インターネット
エレベーター
トイレ 有り
床仕様
空調
駐車場
特徴・魅力 2沿線以上利用可
事務所内装の備考
ビル設備の備考 NTTインターネット/日曜日、祝日使用可能
担当者コメント 日宝徳井ビル 4階 3号は、大阪メトロ谷町線「谷町四丁目」から徒歩3分のコンパクトオフィス・貸事務所です。約6坪のコンパクトな室内は、低コストで拠点を持ちたい方に最適。日祝も利用可能で、NTTインターネット環境も整っており、自身のペースで業務に集中できる環境です。各階にはトイレを完備しています。

お問い合わせいただいた後は、
経験豊富なスタッフが全力でご支援いたします!

お電話でのお問い合わせ

0120-66-7102

受付時間 10:00~18:00(土日祝日を除く)

物件については[物件No.12602-0135]とお伝えください。

メールフォームでのお問い合わせ

ログインして問い合わせる

ビルやお部屋の雰囲気

外観

内観・その他

マップで見る周辺の類似物件

「人型アイコン」を地図上にドラッグすることで『Google ストリートビュー』に切り替わります。

※地図上の「対象地」は実際の場所ではない場合がございます。詳しくはお問い合わせください。

お問い合わせフォームはこちら

お問い合わせいただいた後は、
経験豊富なスタッフが全力でご支援いたします!

お電話でのお問い合わせ

0120-66-7102

受付時間 10:00~18:00(土日祝日を除く)

物件については[物件No.12602-0135]とお伝えください。

メールフォームでのお問い合わせ

ログインして問い合わせる
この物件をご覧頂くには、会員登録(無料)が必要です。【無料会員登録】
No.{{ index + 1 }}
営業おすすめ NEW

非公開 掲載終了 商談中 物件写真
{{ estate.price_pending_type_name }} 価格未定

お探しのエリアで今注目の物件

この物件をご覧頂くには、会員登録(無料)が必要です。【無料会員登録】
No.{{ index + 1 }}
営業おすすめ NEW

非公開 掲載終了 商談中 物件写真
{{ estate.price_pending_type_name }} 価格未定

近隣のよく似た物件リスト

この物件をご覧頂くには、会員登録(無料)が必要です。【無料会員登録】
No.{{ index + 1 }}
営業おすすめ NEW

非公開 掲載終了 商談中 物件写真
{{ estate.price_pending_type_name }} 価格未定

この物件と同じ特徴から探す

近隣のエリアから物件を探す

大阪市西区 / 大阪市天王寺区 / 大阪市浪速区 / 大阪市東成区 / 大阪市生野区

近畿エリアエリアから物件を探す

大阪府 / 兵庫県 / 京都府