ちいきぼオフィス賃貸事務所・賃貸オフィス一覧東京都の賃貸事務所・賃貸オフィス一覧港区の賃貸事務所・賃貸オフィス一覧新橋シティビル

物件No.12602-0123

新橋シティビル 6階 (12.04坪)

最終更新日:2026年2月10日

  • 賃料
    228,736 円(税抜)
  • 東京都 港区 新橋3丁目 1-12 地図で確認する
  • 新橋駅(JR山手線) 徒歩5分新橋駅(JR東海道本線) 徒歩5分、新橋駅(JR京浜東北・根岸線) 徒歩5分、新橋駅(都営浅草線) 徒歩5分、内幸町駅(都営三田線) 徒歩3分
  • 9階建(2005年1月(築21年))
  • 2026年7月上旬より入居可能

この物件の特徴・魅力

  • 機械警備
  • 駅徒歩5分以内
  • 個別空調
  • OAフロア
  • 写真が豊富
  • エレベーターあり
  • 10坪台オフィス
  • 6~10人向けオフィス

担当者コメント

担当者

新橋シティビル 6階は、JR山手線「新橋」から徒歩5分のコンパクトオフィス・貸事務所です。 2005年竣工で、トイレや個別空調などの設備が整っています。 エレベーターには不停止機能が付いており、セキュリティ面も安心です。 約12坪の使いやすい広さで、スタートアップや少人数の事務所に最適です。

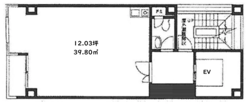
平面図

地図

お問い合わせいただいた後は、
経験豊富なスタッフが全力でご支援いたします!

お電話でのお問い合わせ

0120-66-7102

受付時間 10:00~18:00(土日祝日を除く)

物件については[物件No.12602-0123]とお伝えください。

メールフォームでのお問い合わせ

ログインして問い合わせる

新橋シティビル 6階 (12.04坪) の基本情報

物件No 12602-0123
建物名 新橋シティビル 6階 (12.04坪)
所在地
東京都港区新橋3丁目1-12  地図を見る 港区で他の物件を探す
募集階層/階建 地上6階 / 9階建
坪数(平米) 12.04 坪(39.80 ㎡)
築年月(竣工) 2005年1月(築21年)
耐震
構造 鉄骨造
最寄駅
用途 貸事務所・オフィス
最終更新日 2026年2月10日

契約条件

※表示価格はすべて税抜表示です
賃料
228,736 円(税抜)
坪単価 18,998円/坪
共益費/管理費等 36,120円
保証金/敷金 12ヶ月
保証金償却 確認中
礼金 無し
更新料 確認中
更新事務手数料 確認中
仲介手数料 確認中
造作価格
その他費用 保険加入:加入義務あり/電気代、水道代、室内清掃費別途費用負担有り要確認
建物賃貸借区分 普通借家契約
契約期間 2年
指定保証会社必須 要加入
引渡時期 2026年7月上旬より入居可能
引渡状態
諸条件・相談 事務所可

設備詳細・その他

設備 エレベーター、エアコン、トイレ、給湯
エレベーター 有り
トイレ 有り
床仕様 OAフロア
空調 個別空調
駐車場
特徴・魅力 2沿線以上利用可
事務所内装の備考
ビル設備の備考 エレベーター不停止機能付き
担当者コメント 新橋シティビル 6階は、JR山手線「新橋」から徒歩5分のコンパクトオフィス・貸事務所です。 2005年竣工で、トイレや個別空調などの設備が整っています。 エレベーターには不停止機能が付いており、セキュリティ面も安心です。 約12坪の使いやすい広さで、スタートアップや少人数の事務所に最適です。

お問い合わせいただいた後は、
経験豊富なスタッフが全力でご支援いたします!

お電話でのお問い合わせ

0120-66-7102

受付時間 10:00~18:00(土日祝日を除く)

物件については[物件No.12602-0123]とお伝えください。

メールフォームでのお問い合わせ

ログインして問い合わせる

ビルやお部屋の雰囲気

外観

内観・その他

周辺環境

  • 【駅】都営三田線 内幸町駅 A1出口  

  • 【駅】都営三田線 内幸町 A2出口  

  • 【駅】都営三田線 内幸町駅  

  • 【駅】JR新橋駅 日比谷口  

  • 【駅】内幸町駅  

マップで見る周辺の類似物件

「人型アイコン」を地図上にドラッグすることで『Google ストリートビュー』に切り替わります。

※地図上の「対象地」は実際の場所ではない場合がございます。詳しくはお問い合わせください。

お問い合わせフォームはこちら

お問い合わせいただいた後は、
経験豊富なスタッフが全力でご支援いたします!

お電話でのお問い合わせ

0120-66-7102

受付時間 10:00~18:00(土日祝日を除く)

物件については[物件No.12602-0123]とお伝えください。

メールフォームでのお問い合わせ

ログインして問い合わせる
この物件をご覧頂くには、会員登録(無料)が必要です。【無料会員登録】
No.{{ index + 1 }}
営業おすすめ NEW

非公開 掲載終了 商談中 物件写真
{{ estate.price_pending_type_name }} 価格未定

お探しのエリアで今注目の物件

この物件をご覧頂くには、会員登録(無料)が必要です。【無料会員登録】
No.{{ index + 1 }}
営業おすすめ NEW

非公開 掲載終了 商談中 物件写真
{{ estate.price_pending_type_name }} 価格未定

近隣のよく似た物件リスト

この物件をご覧頂くには、会員登録(無料)が必要です。【無料会員登録】
No.{{ index + 1 }}
営業おすすめ NEW

非公開 掲載終了 商談中 物件写真
{{ estate.price_pending_type_name }} 価格未定

この物件と同じ特徴から探す

近隣の路線・駅から物件を探す

JR山手線 / 東京 / 有楽町 / 浜松町 / 田町 / 高輪ゲートウェイ

近隣のエリアから物件を探す

中央区 / 千代田区 / 渋谷区 / 目黒区 / 文京区

関東エリアエリアから物件を探す

東京都 / 神奈川県 / 埼玉県 / 千葉県