ちいきぼオフィス賃貸事務所・賃貸オフィス一覧大阪府の賃貸事務所・賃貸オフィス一覧大阪市中央区の賃貸事務所・賃貸オフィス一覧イケダ会館

物件No.12601-0486

イケダ会館 5階 510号室 (14.52坪)

最終更新日:2026年2月3日

  • 賃料
    130,000 円(税抜)
  • 大阪府 大阪市中央区 東心斎橋2丁目 8-23 地図で確認する
  • 心斎橋駅(大阪メトロ御堂筋線) 徒歩4分心斎橋駅(大阪メトロ長堀鶴見線) 徒歩4分
  • 6階建(地下1階建)
  • 即入居可能

この物件の特徴・魅力

  • 駅徒歩5分以内
  • 即入居可能
  • 写真が豊富
  • コスパ重視
  • 10坪台オフィス
  • 6~10人向けオフィス

担当者コメント

担当者

イケダ会館 5階 510号室は、大阪メトロ御堂筋線「心斎橋」から徒歩4分のコンパクトオフィス・貸事務所です 。駅から徒歩4分と近く、多忙なビジネスパーソンに最適な立地です 。約14.5坪の使いやすい広さで、創業期や支店開設にも適しています 。周辺は利便性が高く、実用性を重視する方に向けた物件です 。トイレを完備しています。

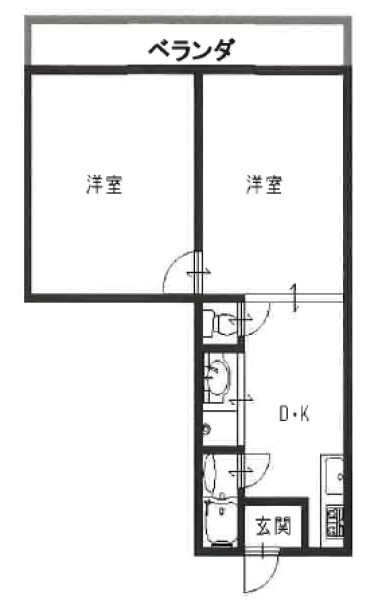
平面図

地図

お問い合わせいただいた後は、
経験豊富なスタッフが全力でご支援いたします!

お電話でのお問い合わせ

0120-66-7102

受付時間 10:00~18:00(土日祝日を除く)

物件については[物件No.12601-0486]とお伝えください。

メールフォームでのお問い合わせ

ログインして問い合わせる

イケダ会館 5階 510号室 (14.52坪) の基本情報

物件No 12601-0486
建物名 イケダ会館 5階 510号室 (14.52坪)
所在地
大阪府大阪市中央区東心斎橋2丁目8-23  地図を見る 大阪市中央区で他の物件を探す
募集階層/階建 地上5階 / 6階建(地下1階建)
坪数(平米) 14.52 坪(48.00 ㎡)
築年月(竣工)
耐震
構造 鉄骨鉄筋コンクリート(SRC)
最寄駅
用途 貸事務所・オフィス
最終更新日 2026年2月3日

契約条件

※表示価格はすべて税抜表示です
賃料
130,000 円(税抜)
坪単価 8,953円/坪
共益費/管理費等 8,000円
保証金/敷金 154,000円
保証金償却 確認中
礼金 400,000円
更新料 確認中
更新事務手数料 確認中
仲介手数料 確認中
造作価格
その他費用 火災保険 要加入(指定業者)/水道代:2,000円(税別)
建物賃貸借区分
契約期間 確認中
指定保証会社必須 要加入
引渡時期 即入居可能
引渡状態
諸条件・相談 事務所可

設備詳細・その他

設備 トイレ
エレベーター 無し
トイレ 有り
床仕様
空調 無し
駐車場
特徴・魅力 2沿線以上利用可
事務所内装の備考
ビル設備の備考
担当者コメント イケダ会館 5階 510号室は、大阪メトロ御堂筋線「心斎橋」から徒歩4分のコンパクトオフィス・貸事務所です 。駅から徒歩4分と近く、多忙なビジネスパーソンに最適な立地です 。約14.5坪の使いやすい広さで、創業期や支店開設にも適しています 。周辺は利便性が高く、実用性を重視する方に向けた物件です 。トイレを完備しています。

お問い合わせいただいた後は、
経験豊富なスタッフが全力でご支援いたします!

お電話でのお問い合わせ

0120-66-7102

受付時間 10:00~18:00(土日祝日を除く)

物件については[物件No.12601-0486]とお伝えください。

メールフォームでのお問い合わせ

ログインして問い合わせる

ビルやお部屋の雰囲気

内観・その他

周辺環境

  • 【駅】心斎橋駅  

  • 【駅】心斎橋駅  

マップで見る周辺の類似物件

「人型アイコン」を地図上にドラッグすることで『Google ストリートビュー』に切り替わります。

※地図上の「対象地」は実際の場所ではない場合がございます。詳しくはお問い合わせください。

お問い合わせフォームはこちら

お問い合わせいただいた後は、
経験豊富なスタッフが全力でご支援いたします!

お電話でのお問い合わせ

0120-66-7102

受付時間 10:00~18:00(土日祝日を除く)

物件については[物件No.12601-0486]とお伝えください。

メールフォームでのお問い合わせ

ログインして問い合わせる
この物件をご覧頂くには、会員登録(無料)が必要です。【無料会員登録】
No.{{ index + 1 }}
営業おすすめ NEW

非公開 掲載終了 商談中 物件写真
{{ estate.price_pending_type_name }} 価格未定

お探しのエリアで今注目の物件

この物件をご覧頂くには、会員登録(無料)が必要です。【無料会員登録】
No.{{ index + 1 }}
営業おすすめ NEW

非公開 掲載終了 商談中 物件写真
{{ estate.price_pending_type_name }} 価格未定

近隣のよく似た物件リスト

この物件をご覧頂くには、会員登録(無料)が必要です。【無料会員登録】
No.{{ index + 1 }}
営業おすすめ NEW

非公開 掲載終了 商談中 物件写真
{{ estate.price_pending_type_name }} 価格未定

この物件と同じ特徴から探す

近隣の路線・駅から物件を探す

大阪メトロ御堂筋線 / 西中島南方 / 中津 / 梅田 / 淀屋橋 / 本町

近隣のエリアから物件を探す

大阪市西区 / 大阪市天王寺区 / 大阪市浪速区 / 大阪市東成区 / 大阪市生野区

近畿エリアエリアから物件を探す

大阪府 / 兵庫県 / 京都府