ちいきぼオフィス賃貸事務所・賃貸オフィス一覧埼玉県の賃貸事務所・賃貸オフィス一覧吉川市の賃貸事務所・賃貸オフィス一覧J:COMPO・8吉川

物件No.12601-0459

J:COMPO・8吉川 1~2階 (79.40坪)

最終更新日:2026年5月13日

  • 賃料
    680,000 円(税抜)
  • 埼玉県 吉川市 大字高久 字町田392-1 地図で確認する
  • 吉川美南駅(JR武蔵野線) 徒歩5分
  • 2階建(2026年2月(築0年))
  • 2026年3月上旬より入居可能

この物件の特徴・魅力

  • 機械警備
  • 営業おすすめ
  • 駅徒歩5分以内
  • 駐車場あり
  • コスパ重視
  • 31~40人向けオフィス

担当者コメント

担当者

J:COMPO・8吉川 1階~2階は、JR武蔵野線「吉川美南」から徒歩5分の貸事務所・倉庫です 。地上2階建て、約79坪のゆとりある広さが魅力です 。オフィスだけでなく倉庫としても利用可能なため、幅広い事業に対応できます 。トイレやエアコンなどの設備も整っており、快適な環境です 。

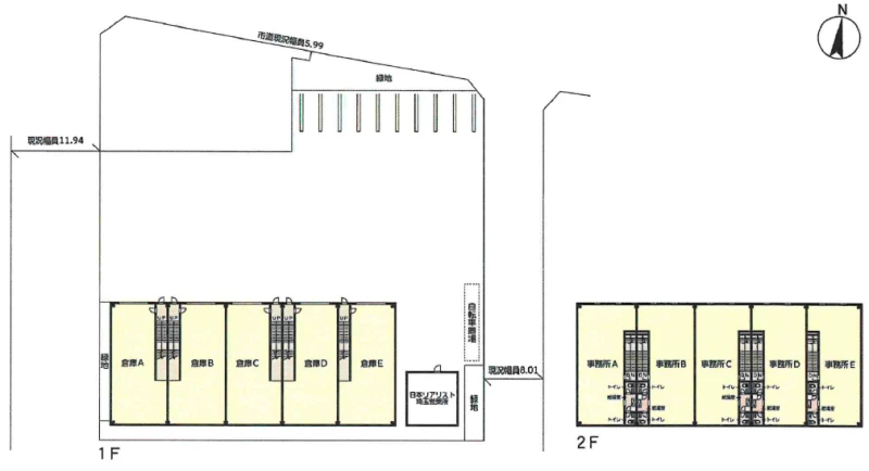
平面図

地図

画像をクリックすると上部の画像が切り替わります

お問い合わせいただいた後は、
経験豊富なスタッフが全力でご支援いたします!

お電話でのお問い合わせ

0120-66-7102

受付時間 10:00~18:00(土日祝日を除く)

物件については[物件No.12601-0459]とお伝えください。

メールフォームでのお問い合わせ

ログインして問い合わせる

J:COMPO・8吉川 1~2階 (79.40坪) の基本情報

物件No 12601-0459
建物名 J:COMPO・8吉川 1~2階 (79.40坪)
所在地
埼玉県吉川市大字高久字町田392-1  地図を見る 吉川市で他の物件を探す
募集階層/階建 地上1階~地上2階 / 2階建
坪数(平米) 79.40 坪(262.47 ㎡)
築年月(竣工) 2026年2月(築0年)
耐震
構造 鉄骨造
最寄駅
用途 貸事務所・オフィス、倉庫
最終更新日 2026年5月13日

契約条件

※表示価格はすべて税抜表示です
賃料
680,000 円(税抜)
坪単価 8,564円/坪
共益費/管理費等 確認中
保証金/敷金 4ヶ月
保証金償却 1ヶ月
礼金 確認中
更新料 確認中
更新事務手数料 確認中
仲介手数料 確認中
造作価格
その他費用 機械警備料16,000円、諸費用10,000円
建物賃貸借区分
契約期間 4年
指定保証会社必須 要加入 (株式会社セーフティーイノベーション)※月額固定費の1ヶ月
引渡時期 2026年3月上旬より入居可能
引渡状態
諸条件・相談 事務所可

設備詳細・その他

設備 トイレ、エアコン
エレベーター 無し
トイレ 有り
床仕様
空調 有り
駐車場 有 
特徴・魅力
事務所内装の備考
ビル設備の備考
担当者コメント J:COMPO・8吉川 1階~2階は、JR武蔵野線「吉川美南」から徒歩5分の貸事務所・倉庫です 。地上2階建て、約79坪のゆとりある広さが魅力です 。オフィスだけでなく倉庫としても利用可能なため、幅広い事業に対応できます 。トイレやエアコンなどの設備も整っており、快適な環境です 。

お問い合わせいただいた後は、
経験豊富なスタッフが全力でご支援いたします!

お電話でのお問い合わせ

0120-66-7102

受付時間 10:00~18:00(土日祝日を除く)

物件については[物件No.12601-0459]とお伝えください。

メールフォームでのお問い合わせ

ログインして問い合わせる

ビルやお部屋の雰囲気

外観

マップで見る周辺の類似物件

「人型アイコン」を地図上にドラッグすることで『Google ストリートビュー』に切り替わります。

※地図上の「対象地」は実際の場所ではない場合がございます。詳しくはお問い合わせください。

お問い合わせフォームはこちら

お問い合わせいただいた後は、
経験豊富なスタッフが全力でご支援いたします!

お電話でのお問い合わせ

0120-66-7102

受付時間 10:00~18:00(土日祝日を除く)

物件については[物件No.12601-0459]とお伝えください。

メールフォームでのお問い合わせ

ログインして問い合わせる
この物件をご覧頂くには、会員登録(無料)が必要です。【無料会員登録】
No.{{ index + 1 }}
営業おすすめ NEW

非公開 掲載終了 商談中 物件写真
{{ estate.price_pending_type_name }} 価格未定

お探しのエリアで今注目の物件

この物件をご覧頂くには、会員登録(無料)が必要です。【無料会員登録】
No.{{ index + 1 }}
営業おすすめ NEW

非公開 掲載終了 商談中 物件写真
{{ estate.price_pending_type_name }} 価格未定

近隣のよく似た物件リスト

この物件をご覧頂くには、会員登録(無料)が必要です。【無料会員登録】
No.{{ index + 1 }}
営業おすすめ NEW

非公開 掲載終了 商談中 物件写真
{{ estate.price_pending_type_name }} 価格未定

この物件と同じ特徴から探す

近隣の路線・駅から物件を探す

JR武蔵野線 / 府中本町 / 武蔵浦和 / 南浦和 / 東浦和 / 新八柱

近隣のエリアから物件を探す

北葛飾郡松伏町 / 越谷市 / 流山市 / 野田市 / 三郷市

関東エリアエリアから物件を探す

東京都 / 神奈川県 / 埼玉県 / 千葉県