ちいきぼオフィス賃貸事務所・賃貸オフィス一覧東京都の賃貸事務所・賃貸オフィス一覧中央区の賃貸事務所・賃貸オフィス一覧銀座KMビル

物件No.12601-0376

銀座KMビル 6階 (48.75坪)

最終更新日:2026年2月16日

  • 賃料
    828,750 円(税抜)
  • 東京都 中央区 銀座8丁目 14-5 地図で確認する
  • 築地市場駅(都営大江戸線) 徒歩3分東銀座駅(東京メトロ日比谷線) 徒歩5分、東銀座駅(都営浅草線) 徒歩5分
  • 9階建(地下1階建)(新耐震基準/1994年)
  • 引渡時期はお問い合わせください

この物件の特徴・魅力

  • 機械警備
  • 駅徒歩5分以内
  • 個別空調
  • 写真が豊富
  • 男女別トイレ
  • エレベーターあり
  • 40坪台オフィス
  • 21~30人向けオフィス

担当者コメント

担当者

銀座KMビル 6階は、都営大江戸線「築地市場」から徒歩3分の中規模オフィス・貸事務所です 。銀座エリアの利便性と、駅から徒歩3分という好立地が魅力です 。室内は使いやすいタイルカーペット仕様で、個別空調やエレベーター、トイレも備わっています 。

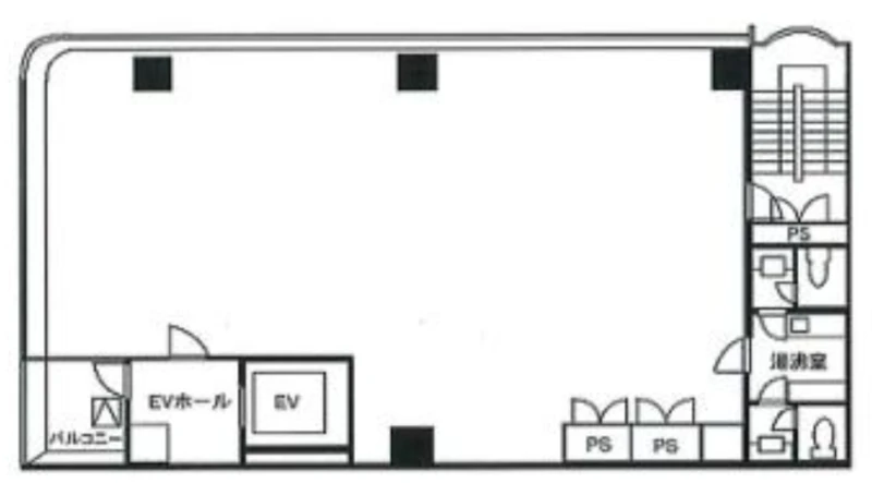
平面図

地図

お問い合わせいただいた後は、
経験豊富なスタッフが全力でご支援いたします!

お電話でのお問い合わせ

0120-66-7102

受付時間 10:00~18:00(土日祝日を除く)

物件については[物件No.12601-0376]とお伝えください。

メールフォームでのお問い合わせ

ログインして問い合わせる

銀座KMビル 6階 (48.75坪) の基本情報

物件No 12601-0376
建物名 銀座KMビル 6階 (48.75坪)
所在地
東京都中央区銀座8丁目14-5  地図を見る 中央区で他の物件を探す
募集階層/階建 地上6階 / 9階建(地下1階建)
坪数(平米) 48.75 坪(161.15 ㎡)
築年月(竣工) 1994年
耐震 新耐震基準
構造 鉄骨鉄筋コンクリート(SRC)
最寄駅
用途 貸事務所・オフィス
最終更新日 2026年2月16日

契約条件

※表示価格はすべて税抜表示です
賃料
828,750 円(税抜)
坪単価 17,000円/坪
共益費/管理費等 170,625円
保証金/敷金 10ヶ月
保証金償却 無し
礼金 無し
更新料 1ヶ月
更新
更新事務手数料 確認中
仲介手数料 確認中
造作価格
その他費用 火災保険要加入
建物賃貸借区分 普通借家契約
契約期間 2年
指定保証会社必須 要加入
引渡時期 お問い合わせください
引渡状態
諸条件・相談 事務所可

設備詳細・その他

設備 エレベーター、24時間セキュリティ、トイレ
エレベーター 有り
トイレ 室内、男女別
床仕様
空調 個別空調
駐車場 無 
特徴・魅力 2沿線以上利用可
事務所内装の備考 タイルカーペット
ビル設備の備考 エレベーター不停止機能付き/光ケーブル:引込済
担当者コメント 銀座KMビル 6階は、都営大江戸線「築地市場」から徒歩3分の中規模オフィス・貸事務所です 。銀座エリアの利便性と、駅から徒歩3分という好立地が魅力です 。室内は使いやすいタイルカーペット仕様で、個別空調やエレベーター、トイレも備わっています 。

お問い合わせいただいた後は、
経験豊富なスタッフが全力でご支援いたします!

お電話でのお問い合わせ

0120-66-7102

受付時間 10:00~18:00(土日祝日を除く)

物件については[物件No.12601-0376]とお伝えください。

メールフォームでのお問い合わせ

ログインして問い合わせる

ビルやお部屋の雰囲気

外観

内観・その他

周辺環境

  • 【駅】築地市場駅  

  • 【駅】東銀座駅  

  • 【駅】東京メトロ銀座駅  

  • 【駅】新橋駅  

  • 【駅】汐留駅  

  • 【駅】築地駅  

マップで見る周辺の類似物件

「人型アイコン」を地図上にドラッグすることで『Google ストリートビュー』に切り替わります。

※地図上の「対象地」は実際の場所ではない場合がございます。詳しくはお問い合わせください。

お問い合わせフォームはこちら

お問い合わせいただいた後は、
経験豊富なスタッフが全力でご支援いたします!

お電話でのお問い合わせ

0120-66-7102

受付時間 10:00~18:00(土日祝日を除く)

物件については[物件No.12601-0376]とお伝えください。

メールフォームでのお問い合わせ

ログインして問い合わせる
この物件をご覧頂くには、会員登録(無料)が必要です。【無料会員登録】
No.{{ index + 1 }}
営業おすすめ NEW

非公開 掲載終了 商談中 物件写真
{{ estate.price_pending_type_name }} 価格未定

お探しのエリアで今注目の物件

この物件をご覧頂くには、会員登録(無料)が必要です。【無料会員登録】
No.{{ index + 1 }}
営業おすすめ NEW

非公開 掲載終了 商談中 物件写真
{{ estate.price_pending_type_name }} 価格未定

近隣のよく似た物件リスト

この物件をご覧頂くには、会員登録(無料)が必要です。【無料会員登録】
No.{{ index + 1 }}
営業おすすめ NEW

非公開 掲載終了 商談中 物件写真
{{ estate.price_pending_type_name }} 価格未定

この物件と同じ特徴から探す

近隣の路線・駅から物件を探す

都営大江戸線 / 月島 / 勝どき / 汐留 / 大門 / 赤羽橋

近隣のエリアから物件を探す

港区 / 千代田区 / 江東区 / 文京区 / 台東区

関東エリアエリアから物件を探す

東京都 / 神奈川県 / 埼玉県 / 千葉県