ちいきぼオフィス賃貸事務所・賃貸オフィス一覧大阪府の賃貸事務所・賃貸オフィス一覧吹田市の賃貸事務所・賃貸オフィス一覧第11マイダビル

物件No.12601-0280

第11マイダビル 3階 303号 (10.40坪)

最終更新日:2026年2月3日

  • 賃料
    93,600 円(税抜)
  • 大阪府 吹田市 広芝町 9-12 地図で確認する
  • 江坂駅(北大阪急行南北線) 徒歩5分江坂駅(大阪メトロ御堂筋線) 徒歩5分
  • 8階建(1984年3月(築42年))
  • 2026年4月より入居可能

この物件の特徴・魅力

  • 24時間利用可能
  • 駅徒歩5分以内
  • 写真が豊富
  • エレベーターあり
  • コスパ重視
  • 10坪台オフィス
  • 6~10人向けオフィス

担当者コメント

担当者

第11マイダビル 3階 303号は、北大阪急行南北線「江坂」から徒歩5分のオフィス・貸事務所です。駅から徒歩5分と近い立地が魅力です。地上8階建ての視認性の良いビルで、大規模な事務所や営業拠点をお探しの方に最適です。トイレ、エアコン、エレベーターを完備しており快適にご利用いただけます。

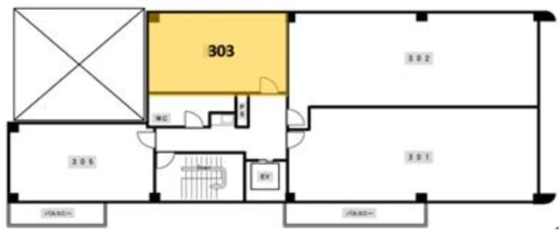
平面図

地図

お問い合わせいただいた後は、
経験豊富なスタッフが全力でご支援いたします!

お電話でのお問い合わせ

0120-66-7102

受付時間 10:00~18:00(土日祝日を除く)

物件については[物件No.12601-0280]とお伝えください。

メールフォームでのお問い合わせ

ログインして問い合わせる

第11マイダビル 3階 303号 (10.40坪) の基本情報

物件No 12601-0280
建物名 第11マイダビル 3階 303号 (10.40坪)
所在地
大阪府吹田市広芝町9-12  地図を見る 吹田市で他の物件を探す
募集階層/階建 地上3階 / 8階建
坪数(平米) 10.40 坪(34.38 ㎡)
築年月(竣工) 1984年3月(築42年)
耐震
構造 鉄骨造 鉄骨・ALC造
最寄駅
用途 貸事務所・オフィス
最終更新日 2026年2月3日

契約条件

※表示価格はすべて税抜表示です
賃料
93,600 円(税抜)
坪単価 9,000円/坪
共益費/管理費等 20,800円
保証金/敷金 300,000円
保証金償却 200,000円
礼金 確認中
更新料 確認中
更新事務手数料 確認中
仲介手数料 確認中
造作価格
その他費用 火災保険等は借主にてご加入ください。/電気基本料:8,320円(+税)+使用料
建物賃貸借区分 普通借家契約
契約期間 2年
指定保証会社必須 要加入
引渡時期 2026年4月より入居可能
引渡状態
諸条件・相談 事務所可

設備詳細・その他

設備 エレベーター、トイレ、エアコン、給湯
エレベーター 有り
トイレ 共用部
床仕様
空調 有り
駐車場
特徴・魅力 2沿線以上利用可
事務所内装の備考
ビル設備の備考
担当者コメント 第11マイダビル 3階 303号は、北大阪急行南北線「江坂」から徒歩5分のオフィス・貸事務所です。駅から徒歩5分と近い立地が魅力です。地上8階建ての視認性の良いビルで、大規模な事務所や営業拠点をお探しの方に最適です。トイレ、エアコン、エレベーターを完備しており快適にご利用いただけます。

お問い合わせいただいた後は、
経験豊富なスタッフが全力でご支援いたします!

お電話でのお問い合わせ

0120-66-7102

受付時間 10:00~18:00(土日祝日を除く)

物件については[物件No.12601-0280]とお伝えください。

メールフォームでのお問い合わせ

ログインして問い合わせる

ビルやお部屋の雰囲気

外観

内観・その他

周辺環境

  • 【駅】江坂駅  

マップで見る周辺の類似物件

「人型アイコン」を地図上にドラッグすることで『Google ストリートビュー』に切り替わります。

※地図上の「対象地」は実際の場所ではない場合がございます。詳しくはお問い合わせください。

お問い合わせフォームはこちら

お問い合わせいただいた後は、
経験豊富なスタッフが全力でご支援いたします!

お電話でのお問い合わせ

0120-66-7102

受付時間 10:00~18:00(土日祝日を除く)

物件については[物件No.12601-0280]とお伝えください。

メールフォームでのお問い合わせ

ログインして問い合わせる
この物件をご覧頂くには、会員登録(無料)が必要です。【無料会員登録】
No.{{ index + 1 }}
営業おすすめ NEW

非公開 掲載終了 商談中 物件写真
{{ estate.price_pending_type_name }} 価格未定

お探しのエリアで今注目の物件

この物件をご覧頂くには、会員登録(無料)が必要です。【無料会員登録】
No.{{ index + 1 }}
営業おすすめ NEW

非公開 掲載終了 商談中 物件写真
{{ estate.price_pending_type_name }} 価格未定

近隣のよく似た物件リスト

この物件をご覧頂くには、会員登録(無料)が必要です。【無料会員登録】
No.{{ index + 1 }}
営業おすすめ NEW

非公開 掲載終了 商談中 物件写真
{{ estate.price_pending_type_name }} 価格未定

この物件と同じ特徴から探す

近隣の路線・駅から物件を探す

北大阪急行南北線 / 箕面船場阪大前 / 箕面萱野

近隣のエリアから物件を探す

大阪市東淀川区 / 摂津市 / 大阪市淀川区 / 守口市 / 豊中市

近畿エリアエリアから物件を探す

大阪府 / 兵庫県 / 京都府